Valutazione immobiliare indipendente, accurata e gratuita
Appartamento in vendita a Givoletto in zona Forvilla a 245.000 € (cod.655bd716)
Caasa non ha sufficienti informazioni per commentare l'appartamento a Givoletto in zona Forvilla - 655bd716.
Analisi immobiliare
I dati in posseso di Caasa per quest'immobile sono insufficienti, inaffidabili o contraddittori per proporre un'analisi attendibile.
Mercato immobiliare a Givoletto
Per quanto riguarda più in generale il comune di Givoletto, sono presenti al momento circa cento annunci per
appartamenti in vendita (meno dell'1% dell'intera provincia) .
Per quanto riguarda la richiesta media in zona Forvilla, dove sorge l'appartamento, essa è pari a circa
1.965 €/m² per appartamenti in vendita.
Possiamo inoltre considerare che in tutto il comune negli ultimi 6 mesi, i prezzi per appartamenti in vendita sono
in debole aumento (+1,54%).
NOVITÀ Il risultato che vedi dipende dai dati che siamo riusciti ad estrarre dall'annuncio: ottieni una stima più accuranta di questo immobile, inserendo dati più precisi.
N.B. L'Opinione di Caasa® è un servizio sperimentale realizzato tramite tecniche di Intelligenza Artificiale, fornito senza alcuna garanzia di correttezza e completezza. Leggi il disclaimer o segnalaci un problema.
IMMAGINI
IN SINTESI
PROPOSTO DA:
CASEINPIEMONTE -Agenzia immobiliare di Rivoli e Alpignano
CORSO SUSA 235 / 237, Rivoli (TO)
DESCRIZIONE
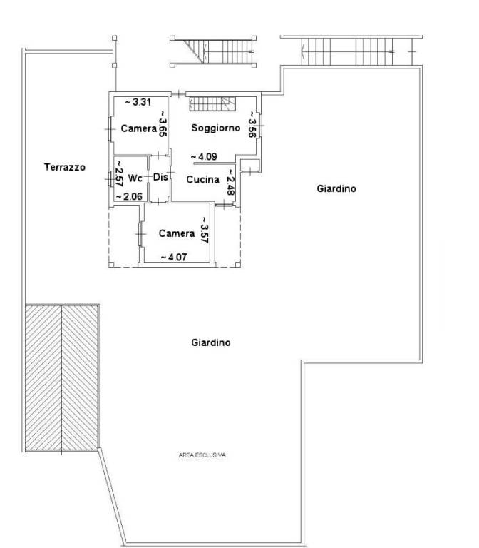
di recente costruzione con posto auto con giardino con terrazza con termocondizionamento con cucina abitabile con garage di recente costruzione con riscaldamento autonomo
Caseinpiemonte Rivoli 011 956 15 00 propone in vendita a Euro 245.000 trattabili, in GIVOLETTO – Zona Forvilla (Via San Gillio) Non è il solito appartamento. È una casa che si apre alla luce, al verde e alla libertà. Una casa dove puoi stendere la tovaglia in giardino, coltivare l’orto o prendere il sole sul terrazzo. In una palazzina recente del 2007, questo appartamento libero su quattro lati è distribuito su due livelli: al piano principale trovi una zona giorno luminosa con soggiorno accogliente e cucina abitabile – entrambi con uscita diretta sul giardino privato. La zona notte ospita due camere ben proporzionate e un bagno finestrato. Scendendo, il piano interrato offre un locale di sgombero comodo e un box doppio in lunghezza, collegato internamente all’abitazione. Fuori, un terrazzo di circa 85 m² e un giardino privato di 375 m² completano un quadro perfetto per chi ama vivere all’aperto. Riscaldamento autonomo, caldaia a condensazione nuova, spese contenute. Una soluzione che parla a chi cerca tranquillità, spazio e autenticità senza allontanarsi dai servizi. Un posto dove ogni metro ha senso, ogni finestra guarda il verde e ogni giornata sembra domenica. A.C.E./A.P.E.: in corso – I.P.E.: in corso kWh/m² anno Tutti i dati, le informazioni, i metri quadri riportati ed eventuali rendering presenti, sono da ritenersi affidabili, ma sono puramente indicativi e raffigurativi, quindi le presenti informazioni non costituiscono elemento contrattuale. FIERI DI VENDERE ANCHE CASA VOSTRA: PROVVIGIONE 1% CONTATTATECI: caseinpiemonte@caseinpiemonte.it www.caseinpiemonte.it PER VOI!: RIVOLI Corso Susa 235 / 237 tel. 011 956 15 00

