Valutazione immobiliare indipendente, accurata e gratuita
Appartamento in vendita a Givoletto a 335.000 € (cod.652f360e)
Caasa non ha sufficienti informazioni per commentare l'appartamento in vendita a Givoletto - 652f360e.
Analisi immobiliare
I dati in posseso di Caasa per quest'immobile sono insufficienti, inaffidabili o contraddittori per proporre un'analisi attendibile.
Mercato immobiliare a Givoletto
Per quanto riguarda più in generale il comune di Givoletto, sono presenti al momento circa cento annunci per
appartamenti in vendita (meno dell'1% dell'intera provincia)
e il maggior numero di annunci per questa tipologia sono relativi alla zona di Santa Maria.
Possiamo inoltre considerare che in tutto il comune negli ultimi 6 mesi, i prezzi per appartamenti in vendita sono
in forte aumento (+17,48%).
NOVITÀ Il risultato che vedi dipende dai dati che siamo riusciti ad estrarre dall'annuncio: ottieni una stima più accuranta di questo immobile, inserendo dati più precisi.
N.B. L'Opinione di Caasa® è un servizio sperimentale realizzato tramite tecniche di Intelligenza Artificiale, fornito senza alcuna garanzia di correttezza e completezza. Leggi il disclaimer o segnalaci un problema.
IMMAGINI
IN SINTESI
PROPOSTO DA:
CASEINPIEMONTE -Agenzia immobiliare di Rivoli e Alpignano
CORSO SUSA 235 / 237, Rivoli (TO)
DESCRIZIONE
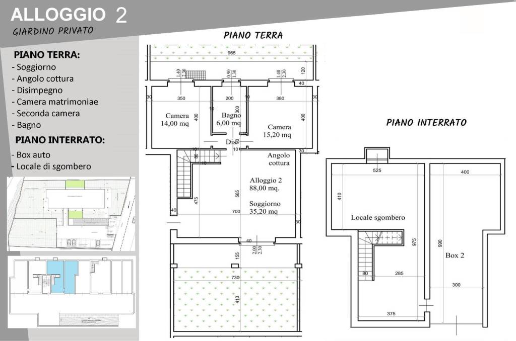
di nuova costruzione con posto auto con giardino con terrazza con termocondizionamento con balcone di nuova costruzione con garage
Caseinpiemonte Rivoli – Tel. 011 956 15 00 propone in vendita a Givoletto, in zona collinare e residenziale nei pressi di Via Almese / Via Caselette, nuovo complesso residenziale composto da quadrifamiliare e villa indipendente. Soluzioni moderne, ad alta efficienza energetica, con giardini privati, garage inclusi e possibilità di scelta finiture. DISPONIBILITÀ Piano Terra – Alloggio angolare – € 310.000 con GIARDINO PRIVATO su 3 lati - ingresso - soggiorno con cucina - 2 camere da letto - bagno - scala interna per accedere al piano inferiore completamente rifinito con locale di sgombero di circa 40 mq - garage incluso di circa 45 mq con accesso diretto Piano Terra – Alloggio centrale – € 295.000 con GIARDINO PRIVATO su 2 lati - ingresso su soggiorno con cucina a vista - 2 camere da letto - bagno - scala interna per accedere al piano inferiore completamente rifinito con locale di sgombero di circa 40 mq - garage incluso di circa 35 mq Primo Piano – Alloggio centrale – € 335.000 con MANSARDATO SOVRASTANTE - ampi balconi - soggiorno con cucina a vista - 2 camere da letto - bagno - scala interna di collegamento al mansardato suddiviso in: - locale di circa 25 mq - locale di circa 38 mq - bagno - garage incluso di circa 30 mq DOTAZIONI E FINITURE costruzione nuova NON soggetta a IVA (imposta di registro 2% sul valore catastale) riscaldamento a pavimento pompa di calore pannelli solari impianto fotovoltaico da 3 kW infissi in PVC con doppi vetri persiane in alluminio portoncino blindato videocitofono ampia scelta materiali da capitolato Soluzioni eco-sostenibili, con consumi ridotti e alto comfort abitativo. A.C.E./A.P.E.: A+ – I.P.E.: in corso I dati, le metrature e i rendering sono indicativi e non costituiscono elemento contrattuale. FIERI DI VENDERE ANCHE CASA VOSTRA – PROVVIGIONE 1% caseinpiemonte@caseinpiemonte.it www.caseinpiemonte.it Ufficio di zona: Rivoli – Corso Susa 235 / 237 Tel. 011 956 15 00

