Valutazione immobiliare indipendente, accurata e gratuita

Appartamento in vendita a Buttigliera Alta in zona Ferriera a 185.000 € (cod.64ee77bb)

Caasa non ha sufficienti informazioni per commentare l'appartamento a Buttigliera Alta in zona Ferriera - 64ee77bb.

Analisi immobiliare
I dati in posseso di Caasa per quest'immobile sono insufficienti, inaffidabili o contraddittori per proporre un'analisi attendibile.
Mercato immobiliare a Buttigliera Alta
Per quanto riguarda più in generale il comune di Buttigliera Alta, sono presenti al momento più di cinquanta annunci per appartamenti in vendita (meno dell'1% dell'intera provincia) e il maggior numero di annunci per questa tipologia sono relativi proprio alla zona di Ferriera.
Per quanto riguarda la richiesta media in zona Ferriera, dove sorge l'appartamento, essa è pari a circa 1.470 €/m² per appartamenti in vendita.
La dinamica dei prezzi in tutto il comune mostra che negli ultimi 6 mesi, i prezzi per appartamenti in vendita sono in forte aumento (+12,46%).

NOVITÀ Il risultato che vedi dipende dai dati che siamo riusciti ad estrarre dall'annuncio: ottieni una stima più accuranta di questo immobile, inserendo dati più precisi.

N.B. L'Opinione di Caasa® è un servizio sperimentale realizzato tramite tecniche di Intelligenza Artificiale, fornito senza alcuna garanzia di correttezza e completezza. Leggi il disclaimer o segnalaci un problema.

IMMAGINI

IN SINTESI

Prezzo:
185.000 €
Superficie:
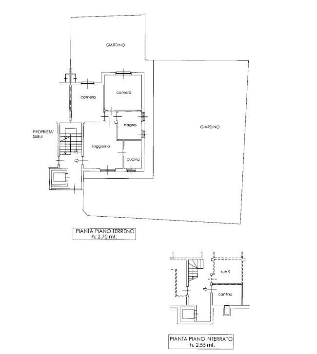
110 m²
Prezzo al m²:
1681 €/m²
Piano:
terra
Bagni:
n.d.
Classe energetica:
D
IPE:
65.0 kwh/m²
Città:
Buttigliera Alta (TO)
Zona OMI:
E4 (RESIDENZIALE STRADA PER SUSA, VIA DELLA TORRE, VIA ROCCIAMELONE)
Indirizzo:
Pubblicato:
gio 9 maggio 2024

PROPOSTO DA:

logo CASEINPIEMONTE -Agenzia immobiliare di Rivoli e Alpignano

CASEINPIEMONTE -Agenzia immobiliare di Rivoli e Alpignano

CORSO SUSA 235 / 237, Rivoli (TO)

Vai ai contatti

DESCRIZIONE

di recente costruzione con posto auto con terrazza con cantina con giardino con riscaldamento autonomo con garage con cortile di nuova costruzione di recente costruzione

Caseinpiemonte Rivoli 011 956 15 00 propone ottimo appartamento con GIARDINO PRIVATO E PATIO in Buttigliera Alta - Ferriera precisamente Corso Torino n. 79 a Euro 185.000 trattabili. Zona Ferriera 5 vani di circa 98 mq circa. Recente costruzione, palazzina signorile in paramano, appartamento al Piano Terra, libero su tre lati, grande giardino privato con alberi da frutto e ampio patio/terrazzo. Composto da ingresso living su sala, cucinotta, disimpegno, due belle camere da letto e grande bagno con vasca. Cantina. Completano la proprietà due POSTI AUTO interni. Riscaldamento autonomo. Esposizione Nord - Est - Sud - Ovest Anno costruzione 2004. Comodo alle scuole, ai mezzi pubblici, Stazione Ferroviaria di Avigliana ed alle tangenziali. A.C.E./A.P.E.: C kwh Tutti i dati, le informazioni, i metri quadri riportati ed eventuali rendering presenti, sono da ritenersi affidabili, ma sono puramente indicativi e raffigurativi, quindi le presenti informazioni non costituiscono elemento contrattuale. FIERI DI VENDERE ANCHE CASA VOSTRA: PROVVIGIONE 1% CONTATTATECI: caseinpiemonte@caseinpiemonte.it www.caseinpiemonte.it PER VOI!: RIVOLI Corso Susa 235 / 237 tel. 011 956 15 00

  • immobiliare.it
  • trovacasa.net
  • idealista.it