Valutazione immobiliare indipendente, accurata e gratuita
L'Opinione di Caasa® per l'appartamento in vendita a Borgaro Torinese a 190.000 € (cod.65619ffb)
Secondo Caasa, per l'appartamento in vendita a Borgaro Torinese, la richiesta di 190.000 € è leggermente svantaggiosa rispetto agli annunci simili.
Analisi immobiliare
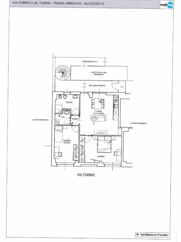
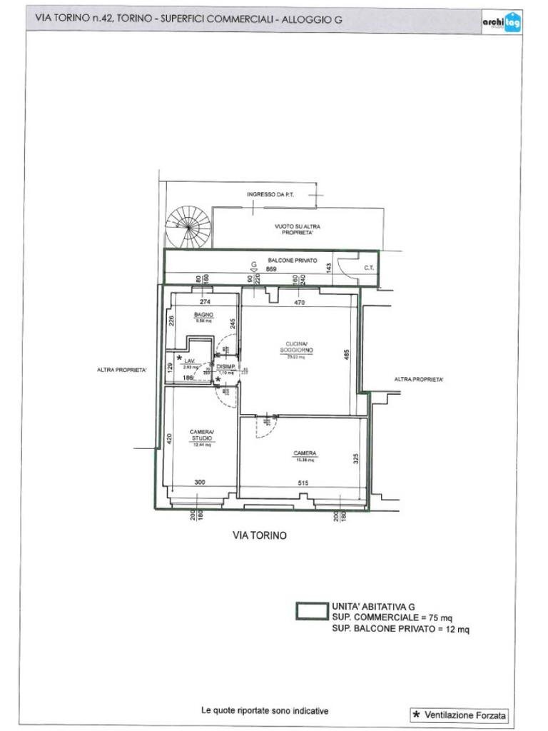
L'appartamento, situato nella zona OMI B1, è proposto in vendita (da Affiliato tecnorete: duegi s.a.s.) a
190.000 € per una
superficie commerciale di
81 m² e quindi ad un prezzo per metro quadrato pari a
2345 €/m²
.
Tale valore
è di poco superiore a quello stimato da Caasa per immobili in vendita simili per tipologia, caratteristiche, classe energetica e zona, che è compreso tra
2.097 €/m² e
2.228 €/m².
Vista la posizione dell'appartamento si sono utilizzati in raffronto i valori medi nelle zone limitrofe . Ad affinare la stima ha contribuito anche la classe energetica (A+) oltre alla conoscenza dello stato dell'immobile (di recente ristrutturazione) e di alcune caratteristiche significative come il posto auto. Per i motivi esposti i valori accettabili per l'offerta costituiscono un intervallo relativamente limitato.
Mercato immobiliare a Borgaro Torinese
Per quanto riguarda più in generale il comune di Borgaro Torinese, sono presenti al momento più di cento annunci per
appartamenti in vendita (meno dell'1% dell'intera provincia) .
La dinamica dei prezzi in tutto il comune mostra che negli ultimi 6 mesi, i prezzi per appartamenti in vendita sono
sostanzialmente stabili (-0,68%).
NOVITÀ Il risultato che vedi dipende dai dati che siamo riusciti ad estrarre dall'annuncio: ottieni una stima più accuranta di questo immobile, inserendo dati più precisi.
N.B. L'Opinione di Caasa® è un servizio sperimentale realizzato tramite tecniche di Intelligenza Artificiale, fornito senza alcuna garanzia di correttezza e completezza. Leggi il disclaimer o segnalaci un problema.
IMMAGINI
IN SINTESI
PROPOSTO DA:
Affiliato tecnorete: duegi s.a.s.
Via martiri della liberta' 28, Borgaro Torinese (TO)
DESCRIZIONE
di recente ristrutturazione con posto auto con termocondizionamento di recente ristrutturazione
BORGARO - RESIDENZA TORINO 42. In un contesto abitativo di attuale riqualificazione e nuova valorizzazione proponiamo appartamento al primo e ultimo piano , completamente ristrutturato, pronto per essere abitato. L'immobile è stato rinnovato con massima attenzione, volta, ai dettagli: - impianti nuovi: riscaldamento a pavimento con pompa di calore (riduzione dei consumi energetici fino al 25%), impianto fotovoltaico che contribuisce a ridurre la dipendenza da fonti energetiche tradizionali e piano cottura a induzione; - Serramenti esterni in PVC (colore bianco) a taglio termico; - Sanitari: back - to- wall (filo muro) che creano un continuum con la parte, all'interno della quale si trovano le tubazioni e gli allacci. Ambienti luminosi e funzionali pensati per il massimo comfort quotidiano. Possibilità di BOX AUTO, piano strada, di 19 mq. Per avere ulteriori informazioni o per visitare l'immobile potete chiamarci al numero 011.4508023, scriverci su whatsapp al 340.1794610 o passare presso l'Affiliato TECNORETE di Via Martiri della Libertà n. 24 a Borgaro Torinese (TO). Offriamo inoltre un servizio di consulenza mutuo o finanziamento con i nostri professionisti KIRON. Siamo a disposizione per una valutazione GRATUITA E SENZA IMPEGNO del vostro immobile


