Valutazione immobiliare indipendente, accurata e gratuita
Casa indipendente in vendita a Beinasco in zona Fornaci a 195.000 € (cod.64fe74d7)
Caasa non ha sufficienti informazioni per commentare la casa indipendente a Beinasco in zona Fornaci - 64fe74d7.
Analisi immobiliare
I dati in posseso di Caasa per quest'immobile sono insufficienti, inaffidabili o contraddittori per proporre un'analisi attendibile.
Mercato immobiliare a Beinasco
Per quanto riguarda più in generale la città di Beinasco, sono presenti al momento più di cento annunci per
case indipendenti in vendita (meno dell'1% dell'intera provincia)
e il maggior numero di annunci per questa tipologia sono relativi alla zona di Borgaretto, mentre la zona di Fornaci risulta molto meno attiva considerando il numero di annunci presenti.
La richiesta media nella zona dove sorge la casa indipendente (Fornaci) è pari a
1.675 €/m² che la rende la più economica della città .
La dinamica dei prezzi in tutta la città mostra che negli ultimi 6 mesi, i prezzi per case indipendenti in vendita sono
in sostanziale aumento (+5,67%).
NOVITÀ Il risultato che vedi dipende dai dati che siamo riusciti ad estrarre dall'annuncio: ottieni una stima più accuranta di questo immobile, inserendo dati più precisi.
N.B. L'Opinione di Caasa® è un servizio sperimentale realizzato tramite tecniche di Intelligenza Artificiale, fornito senza alcuna garanzia di correttezza e completezza. Leggi il disclaimer o segnalaci un problema.
IMMAGINI
IN SINTESI
PROPOSTO DA:
G.S.I. SRL GESTIONE SERVIZI IMMOBILIARI
Strada Torino, 34/36, Beinasco (TO)
DESCRIZIONE
di nuova costruzione di nuova costruzione
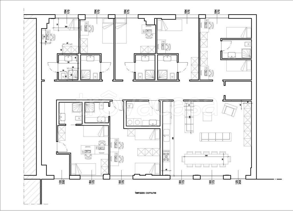
OPPORTUNITÀ DI INVESTIMENTO A BEINASCO! Vendesi locale commerciale di 220 mq con PROGETTO GIÀ APPROVATO per la trasformazione in studentato. Vicinanza strategica ai poli universitari e ospedalieri di Torino Sud. L'immobile viene ceduto con un progetto di conversione già approvato per la realizzazione di una struttura ricettiva per studenti: Numero Camere: 7 (Sette) Totali. 4 Camere Singole 3 Camere Doppie Servizi Igienici: 7 Bagni Privati (uno per ogni camera) – Caratteristica fondamentale per l'attrattività e la tariffazione. Aree Comuni: Ampia e funzionale Zona Cucina/Living comune. Stato: Progetto pronto per l'avvio dei lavori. POSIZIONE IMBATTIBILE La posizione del Centro Commerciale Le Fornaci garantisce una domanda di affitto studentesco costante e robusta grazie alla vicinanza a: Polo Universitario: Sede di Ingegneria dell'Automobile (Politecnico di Torino). Polo Sanitario/Universitario: Facoltà di Infermieristica e Ospedale San Luigi Gonzaga. VANTAGGI ESCLUSIVI PER GLI AFFITTUARI Gli studenti godranno di un comfort unico, con accesso diretto e coperto a tutti i servizi essenziali: Servizi del CC: Supermercato, Bar, Cinema, Lavanderia, Negozi. Servizi adiacenti: Palestra, Ristoranti Trasporti: Ottima connessione con Torino e i comuni limitrofi. PER L'INVESTITORE: Acquistare questo immobile significa: Eliminare i Tempi Burocratici: Il progetto è già approvato. Rendimenti Elevati: Il modello Student Housing garantisce tassi di occupazione superiori e canoni specifici. Prodotto "Premium": 7 camere con bagno privato elevano lo standard e il potenziale di profitto

