Valutazione immobiliare indipendente, accurata e gratuita
Mansarda in vendita a Novara in zona Lumellogno a 75.000 € (cod.65292617)
Caasa non ha sufficienti informazioni per commentare la mansarda in vendita a Novara in zona Lumellogno - 65292617.
Analisi immobiliare
I dati in posseso di Caasa per quest'immobile sono insufficienti, inaffidabili o contraddittori per proporre un'analisi attendibile.
Mercato immobiliare a Novara
Per quanto riguarda più in generale la città di Novara, sono presenti al momento più di 150 annunci per
mansarde in vendita (meno di un terzo dell'intera provincia)
e il maggior numero di annunci per questa tipologia sono relativi alla zona di Centro Città, mentre la zona di Lumellogno risulta molto meno attiva considerando il numero di annunci presenti.
La dinamica dei prezzi in tutta la città mostra che negli ultimi 6 mesi, i prezzi per mansarde in vendita sono
sostanzialmente stabili (-0,26%).
NOVITÀ Il risultato che vedi dipende dai dati che siamo riusciti ad estrarre dall'annuncio: ottieni una stima più accuranta di questo immobile, inserendo dati più precisi.
N.B. L'Opinione di Caasa® è un servizio sperimentale realizzato tramite tecniche di Intelligenza Artificiale, fornito senza alcuna garanzia di correttezza e completezza. Leggi il disclaimer o segnalaci un problema.
IMMAGINI
IN SINTESI
PROPOSTO DA:
C.B. IMMOBILI di CLAUDIO BAGNATO
DESCRIZIONE
di recente ristrutturazione con cantina di recente ristrutturazione da ristrutturare
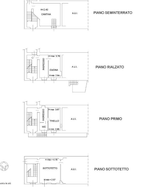
Rif. B858 - Novara, Lumellogno Proponiamo in vendita interessante soluzione immobiliare risalente ai primi del '900, situata in posizione strategica a breve distanza da Novara, ideale per due nuclei familiari o per operazioni di investimento e frazionamento. L’immobile si sviluppa su più livelli e si compone di: Due unità abitative distinte con ingressi separati; Ampia mansarda recuperabile con altezze idonee per il cambio di destinazione d’uso; Cantina storica a volte in mattoni pieni originali a vista, tipica dell’epoca, con notevole valore architettonico e potenziale di valorizzazione. La struttura conserva caratteristiche costruttive originali, come le volte in mattoni, i serramenti dell’epoca e le murature in mattoni pieni, offrendo ampie possibilità di intervento per un restauro conservativo o una ristrutturazione integrale. Prezzi di vendita € 75.000,00 Superficie complessiva: oltre 300 mq Posizione: tranquilla ma ben collegata, in contesto di corte

