Valutazione immobiliare indipendente, accurata e gratuita
Appartamento in vendita a Meina a 77.000 € (cod.6529448d)
Caasa non ha sufficienti informazioni per commentare l'appartamento in vendita a Meina - 6529448d.
Analisi immobiliare
I dati in posseso di Caasa per quest'immobile sono insufficienti, inaffidabili o contraddittori per proporre un'analisi attendibile.
Mercato immobiliare a Meina
Per quanto riguarda più in generale il comune di Meina, sono presenti al momento circa cento annunci per
appartamenti in vendita (meno del 5% dell'intera provincia)
e il maggior numero di annunci per questa tipologia sono relativi alla zona di Ghevio.
Relativamente alla dinamica dei prezzi, possiamo dire che negli ultimi 6 mesi i prezzi medi in tutto il comune per appartamenti in vendita sono
in debole diminuzione (-1,94%).
NOVITÀ Il risultato che vedi dipende dai dati che siamo riusciti ad estrarre dall'annuncio: ottieni una stima più accuranta di questo immobile, inserendo dati più precisi.
N.B. L'Opinione di Caasa® è un servizio sperimentale realizzato tramite tecniche di Intelligenza Artificiale, fornito senza alcuna garanzia di correttezza e completezza. Leggi il disclaimer o segnalaci un problema.
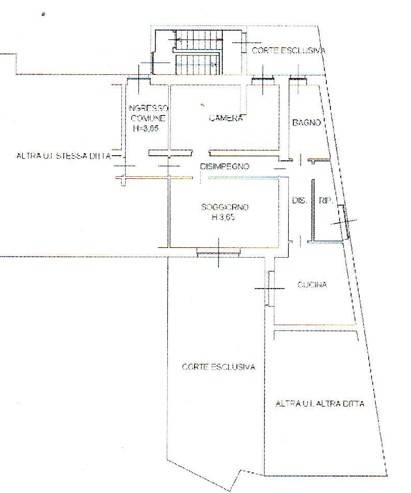
IMMAGINI
IN SINTESI
PROPOSTO DA:
MILLENNIUM STUDIO IMMOBILIARE
