Valutazione immobiliare indipendente, accurata e gratuita
Casa indipendente in vendita a Lesa a 480.000 € (cod.655c1939)
Caasa non ha sufficienti informazioni per commentare la casa indipendente in vendita a Lesa - 655c1939.
Analisi immobiliare
I dati in posseso di Caasa per quest'immobile sono insufficienti, inaffidabili o contraddittori per proporre un'analisi attendibile.
Mercato immobiliare a Lesa
Per quanto riguarda più in generale il comune di Lesa, sono presenti al momento più di cento annunci per
case indipendenti in vendita (meno del 5% dell'intera provincia)
e il maggior numero di annunci per questa tipologia sono relativi alla zona di Solcio.
Relativamente alla dinamica dei prezzi, possiamo dire che negli ultimi 6 mesi i prezzi medi in tutto il comune per case indipendenti in vendita sono
in sostanziale calo (-7,10%).
NOVITÀ Il risultato che vedi dipende dai dati che siamo riusciti ad estrarre dall'annuncio: ottieni una stima più accuranta di questo immobile, inserendo dati più precisi.
N.B. L'Opinione di Caasa® è un servizio sperimentale realizzato tramite tecniche di Intelligenza Artificiale, fornito senza alcuna garanzia di correttezza e completezza. Leggi il disclaimer o segnalaci un problema.
IMMAGINI
IN SINTESI
DESCRIZIONE
di nuova costruzione con posto auto con giardino con terrazza con garage con termocondizionamento di nuova costruzione
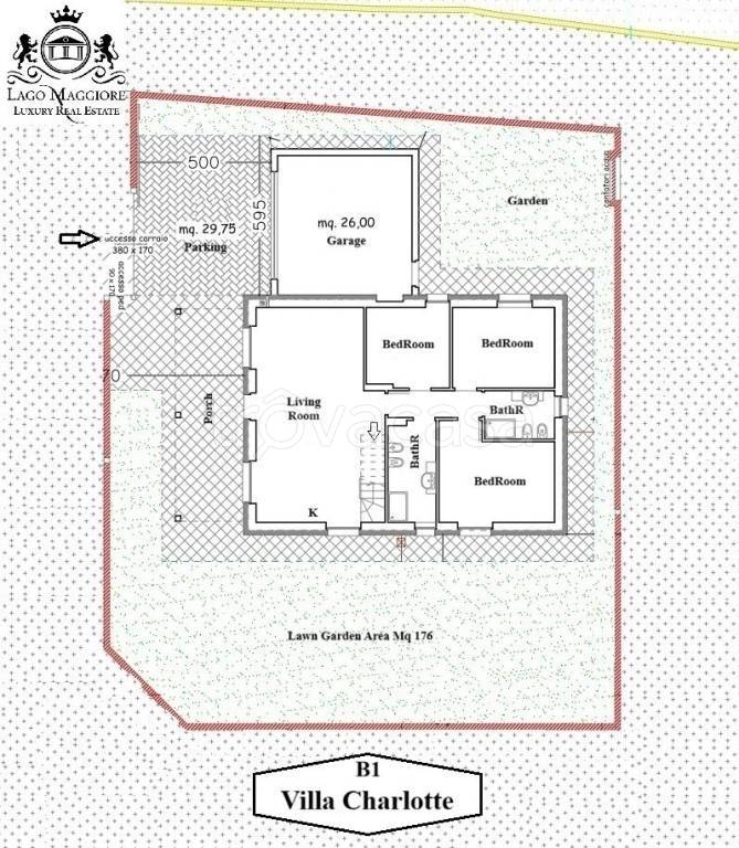
Lago Maggiore Luxury Real Estate in esclusiva propone Villa Charlotte, la nuova villa sorgerà in splendida area residenziale a Lesa a pochissimi metri dalle sponde del Lago Maggiore, su lotto di terreno di circa mq 4.000 all’interno di nuovo centro residenziale composto da sei ville unifamiliari di pregio. Villa Charlotte, sarà una nuova moderna residenza su due livelli con giardino perimetrale. La villa di massima categoria di risparmio energetico classe A4, offrirà il massimo dell'efficienza energetica (NZEB - Near Zero Energy Building), riducendo mediamente i consumi del 60% rispetto alle classi inferiori, con comfort abitativo elevato e design moderno. Le abitazioni A4 sono costruzioni ad altissima efficienza, il che significa che il loro fabbisogno energetico sarà quasi nullo grazie all'utilizzo di energie rinnovabili e materiali isolanti all'avanguardia. Villa Charlotte sarà completamente personalizzabile, affiancati da un architetto potrete totalmente valutare gli spazi e decidere le finiture e gli accessori. La villa si svilupperà su due livelli e conterà al piano terra luminoso living, tre camere da letto e due bagni, ed al piano primo ampia mansarda completamente sviluppabile e personalizzabile secondo i Vostri gusti. All’esterno il porticato sarà splendida location per cene in famiglia e con amici. L’area è meta turistica per eccellenza, è una location esclusiva non solo per il grande fascino del suo paesaggio – dato dalla bellezza delle acque blu del lago, ma anche per la vicinanza alle mete turistiche altrettanto rinomate della zona, tra cui Arona, Meina, Stresa e Verbania, tutte caratteristiche località lacustri che offrono un enorme patrimonio storico e culturale, accanto ad occasioni di svago e di relax a contatto con la natura, tra centri nautici e sportivi, campi da golf e maneggi, suggestivi locali ed esclusivi negozi. È in questo scenario magnifico che si inserirà Villa Charlotte, una nuova villa in elegante stile moderno. All’interno, per l’ottima esposizione solare, la luce naturale […]

