Valutazione immobiliare indipendente, accurata e gratuita
Casa indipendente in vendita a Galliate a 350.000 € (cod.6531f8ca)
Caasa non ha sufficienti informazioni per commentare la casa indipendente in vendita a Galliate - 6531f8ca.
Analisi immobiliare
I dati in posseso di Caasa per quest'immobile sono insufficienti, inaffidabili o contraddittori per proporre un'analisi attendibile.
Mercato immobiliare a Galliate
Per quanto riguarda più in generale la città di Galliate, sono presenti al momento più di 150 annunci per
case indipendenti in vendita (meno del 5% dell'intera provincia) .
Possiamo inoltre considerare che in tutta la città negli ultimi 6 mesi, i prezzi per case indipendenti in vendita sono
in sostanziale aumento (+6,61%).
NOVITÀ Il risultato che vedi dipende dai dati che siamo riusciti ad estrarre dall'annuncio: ottieni una stima più accuranta di questo immobile, inserendo dati più precisi.
N.B. L'Opinione di Caasa® è un servizio sperimentale realizzato tramite tecniche di Intelligenza Artificiale, fornito senza alcuna garanzia di correttezza e completezza. Leggi il disclaimer o segnalaci un problema.
IMMAGINI
IN SINTESI
PROPOSTO DA:
LiFE Immobiliare srl
Viale Beato Quagliotti, 40, Galliate (NO)
Verificata da Caasa®
DESCRIZIONE
di nuova costruzione con posto auto con termocondizionamento con garage con giardino di recente ristrutturazione di nuova costruzione
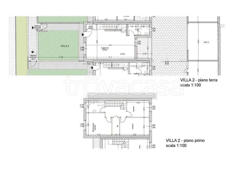
GALLIATE: € 350.000 In pieno centro, ma in una tranquilla zona residenziale, nuovissima villetta a schiera completamente autonoma, pronta consegna, con giardino e portico privati. L’ingresso conduce a un luminoso soggiorno con cucina a vista che si apre sul portico, ideale per vivere gli spazi esterni in ogni stagione. Al piano terra trovano spazio anche un comodo ambiente lavanderia e il bagno. Al piano superiore la zona notte ospita tre camere, un secondo bagno e la possibilità di ricavare una cabina armadio, adattando la casa alle tue esigenze. Realizzata in NZEB, questa abitazione garantisce massimo comfort e consumi ridotti grazie a impianto fotovoltaico, riscaldamento a pavimento, cappotto termico, serramenti triplo vetro e sistemi di ventilazione e sanificazione dell’aria. Predisposizioni per aria condizionata, antifurto e domotica completano una casa pensata per il futuro. Box doppio incluso. Una soluzione nuova, efficiente e indipendente, perfetta per chi cerca qualità, comfort e centralità. Contattaci per maggiori informazioni o per fissare una visita Tel. 0321 866400 | 331 3521393

