Valutazione immobiliare indipendente, accurata e gratuita
L'Opinione di Caasa® per la casa indipendente in vendita a Galliate a 350.000 € (cod.64f76a31)
Secondo Caasa, per la casa indipendente in vendita a Galliate, la richiesta di 350.000 € è significativamente svantaggiosa rispetto agli annunci simili.
	Analisi immobiliare
	
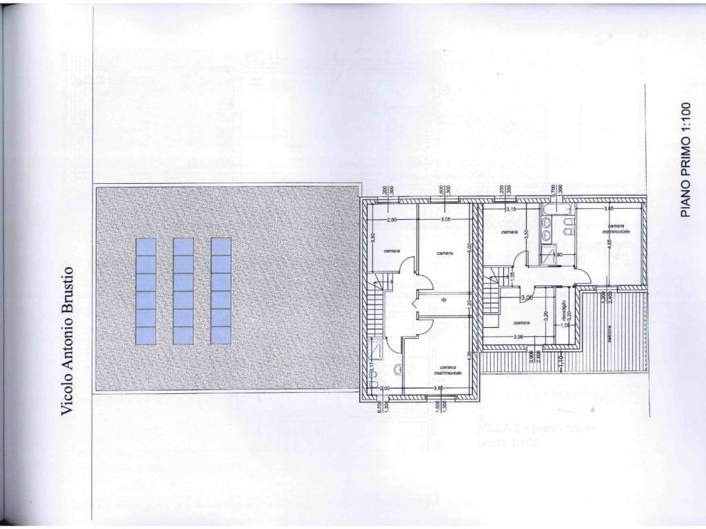
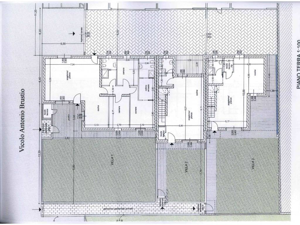
	La casa indipendente, situata nella zona OMI C1, è proposta in vendita (da LiFE Immobiliare srl) a 
		350.000 € per una 
		superficie commerciale di 
		168 m² e quindi ad un prezzo per metro quadrato pari a 
	
	2083 €/m²
		 .
	
	
	Tale prezzo 
		è meno conveniente di quello stimato da Caasa per immobili in vendita simili per tipologia, caratteristiche, classe energetica e zona, che è compreso tra 
		1.590 €/m² e 
		1.764 €/m².
	
	Presa in considerazione la posizione della casa indipendente si sono utilizzati in raffronto i valori medi nelle zone limitrofe . Ad affinare la stima ha contribuito anche la classe energetica (A+) oltre alla conoscenza dello stato dell'immobile (di nuova costruzione). Per queste ragioni i valori accettabili per l'offerta costituiscono un intervallo relativamente limitato.
	
	
	
	Mercato immobiliare a Galliate
	
	Per quanto riguarda più in generale la città di Galliate, sono presenti al momento più di 150 annunci per 
		case indipendenti in vendita (meno del 5% dell'intera provincia) .
	
	
	
	Relativamente alla dinamica dei prezzi, possiamo dire che negli ultimi 6 mesi i prezzi medi in tutta la città per case indipendenti in vendita sono 
		in calo (-4,59%).
	
	
	
NOVITÀ Il risultato che vedi dipende dai dati che siamo riusciti ad estrarre dall'annuncio: ottieni una stima più accuranta di questo immobile, inserendo dati più precisi.
N.B. L'Opinione di Caasa® è un servizio sperimentale realizzato tramite tecniche di Intelligenza Artificiale, fornito senza alcuna garanzia di correttezza e completezza. Leggi il disclaimer o segnalaci un problema.
IMMAGINI
IN SINTESI
PROPOSTO DA:
                             
                        
LiFE Immobiliare srl
Viale Beato Quagliotti, 40, Galliate (NO)
Verificata da Caasa®
 
                               
                               
                               
                              