Valutazione immobiliare indipendente, accurata e gratuita
Appartamento in vendita a Galliate a 245.000 € (cod.64d1cca0)
Caasa non ha sufficienti informazioni per commentare l'appartamento in vendita a Galliate - 64d1cca0.
	Analisi immobiliare
	
	I dati in posseso di Caasa per quest'immobile sono insufficienti, inaffidabili o contraddittori per proporre un'analisi attendibile.
	
	Mercato immobiliare a Galliate
	
	Per quanto riguarda più in generale la città di Galliate, sono presenti al momento più di 200 annunci per 
		appartamenti in vendita (meno del 5% dell'intera provincia) .
	
	
	
	Per quanto riguarda la dinamica dei prezzi, negli ultimi 6 mesi i prezzi medi in tutta la città per appartamenti in vendita sono 
		in forte aumento (+10,53%).
	
	
	
NOVITÀ Il risultato che vedi dipende dai dati che siamo riusciti ad estrarre dall'annuncio: ottieni una stima più accuranta di questo immobile, inserendo dati più precisi.
N.B. L'Opinione di Caasa® è un servizio sperimentale realizzato tramite tecniche di Intelligenza Artificiale, fornito senza alcuna garanzia di correttezza e completezza. Leggi il disclaimer o segnalaci un problema.
IMMAGINI
IN SINTESI
PROPOSTO DA:
                             
                        
LiFE Immobiliare srl
Viale Beato Quagliotti, 40, Galliate (NO)
Verificata da Caasa®
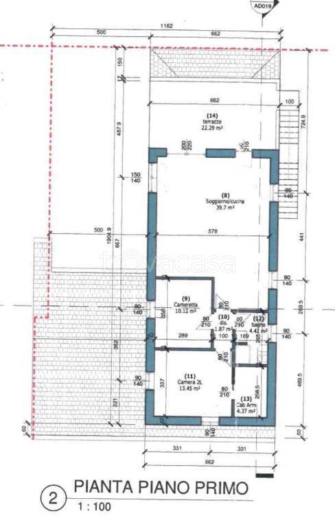
DESCRIZIONE
di nuova costruzione con posto auto con terrazza con termocondizionamento di nuova costruzione
GALLIATE: € 245.000 In un contesto unico, dove un’antica cascina galliatese ha lasciato spazio a una nuova residenza immersa nei campi di grano, rimane disponibile solo questo appartamento al primo piano con ingresso indipendente. Un ampio soggiorno con cucina a vista si apre sul terrazzo, perfetto per respirare tranquillità. Due camere accoglienti, bagno moderno e box singolo completano la casa. riscaldamento a pavimento e fotovoltaico garantiscono comfort e risparmio. Un’opportunità rara: indipendenza, modernità ed eleganza in un’unica soluzione. Contattaci per maggiori info - Tel. 0321866400 / 3313521393 Cod. 2418
 
                               
                               
                               
                               
                               
                               
                               
                              
