Valutazione immobiliare indipendente, accurata e gratuita
Appartamento in vendita a Bellinzago Novarese a 19.650 € (cod.657e3599)
Caasa non ha sufficienti informazioni per commentare l'appartamento in vendita a Bellinzago Novarese - 657e3599.
Analisi immobiliare
I dati in posseso di Caasa per quest'immobile sono insufficienti, inaffidabili o contraddittori per proporre un'analisi attendibile.
Mercato immobiliare a Bellinzago Novarese
Per quanto riguarda più in generale il comune di Bellinzago Novarese, sono presenti al momento circa cento annunci per
appartamenti in vendita (meno del 5% dell'intera provincia) .
Relativamente alla dinamica dei prezzi, possiamo dire che negli ultimi 6 mesi i prezzi medi in tutto il comune per appartamenti in vendita sono
in forte aumento (+13,59%).
NOVITÀ Il risultato che vedi dipende dai dati che siamo riusciti ad estrarre dall'annuncio: ottieni una stima più accuranta di questo immobile, inserendo dati più precisi.
N.B. L'Opinione di Caasa® è un servizio sperimentale realizzato tramite tecniche di Intelligenza Artificiale, fornito senza alcuna garanzia di correttezza e completezza. Leggi il disclaimer o segnalaci un problema.
IMMAGINI
IN SINTESI
PROPOSTO DA:
Case all'Asta
DESCRIZIONE
di recente costruzione con terrazza con balcone di recente costruzione in asta giudiziaria
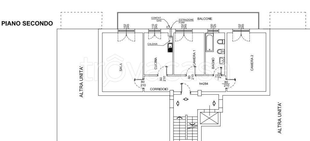
Appartamento al secondo piano. Composto da sala, cucina, bagno e corridoio. Due camere da letto e balcone. Nessun costo di iscrizione con Case all'Asta - Acquista senza Rischi. Data di asta: 19/05/2026 Offerta minima: 19.650 € Procedura: 187/2024 lot […]
