Valutazione immobiliare indipendente, accurata e gratuita
Appartamento in vendita ad Arona a 335.000 € (cod.641621d0)
Caasa non ha sufficienti informazioni per commentare l'appartamento in vendita ad Arona - 641621d0.
Analisi immobiliare
I dati in posseso di Caasa per quest'immobile sono insufficienti, inaffidabili o contraddittori per proporre un'analisi attendibile.
Mercato immobiliare ad Arona
Per quanto riguarda più in generale il comune di Arona, sono presenti al momento più di 200 annunci per
appartamenti in vendita (meno del 5% dell'intera provincia)
e il maggior numero di annunci per questa tipologia sono relativi alla zona di Mercurago.
Per quanto riguarda la dinamica dei prezzi, negli ultimi 6 mesi i prezzi medi in tutto il comune per appartamenti in vendita sono
sostanzialmente stabili (+0,89%).
NOVITÀ Il risultato che vedi dipende dai dati che siamo riusciti ad estrarre dall'annuncio: ottieni una stima più accuranta di questo immobile, inserendo dati più precisi.
N.B. L'Opinione di Caasa® è un servizio sperimentale realizzato tramite tecniche di Intelligenza Artificiale, fornito senza alcuna garanzia di correttezza e completezza. Leggi il disclaimer o segnalaci un problema.
IMMAGINI
IN SINTESI
PROPOSTO DA:
Sap S.r.l.
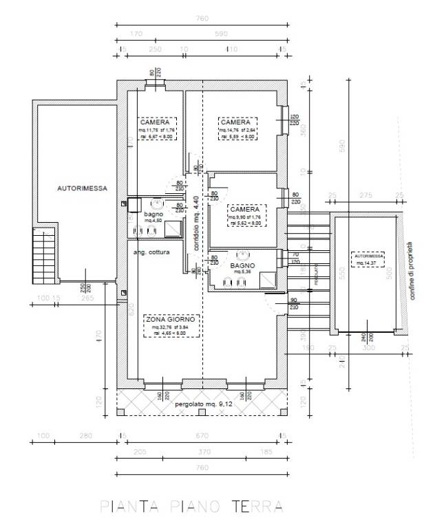
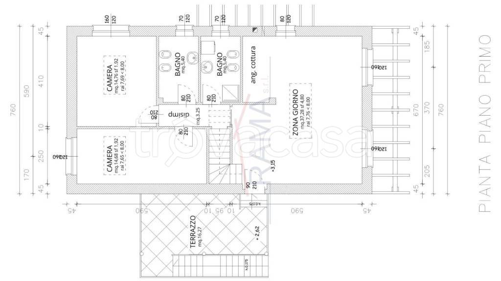
DESCRIZIONE
di nuova costruzione con posto auto con giardino con terrazza con termocondizionamento con cucina abitabile di nuova costruzione con cortile
A pochi passi dal centro di Arona vendita di appartamento piano primo in villa bifamiliare in classe A++ 335.000,00€ L'appartamento ha il suo accesso indipendente dal cortile privato e composto da: sala, cucina abitabile, 2 bagni, 2 camere da letto. Scala interna collega all'ampio piano sottotetto finestrato agibile non abitabile. Box auto al piano terra e giardino privato, terrazzo, posto auto. PERSONALIZZAZIONE DEGLI INTERNI IMPIANTO FOTOVOLTAICO, RISCALDAMENTO A PAVIMENTO AUTONOMO CON POMPA DI CALORE PREDISPOSIZIONE IMPIANTO ALLARME E IMPIANTI DI CLIMATIZZAZIONE E PREDISPOSIZIONE IMPIANTO DI VENTILAZIONE MECCANICA CAPITOLATO CON AMPIA SCELTA DI PAVIMENTI E RIVESTIMENTI

