Valutazione immobiliare indipendente, accurata e gratuita
Casa indipendente in vendita a Mondovì in zona San Biagio a 40.000 € (cod.6538a034)
Caasa non ha sufficienti informazioni per commentare la casa indipendente a Mondovì in zona San Biagio - 6538a034.
Analisi immobiliare
I dati in posseso di Caasa per quest'immobile sono insufficienti, inaffidabili o contraddittori per proporre un'analisi attendibile.
Mercato immobiliare a Mondovì
Per quanto riguarda più in generale la città di Mondovì, sono presenti al momento più di 300 annunci per
case indipendenti in vendita (meno del 5% dell'intera provincia) .
Per quanto riguarda la dinamica dei prezzi, negli ultimi 6 mesi i prezzi medi in tutta la città per case indipendenti in vendita sono
in debole aumento (+2,20%).
NOVITÀ Il risultato che vedi dipende dai dati che siamo riusciti ad estrarre dall'annuncio: ottieni una stima più accuranta di questo immobile, inserendo dati più precisi.
N.B. L'Opinione di Caasa® è un servizio sperimentale realizzato tramite tecniche di Intelligenza Artificiale, fornito senza alcuna garanzia di correttezza e completezza. Leggi il disclaimer o segnalaci un problema.
IMMAGINI
IN SINTESI
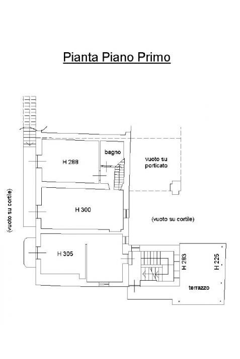
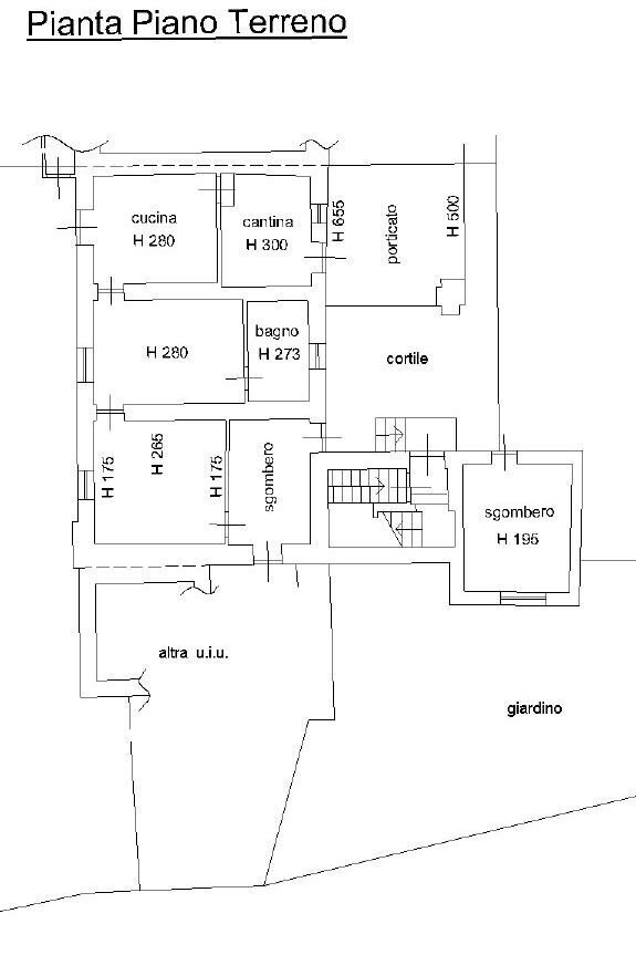
DESCRIZIONE
da ristrutturare con cantina con posto auto con balcone con giardino da ristrutturare con cortile edificio storico
Se cerchi un rustico da ristrutturare in Piemonte, questa proprietà è l’occasione perfetta! Situato in una zona tranquilla e soleggiata di San Biagio di Mondovì, il rustico è libero su tre lati e offre cortile privato, giardino e forno a legna storico, ancora in uso dalla comunità locale per la produzione del pane. Caratteristiche principali del rustico in vendita: - Spazi ampi e versatili: ideali per creare una casa personalizzata su misura - Ottima esposizione al sole: ambienti luminosi e confortevoli - Giardino e cortile privati: perfetti per vivere all’aperto in totale relax - Stile d’epoca unico: dettagli architettonici autentici che conferiscono fascino - Forno a legna storico: un elemento tradizionale da valorizzare nella ristrutturazione Opportunità di espansione Possibilità di acquistare un terreno aggiuntivo di circa 3000 mq (prezzo a parte), ideale per chi desidera ulteriore spazio esterno o un orto privato. Perché scegliere questo rustico Questa soluzione è perfetta per chi cerca un rustico da ristrutturare in Piemonte, con casa indipendente in vendita, giardino privato e caratteristiche d’epoca uniche. La proprietà offre la possibilità di creare una dimora luminosa, accogliente e personalizzata, in una location tranquilla ma comoda ai servizi locali


