Valutazione immobiliare indipendente, accurata e gratuita
Appartamento in vendita a Limone Piemonte a 230.000 € (cod.651ed0a2)
Caasa non ha sufficienti informazioni per commentare l'appartamento in vendita a Limone Piemonte - 651ed0a2.
Analisi immobiliare
I dati in posseso di Caasa per quest'immobile sono insufficienti, inaffidabili o contraddittori per proporre un'analisi attendibile.
Mercato immobiliare a Limone Piemonte
Per quanto riguarda più in generale il comune di Limone Piemonte, sono presenti al momento più di 300 annunci per
appartamenti in vendita (meno del 5% dell'intera provincia)
e il maggior numero di annunci per questa tipologia sono relativi alla zona di Limonetto.
Possiamo inoltre considerare che in tutto il comune negli ultimi 6 mesi, i prezzi per appartamenti in vendita sono
sostanzialmente stabili (-0,14%).
NOVITÀ Il risultato che vedi dipende dai dati che siamo riusciti ad estrarre dall'annuncio: ottieni una stima più accuranta di questo immobile, inserendo dati più precisi.
N.B. L'Opinione di Caasa® è un servizio sperimentale realizzato tramite tecniche di Intelligenza Artificiale, fornito senza alcuna garanzia di correttezza e completezza. Leggi il disclaimer o segnalaci un problema.
IMMAGINI
IN SINTESI
DESCRIZIONE
con terrazza con balcone con cantina per vacanza con caminetto
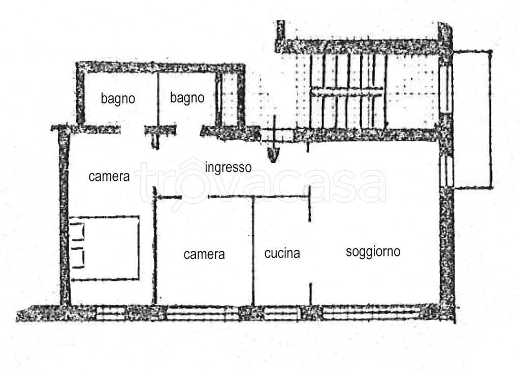
Luminoso trilocale con camino nel cuore di Limone Luminoso trilocale con camino e balcone vivibile nel cuore di Limone Piemonte In una zona verde, tranquilla e riservata, nel centro di Limone Piemonte a soli 200 m dalla piste da sci, proponiamo in vendita un accogliente appartamento di circa 60 mq + balcone, situato al terzo piano di un piccolo e ben tenuto condominio. L'appartamento si compone di ingresso, soggiorno con camino a legna (elemento raro e molto apprezzato), cucinino separato, camera matrimoniale con bagno privato dotato di doccia, seconda camera con letto a castello e un secondo servizio. Grazie alla favorevole esposizione e alle numerose aperture, l’ambiente risulta particolarmente luminoso e arioso. Completa la proprietà un balcone vivibile esposto a ovest, perfetto per momenti di relax all’aperto. Al piano terra, senza barriere architettoniche, si trova una spaziosa cantina, ideale per il deposito di sci e biciclette. L'appartamento è in ottime condizioni e viene venduto completamente arredato. Soluzione ideale sia come casa vacanza che come investimento in una delle località montane più apprezzate del Piemonte. EpGl (kwh/anno) 164.65

