Valutazione immobiliare indipendente, accurata e gratuita
Casa indipendente in vendita ad Envie a 110.000 € (cod.6571c11b)
Caasa non ha sufficienti informazioni per commentare la casa indipendente in vendita ad Envie - 6571c11b.
Analisi immobiliare
I dati in posseso di Caasa per quest'immobile sono insufficienti, inaffidabili o contraddittori per proporre un'analisi attendibile.
Mercato immobiliare ad Envie
Per quanto riguarda più in generale il comune di Envie, sono presenti al momento più di cinquanta annunci per
case indipendenti in vendita (meno dell'1% dell'intera provincia) .
La dinamica dei prezzi in tutto il comune mostra che negli ultimi 6 mesi, i prezzi per case indipendenti in vendita sono
in leggera diminuzione (-2,86%).
NOVITÀ Il risultato che vedi dipende dai dati che siamo riusciti ad estrarre dall'annuncio: ottieni una stima più accuranta di questo immobile, inserendo dati più precisi.
N.B. L'Opinione di Caasa® è un servizio sperimentale realizzato tramite tecniche di Intelligenza Artificiale, fornito senza alcuna garanzia di correttezza e completezza. Leggi il disclaimer o segnalaci un problema.
IMMAGINI
IN SINTESI
PROPOSTO DA:
Agenzia Tecnocasa Immobiliare Valle Po Sas
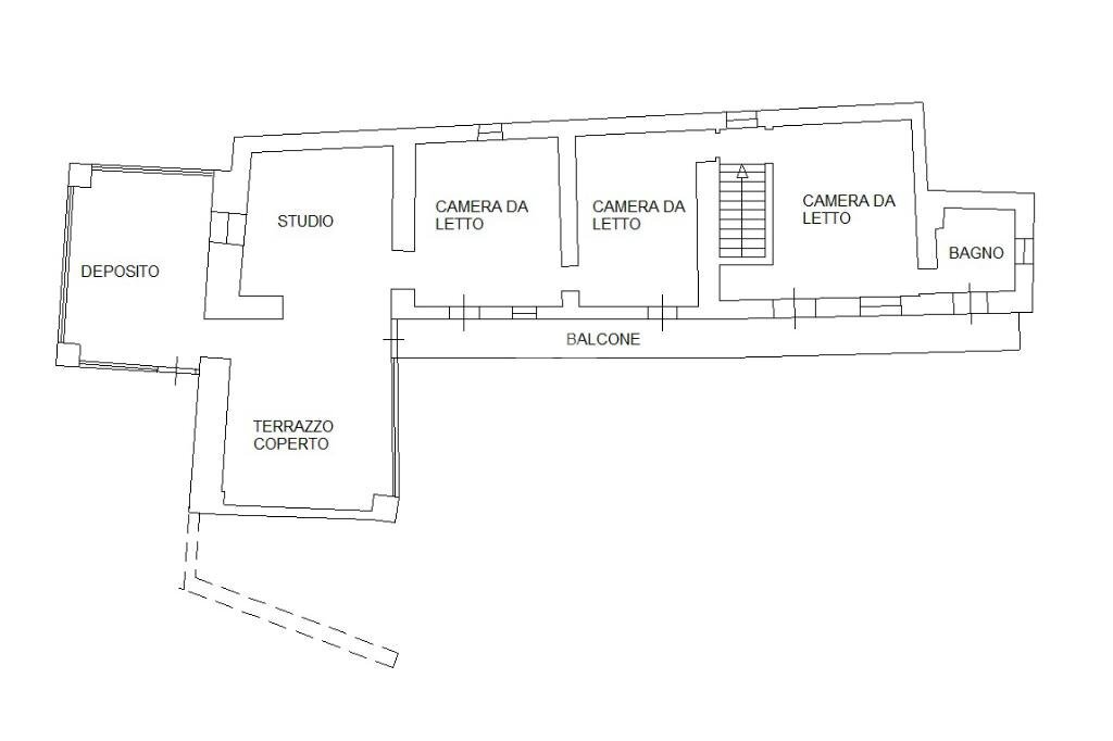
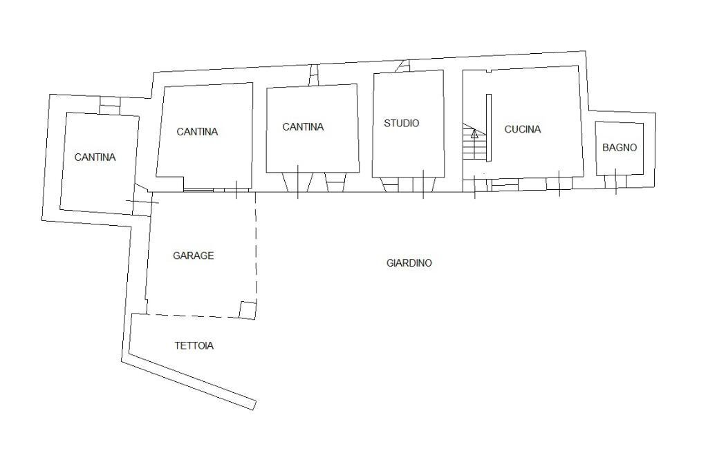
DESCRIZIONE
da ristrutturare con giardino con posto auto con terrazza con balcone con cantina con garage da ristrutturare
ENVIE in Via Comba Garitta, zona tranquilla e ben esposta al sole, casa indipendente con giardino di pertinenza. L'immobile si sviluppa su due livelli. Al piano terra sono presenti una cucina, un bagno, uno studio e tre locali utilizzati come cantina. Attraverso scala interna si accede al primo piano che si compone di tre ampie camere da letto matrimoniali, tutte con uscita sul balcone, un bagno e uno studio collegato al terrazzo coperto. Internamente l'immobile si presenta da ristrutturare ma di recente è stato rifatto completamente il tetto. A completare l'abitazione è presente il garage, la tettoia e un locale di deposito retrostante il fabbricato



