Valutazione immobiliare indipendente, accurata e gratuita
Casa indipendente in vendita a Bra a 39.000 € (cod.652cbc56)
Caasa non ha sufficienti informazioni per commentare la casa indipendente in vendita a Bra - 652cbc56.
Analisi immobiliare
I dati in posseso di Caasa per quest'immobile sono insufficienti, inaffidabili o contraddittori per proporre un'analisi attendibile.
Mercato immobiliare a Bra
Per quanto riguarda più in generale la città di Bra, sono presenti al momento più di 300 annunci per
case indipendenti in vendita (meno del 5% dell'intera provincia)
e il maggior numero di annunci per questa tipologia sono relativi alla zona di Bandito.
Possiamo inoltre considerare che in tutta la città negli ultimi 6 mesi, i prezzi per case indipendenti in vendita sono
sostanzialmente stabili (+0,91%).
NOVITÀ Il risultato che vedi dipende dai dati che siamo riusciti ad estrarre dall'annuncio: ottieni una stima più accuranta di questo immobile, inserendo dati più precisi.
N.B. L'Opinione di Caasa® è un servizio sperimentale realizzato tramite tecniche di Intelligenza Artificiale, fornito senza alcuna garanzia di correttezza e completezza. Leggi il disclaimer o segnalaci un problema.
IMMAGINI
IN SINTESI
PROPOSTO DA:
Tempocasa Bra
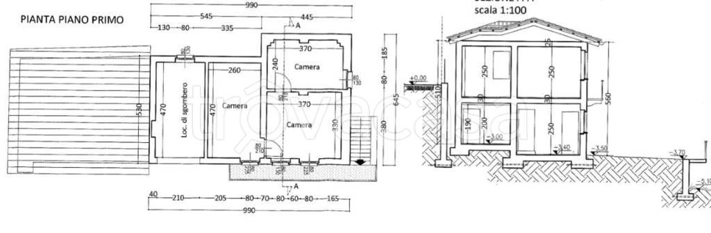
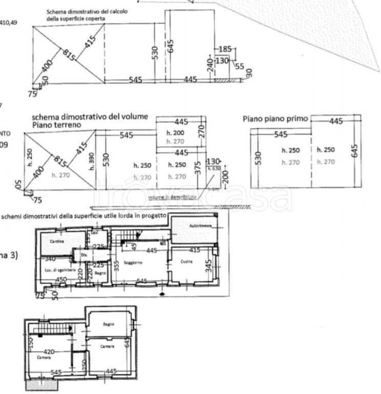
DESCRIZIONE
con posto auto con cantina con giardino con cortile
Rif: 4SFDMba - In Strada Fey Di Mezzogiorno a Bra, in zona collinare, a soli 5 minuti dal centro, la TEMPOCASA di BRA, propone in vendita AMPIO CASALE LIBERO SU 4 LATI CON GIARDINO E TERRENO AGRICOLO DI 1400 MQ Attraverso il cortile privato si accede alla soluzione, COMPLETAMENTE INDIPENDENTE, che si presenta suddivisa su due piani. L'immobile è così disposto: quattro camere da letto, cucina, un ripostiglio, un locale di sgombero e cantina. Grazie alla quadrupla esposizione la soluzione gode di un ottima vista panoramica e risulta essere ben arieggiato. Completano la proprietà un ampio cortile/giardino privato e BOX AUTO Godendo di spazi ampi e ben definiti l'immobile si presta a svariate modifiche interne rendendolo adatto ad ogni tipo di esigenza 4 MOTIVI PER SCEGLIERE QUESTO IMMOBILE: - AMPIA METRATURA - ZONA TRANQUILLA - ESPOSIZIONE SU 4 LATI - GIARDINO E CORTILE PRIVATO - COMPLETAMENTE INDIPENDENTE Per avere ulteriori informazioni o per fissare un appuntamento può chiamarci al 017252871 o al 3275289749 e venite a trovarci in Agenzia a Bra in Via Vittorio Emanuele II 275/A Se fosse interessato ad una valutazione GRATUITA e SENZA IMPEGNO del Suo immobile siamo a Sua completa disposizione! Le ricordiamo, inoltre, che la nostra struttura offre CONSULENZE DI MUTUO GRATUITE CON TASSI AGEVOLATI

