Valutazione immobiliare indipendente, accurata e gratuita
Casa indipendente in vendita a Beinette a 350.000 € (cod.63eb9316)
Caasa non ha sufficienti informazioni per commentare la casa indipendente in vendita a Beinette - 63eb9316.
Analisi immobiliare
I dati in posseso di Caasa per quest'immobile sono insufficienti, inaffidabili o contraddittori per proporre un'analisi attendibile.
Mercato immobiliare a Beinette
Per quanto riguarda più in generale il comune di Beinette, sono presenti al momento più di cinquanta annunci per
case indipendenti in vendita (meno dell'1% dell'intera provincia) .
Possiamo inoltre considerare che in tutto il comune negli ultimi 6 mesi, i prezzi per case indipendenti in vendita sono
in sostanziale aumento (+5,01%).
NOVITÀ Il risultato che vedi dipende dai dati che siamo riusciti ad estrarre dall'annuncio: ottieni una stima più accuranta di questo immobile, inserendo dati più precisi.
N.B. L'Opinione di Caasa® è un servizio sperimentale realizzato tramite tecniche di Intelligenza Artificiale, fornito senza alcuna garanzia di correttezza e completezza. Leggi il disclaimer o segnalaci un problema.
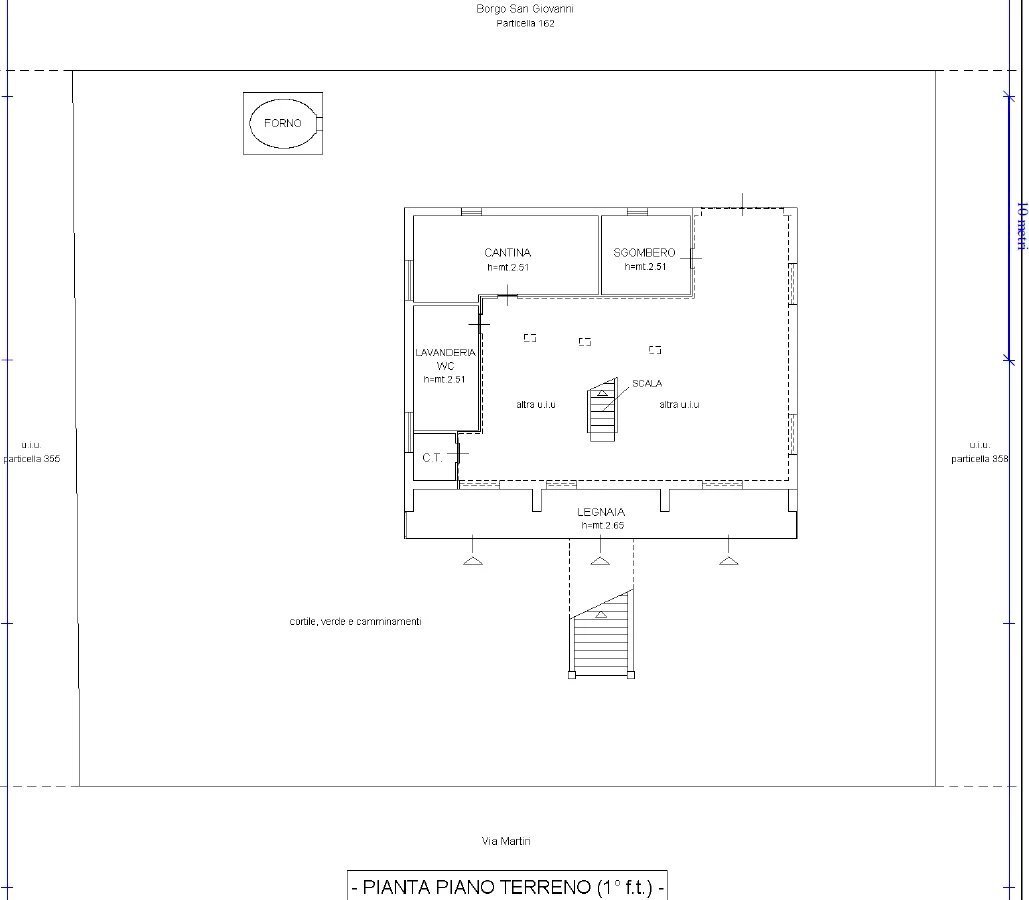
IMMAGINI
IN SINTESI
PROPOSTO DA:
consulenti immobiliari
DESCRIZIONE
da ristrutturare con posto auto con cantina con giardino con termocondizionamento con balcone con terrazza con cucina abitabile da ristrutturare con caminetto
IMMOBILE VENDUTO! Beinette, in Borgo San Giovanni, 4 ma con accesso pedonale da Via Martiri (proprio accanto alla Parafarmacia) proponiamo in vendita grande villa indipendente su 4 lati in buonissimo stato. Costruita a metà anni '90 questa casa ha tu […]
