Valutazione immobiliare indipendente, accurata e gratuita
Casa indipendente in vendita a Barge a 170.000 € (cod.6542ea3a)
Caasa non ha sufficienti informazioni per commentare la casa indipendente in vendita a Barge - 6542ea3a.
Analisi immobiliare
I dati in posseso di Caasa per quest'immobile sono insufficienti, inaffidabili o contraddittori per proporre un'analisi attendibile.
Mercato immobiliare a Barge
Per quanto riguarda più in generale il comune di Barge, sono presenti al momento più di 200 annunci per
case indipendenti in vendita (meno del 5% dell'intera provincia) .
Possiamo inoltre considerare che in tutto il comune negli ultimi 6 mesi, i prezzi per case indipendenti in vendita sono
sostanzialmente stabili (-0,11%).
NOVITÀ Il risultato che vedi dipende dai dati che siamo riusciti ad estrarre dall'annuncio: ottieni una stima più accuranta di questo immobile, inserendo dati più precisi.
N.B. L'Opinione di Caasa® è un servizio sperimentale realizzato tramite tecniche di Intelligenza Artificiale, fornito senza alcuna garanzia di correttezza e completezza. Leggi il disclaimer o segnalaci un problema.
IMMAGINI
IN SINTESI
PROPOSTO DA:
Agenzia Tecnorete Immobiliare Valle Infernotto Srl
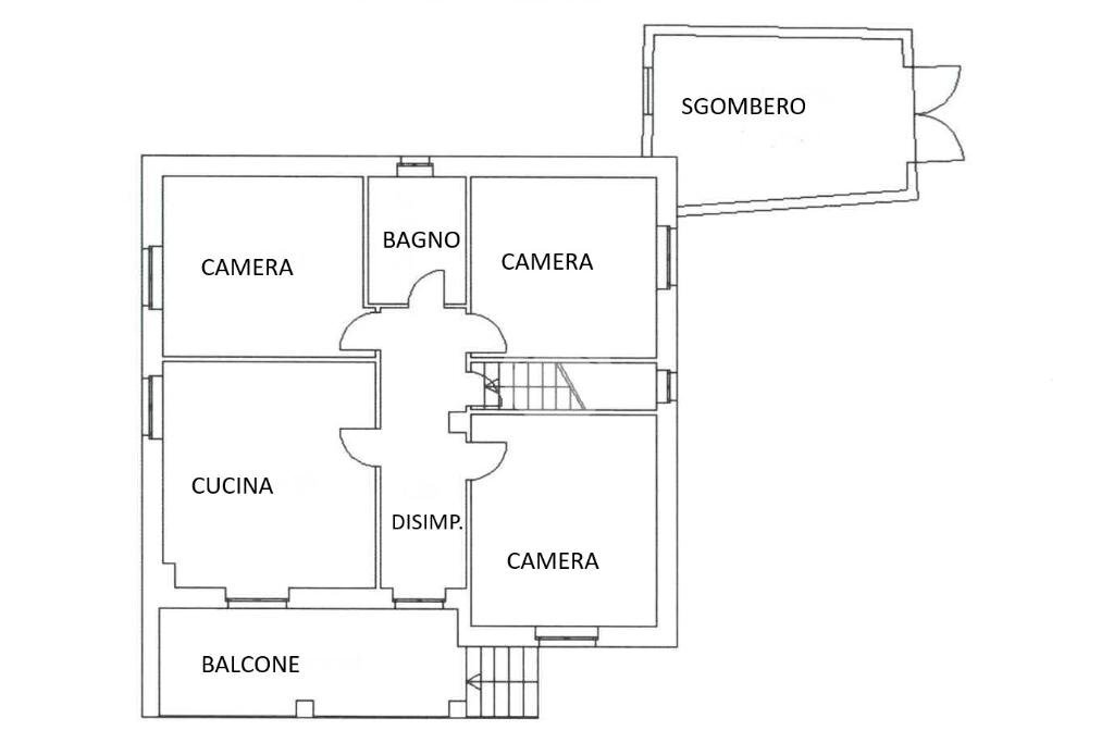
DESCRIZIONE
con giardino con garage con angolo cottura
BARGE in Via Cuneo, tra Crocera e Saluzzo, casa indipendente con annesse tettoie e stalla. L'immobile si eleva su due livelli con la parte abitativa che si sviluppa al piano primo, dove sono presenti soggiorno con angolo cottura, tre camere da letto. Il bagno è finestrato. Al piano terra un ampio locale di sgombero adibito ad autorimessa. Oltre ai fabbricati si ha la possibilità di acquistare, con un aggiunta di prezzo, appezzamenti di terreno agricolo a seconda delle esigenze


