Valutazione immobiliare indipendente, accurata e gratuita
Casale in vendita a Cantarana in zona Bricco Barrano a 390.000 € (cod.654cd244)
Caasa non ha sufficienti informazioni per commentare il casale a Cantarana in zona Bricco Barrano - 654cd244.
Analisi immobiliare
I dati in posseso di Caasa per quest'immobile sono insufficienti, inaffidabili o contraddittori per proporre un'analisi attendibile.
Mercato immobiliare a Cantarana
Per quanto riguarda più in generale il comune di Cantarana, sono presenti al momento meno di dieci annunci per
casali in vendita (meno dell'1% dell'intera provincia) .
Vedi altre informazioni direttamente su
Mercato-Immobiliare.info
NOVITÀ Il risultato che vedi dipende dai dati che siamo riusciti ad estrarre dall'annuncio: ottieni una stima più accuranta di questo immobile, inserendo dati più precisi.
N.B. L'Opinione di Caasa® è un servizio sperimentale realizzato tramite tecniche di Intelligenza Artificiale, fornito senza alcuna garanzia di correttezza e completezza. Leggi il disclaimer o segnalaci un problema.
IMMAGINI
IN SINTESI
PROPOSTO DA:
Engel & Völkers Asti-Monferrato
DESCRIZIONE
con giardino con garage con balcone con caminetto con angolo cottura
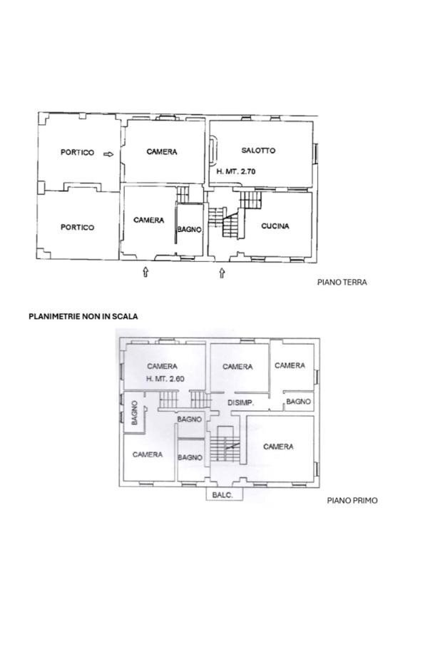
Antica dimora di un viticoltore, edificata nei primi anni del Novecento e sapientemente ampliata nel tempo, la proprietà si distingue per la luminosità degli ambienti e per l’equilibrio armonioso tra autenticità e comfort contemporaneo. Varcando la soglia, si viene immediatamente accolti da un’atmosfera calda e invitante, dove materiali originali, mattoni a vista e soffitti con volte in cotto raccontano una storia di eleganza rurale e cura artigianale. Il cuore della casa è rappresentato dal grande soggiorno con camino, perfetto per i momenti di relax, e dalla cucina in stile country contemporaneo, pensata per vivere la convivialità in un ambiente funzionale e accogliente. Al piano terra si colloca un appartamento indipendente, con accesso anche dall’esterno che risulta essere una soluzione ideale per accogliere ospiti: è composto da soggiorno con angolo cottura, camera matrimoniale, bagno e un delizioso portico esterno, che offre privacy e comfort. Salendo ai piani superiori si scoprono due ampie camere con bagno privato, altre due camere aggiuntive e una luminosa suite padronale, completa di bagno e balconcino panoramico con vista sulle colline circostanti. Il giardino, curato e ombreggiato da alberi, invita a godere appieno della vita all’aria aperta: il pergolato di gelsomino regala angoli di pace durante le serate estive, mentre il cortile in ghiaia e il portico laterale coniugano perfettamente praticità e tranquillità. Completa la proprietà un comodo garage. La proprietà è l’ideale per chi cerca una residenza immersa nella quiete della campagna, ma dotata di tutti i comfort per accogliere famiglia, amici o ospiti in un contesto autentico e suggestivo



