Valutazione immobiliare indipendente, accurata e gratuita
Negozio in vendita a Canelli a 43.740 € (cod.656ca97a)
Caasa non ha sufficienti informazioni per commentare il negozio in vendita a Canelli - 656ca97a.
Analisi immobiliare
I dati in posseso di Caasa per quest'immobile sono insufficienti, inaffidabili o contraddittori per proporre un'analisi attendibile.
Mercato immobiliare a Canelli
Per quanto riguarda più in generale il comune di Canelli, sono presenti al momento più di trenta annunci per
negozi in vendita (meno del 5% dell'intera provincia) .
Vedi altre informazioni direttamente su
Mercato-Immobiliare.info
NOVITÀ Il risultato che vedi dipende dai dati che siamo riusciti ad estrarre dall'annuncio: ottieni una stima più accuranta di questo immobile, inserendo dati più precisi.
N.B. L'Opinione di Caasa® è un servizio sperimentale realizzato tramite tecniche di Intelligenza Artificiale, fornito senza alcuna garanzia di correttezza e completezza. Leggi il disclaimer o segnalaci un problema.
IMMAGINI
IN SINTESI
PROPOSTO DA:
Case all'Asta
DESCRIZIONE
di recente costruzione di recente costruzione in asta giudiziaria
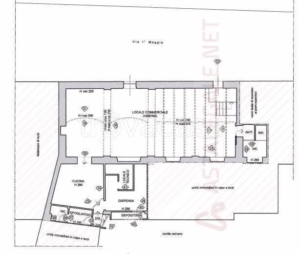
Locale commerciale al piano terra. Comprende area principale adibita a vineria. Presente locale dispensa annesso alla vineria. Nessun costo di iscrizione con Case all'Asta - Acquista senza Rischi. Data di asta: 06/05/2026 Offerta minima: 43.740 € Pro […]
