Valutazione immobiliare indipendente, accurata e gratuita
Casa indipendente in vendita a Villanova Monferrato a 324.000 € (cod.658a5da0)
Caasa non ha sufficienti informazioni per commentare la casa indipendente a Villanova Monferrato - 658a5da0.
Analisi immobiliare
I dati in posseso di Caasa per quest'immobile sono insufficienti, inaffidabili o contraddittori per proporre un'analisi attendibile.
Mercato immobiliare a Villanova Monferrato
Per quanto riguarda più in generale il comune di Villanova Monferrato, sono presenti al momento più di trenta annunci per
case indipendenti in vendita (meno dell'1% dell'intera provincia) .
Per quanto riguarda la dinamica dei prezzi, negli ultimi 6 mesi i prezzi medi in tutto il comune per case indipendenti in vendita sono
sostanzialmente stabili (+0,97%).
NOVITÀ Il risultato che vedi dipende dai dati che siamo riusciti ad estrarre dall'annuncio: ottieni una stima più accuranta di questo immobile, inserendo dati più precisi.
N.B. L'Opinione di Caasa® è un servizio sperimentale realizzato tramite tecniche di Intelligenza Artificiale, fornito senza alcuna garanzia di correttezza e completezza. Leggi il disclaimer o segnalaci un problema.
IMMAGINI
IN SINTESI
PROPOSTO DA:
Case all'Asta
DESCRIZIONE
di nuova costruzione con cortile con garage con posto auto con giardino in asta giudiziaria di nuova costruzione
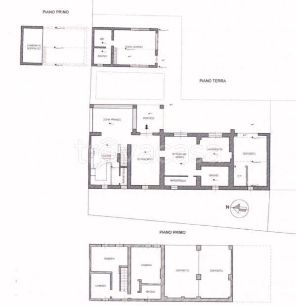
Fabbricato rurale in linea, riconvertito a residenziale su due piani fuori terra. Composto da unità abitative, autorimessa, locali accessori e bassi fabbricati. Completa la proprietà ampio cortile/giardino pertinenziale. Nessun costo di iscrizione co […]
