Valutazione immobiliare indipendente, accurata e gratuita
Casa indipendente in vendita a Viguzzolo a 280.000 € (cod.650484b4)
Caasa non ha sufficienti informazioni per commentare la casa indipendente in vendita a Viguzzolo - 650484b4.
Analisi immobiliare
I dati in posseso di Caasa per quest'immobile sono insufficienti, inaffidabili o contraddittori per proporre un'analisi attendibile.
Mercato immobiliare a Viguzzolo
Per quanto riguarda più in generale il comune di Viguzzolo, sono presenti al momento più di trenta annunci per
case indipendenti in vendita (meno dell'1% dell'intera provincia) .
Per quanto riguarda la dinamica dei prezzi, negli ultimi 6 mesi i prezzi medi in tutto il comune per case indipendenti in vendita sono
in deciso aumento (+8,07%).
NOVITÀ Il risultato che vedi dipende dai dati che siamo riusciti ad estrarre dall'annuncio: ottieni una stima più accuranta di questo immobile, inserendo dati più precisi.
N.B. L'Opinione di Caasa® è un servizio sperimentale realizzato tramite tecniche di Intelligenza Artificiale, fornito senza alcuna garanzia di correttezza e completezza. Leggi il disclaimer o segnalaci un problema.
IMMAGINI
IN SINTESI
PROPOSTO DA:
COMI CASA S.A.S. DI CARANO SERGIO & C.
DESCRIZIONE
di nuova costruzione con posto auto con giardino con garage con cortile con termocondizionamento di nuova costruzione
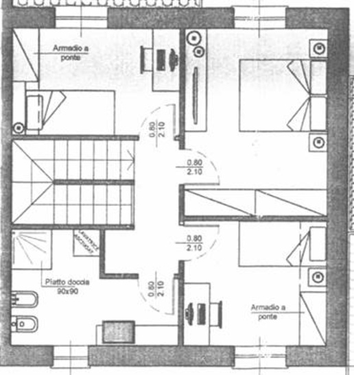
In vendita a VIGUZZOLO, proponiamo una splendida villa bifamiliare, ideale per famiglie in cerca di spazio e comfort. Questa proprietà si sviluppa su due livelli, con un totale di 150 mq, di cui 75 mq al piano terra e 75 mq al primo piano. L'immobile è composto da sei vani, tra cui tre camere da letto, due bagni e un ampio soggiorno doppio, perfetto per momenti di convivialità. La cucina a vista offre un ambiente moderno e accogliente, ideale per chi ama cucinare e socializzare. La villa è in condizioni di nuova costruzione, con riscaldamento autonomo e ingresso indipendente, garantendo così la massima privacy e autonomia. Al piano terra, oltre alla zona giorno, troverete un box/garage di 30 mq, perfetto per parcheggiare la vostra auto o come ulteriore spazio di stoccaggio. Un portico/patio di 18 mq offre un'area esterna dove poter trascorrere piacevoli momenti all'aperto. Il giardino/resede di ben 600 mq circonda la proprietà, offrendo ampi spazi verdi per bambini e animali domestici, oltre a possibilità di realizzare un'area barbecue o una piscina. La posizione, vicino al centro di VIGUZZOLO, assicura comodità e accesso a tutti i servizi necessari. Non perdere l'opportunità di visitare questa villa bifamiliare, un vero angolo di paradiso per chi cerca tranquillità e modernità. Contattaci per maggiori informazioni e per fissare un appuntamento! Classe Energetica: Non soggetto

