Valutazione immobiliare indipendente, accurata e gratuita
L'Opinione di Caasa® per l'appartamento in vendita a Valenza a 85.000 € (cod.65975736)
Secondo Caasa, per l'appartamento in vendita a Valenza, la richiesta di 85.000 € è significativamente svantaggiosa rispetto agli annunci simili.
Analisi immobiliare
L'appartamento, situato nella zona OMI D2, è proposto in vendita a
85.000 € per una
superficie commerciale di
80 m² e quindi ad un prezzo per metro quadrato pari a
1062 €/m²
.
Questo prezzo
è meno vantaggioso di quello stimato da Caasa per immobili in vendita simili per tipologia e caratteristiche, presenti nella stessa zona, che è compreso tra
806 €/m² e
914 €/m².
Data la posizione dell'appartamento sono stati utilizzati come raffronto i valori medi nelle zone limitrofe . Caasa non è riuscita però a determinare in modo affidabile la classe energetica, che non è stata quindi utilizzata per affinare la stima proposta. Per i motivi esposti l'intervallo dei valori possibili per l'offerta è relativamente ampio.
Mercato immobiliare a Valenza
Per quanto riguarda più in generale la città di Valenza, sono presenti al momento più di 300 annunci per
appartamenti in vendita (meno del 5% dell'intera provincia) .
Possiamo inoltre considerare che in tutta la città negli ultimi 6 mesi, i prezzi per appartamenti in vendita sono
sostanzialmente stabili (-0,47%).
NOVITÀ Il risultato che vedi dipende dai dati che siamo riusciti ad estrarre dall'annuncio: ottieni una stima più accuranta di questo immobile, inserendo dati più precisi.
N.B. L'Opinione di Caasa® è un servizio sperimentale realizzato tramite tecniche di Intelligenza Artificiale, fornito senza alcuna garanzia di correttezza e completezza. Leggi il disclaimer o segnalaci un problema.
IMMAGINI
IN SINTESI
DESCRIZIONE
con balcone
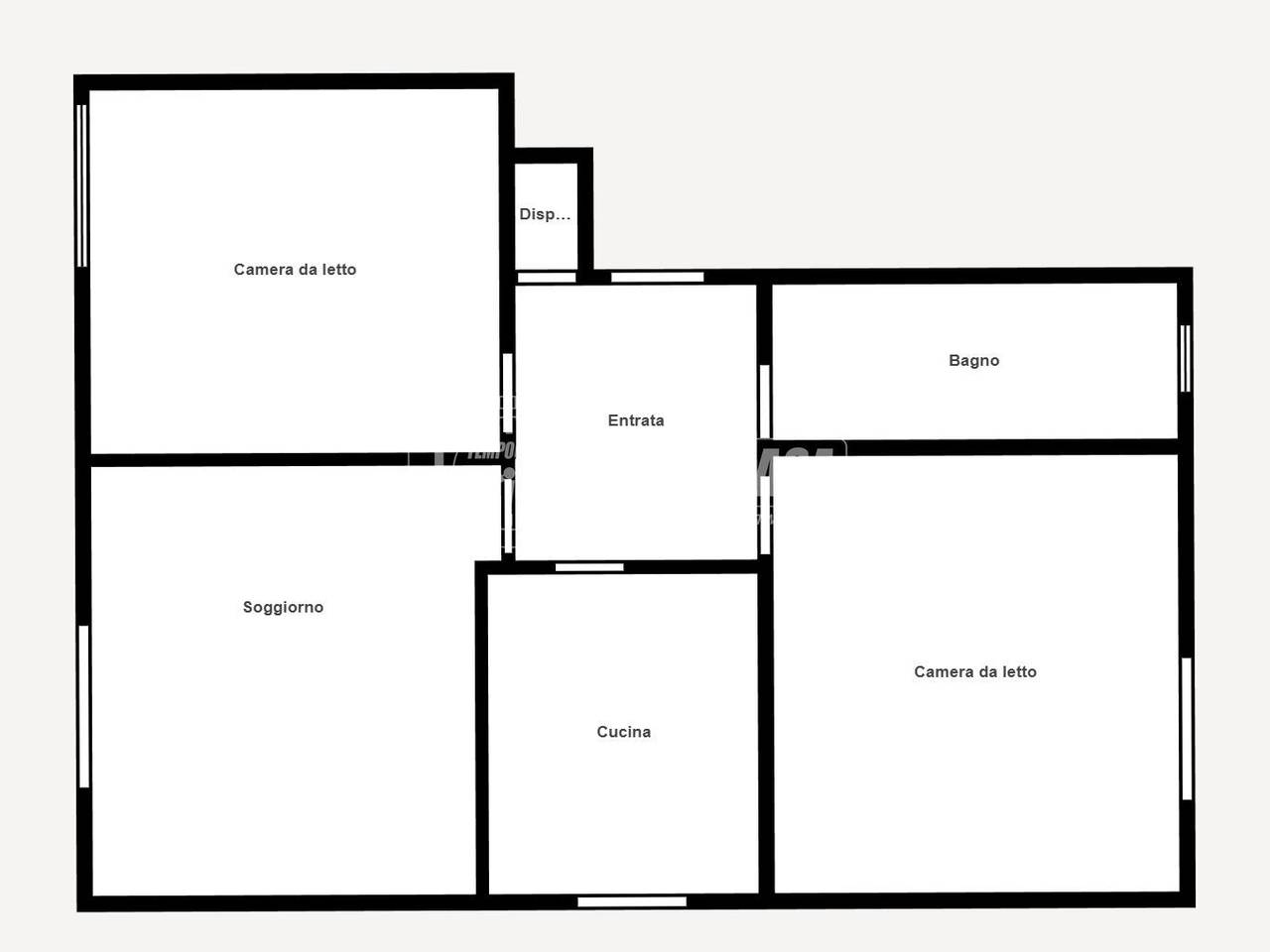
Rif: GJ01 - Ecco l'immobile che fa per te! Tempocasa Valenza propone un appartamento ben distribuito composto da soggiorno, cucina, due camere, bagno e dispensa, completato da balconi che donano luminosità e sfoghi esterni, una soluzione ideale per chi cerca ambienti comodi, funzionali e facilmente personalizzabili, perfetta per la vita quotidiana e per famiglie che desiderano spazi equilibrati e confortevoli. PERCHE' ACQUISTARE QUESTO IMMOBILE? 1. Per la disposizione interna pratica e versatile che valorizza ogni ambiente 2. Per la presenza di balconi che aumentano luce naturale e vivibilità 3. Per la comodità degli spazi, adatti a diverse esigenze abitative COSA ASPETTI? VIENI A VEDERLA! Contattaci per fissare un appuntamento e ricevere maggiori informazioni presso Tempocasa Valenza, Via Lega Lombarda, 8, 15048 Valenza AL


