Valutazione immobiliare indipendente, accurata e gratuita
Negozio in vendita a Valenza a 73.968 € (cod.657e5b2d)
Caasa non ha sufficienti informazioni per commentare il negozio in vendita a Valenza - 657e5b2d.
Analisi immobiliare
I dati in posseso di Caasa per quest'immobile sono insufficienti, inaffidabili o contraddittori per proporre un'analisi attendibile.
Mercato immobiliare a Valenza
Per quanto riguarda più in generale la città di Valenza, sono presenti al momento circa cento annunci per
negozi in vendita (meno del 10% dell'intera provincia) .
Vedi altre informazioni direttamente su
Mercato-Immobiliare.info
NOVITÀ Il risultato che vedi dipende dai dati che siamo riusciti ad estrarre dall'annuncio: ottieni una stima più accuranta di questo immobile, inserendo dati più precisi.
N.B. L'Opinione di Caasa® è un servizio sperimentale realizzato tramite tecniche di Intelligenza Artificiale, fornito senza alcuna garanzia di correttezza e completezza. Leggi il disclaimer o segnalaci un problema.
IMMAGINI
IN SINTESI
PROPOSTO DA:
Case all'Asta
DESCRIZIONE
di recente costruzione in asta giudiziaria di recente costruzione con cortile
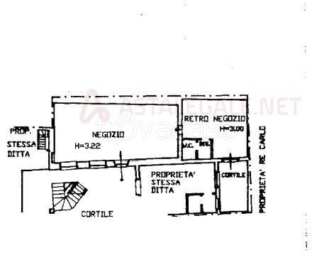
Locale commerciale di circa 65 mq situato al piano terra. Il negozio è adibito a centro estetico e si sviluppa in diversi ambienti con bagno e disimpegno. L'immobile fa parte di un complesso con due piani fuori terra e cortile interno. L'ingresso è a […]
