Valutazione immobiliare indipendente, accurata e gratuita
Casa indipendente in vendita a Frugarolo a 25.474 € (cod.657d56f7)
Caasa non ha sufficienti informazioni per commentare la casa indipendente in vendita a Frugarolo - 657d56f7.
Analisi immobiliare
I dati in posseso di Caasa per quest'immobile sono insufficienti, inaffidabili o contraddittori per proporre un'analisi attendibile.
Mercato immobiliare a Frugarolo
Per quanto riguarda più in generale il comune di Frugarolo, sono presenti al momento più di trenta annunci per
case indipendenti in vendita (meno dell'1% dell'intera provincia) .
La dinamica dei prezzi in tutto il comune mostra che negli ultimi 6 mesi, i prezzi per case indipendenti in vendita sono
in sostanziale aumento (+6,42%).
NOVITÀ Il risultato che vedi dipende dai dati che siamo riusciti ad estrarre dall'annuncio: ottieni una stima più accuranta di questo immobile, inserendo dati più precisi.
N.B. L'Opinione di Caasa® è un servizio sperimentale realizzato tramite tecniche di Intelligenza Artificiale, fornito senza alcuna garanzia di correttezza e completezza. Leggi il disclaimer o segnalaci un problema.
IMMAGINI
IN SINTESI
DESCRIZIONE
con posto auto con cantina con giardino con terrazza con balcone con termocondizionamento con riscaldamento autonomo in asta giudiziaria con angolo cottura
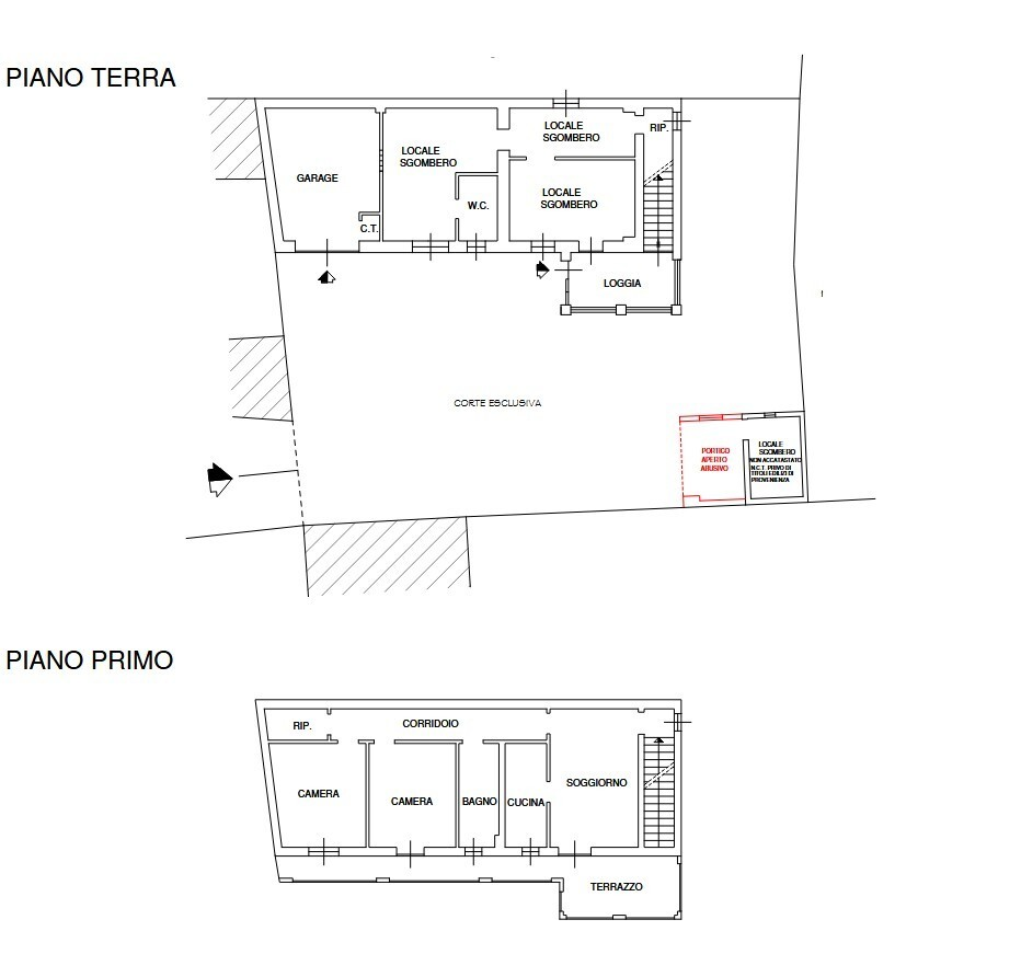
Fabbricato indipendente disposto su due piani fuori terra con sedime pertinenziale di circa mq 200. Il piano terra è composto da: loggia di ingresso, tre locali di sgombero, w.c., ripostiglio; il piano primo da: soggiorno, cucina, corridoio, bagno, ripostiglio, due camere, terrazzo. I pavimenti interni sono in piastrelle di ceramica, i serramenti interni in legno tamburato, i serramenti esterni in legno con persiane, il riscaldamento autonomo con caldaia a gas. - Il Prezzo visualizzato è la Base d'Asta in quanto l'immobile è oggetto di esecuzione immobiliare venduto tramite Asta Giudiziaria. - L'immobile aggiudicato, viene venduto libero e sgombro da persone cose ed ipoteche nello stato di fatto e di diritto in cui si trova. - Non rappresentiamo il Tribunale, ma lavoriamo nell'esclusivo interesse del potenziale acquirente per garantire un acquisto sicuro. - I consulenti di ASTE ITALIA ti assisteranno in tutte le attività dell'iter giudiziario dalla visita dell'immobile fino alla consegna chiavi. - Contatta il nostro Servizio Clienti , i nostri operatori sono a disposizione per chiarire i molteplici dubbi per partecipare alle ASTE







