Valutazione immobiliare indipendente, accurata e gratuita
Pentavano in vendita a Castelnuovo Scrivia a 14.036 € (cod.65583fb2)
Caasa non ha sufficienti informazioni per commentare il pentavano in vendita a Castelnuovo Scrivia - 65583fb2.
Analisi immobiliare
I dati in posseso di Caasa per quest'immobile sono insufficienti, inaffidabili o contraddittori per proporre un'analisi attendibile.
Mercato immobiliare a Castelnuovo Scrivia
Per quanto riguarda più in generale il comune di Castelnuovo Scrivia, sono presenti al momento più di dieci annunci per
pentavani in vendita (meno dell'1% dell'intera provincia) .
Vedi altre informazioni direttamente su
Mercato-Immobiliare.info
NOVITÀ Il risultato che vedi dipende dai dati che siamo riusciti ad estrarre dall'annuncio: ottieni una stima più accuranta di questo immobile, inserendo dati più precisi.
N.B. L'Opinione di Caasa® è un servizio sperimentale realizzato tramite tecniche di Intelligenza Artificiale, fornito senza alcuna garanzia di correttezza e completezza. Leggi il disclaimer o segnalaci un problema.
IMMAGINI
IN SINTESI
DESCRIZIONE
con posto auto con garage in asta giudiziaria con cortile con termocondizionamento con riscaldamento autonomo senza ascensore con angolo cottura
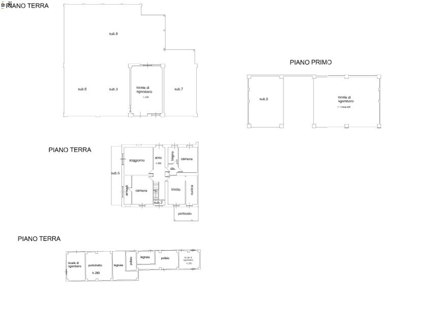
Abitazione di tipo economico, fabbricato ad uso residenziale con annesso box auto con accesso da cortile in comunione, posto al piano T in fabbricato di complessivi piani 2 con ingresso in comune composto da camere, cucina, bagno, corridoio, cabina armadio, portico, accessori e autorimessa - con terreno adiacente il fabbricato seminativo irriguo - Il Prezzo visualizzato è la Base d'Asta in quanto l'immobile è oggetto di esecuzione immobiliare venduto tramite Asta Giudiziaria. - L'immobile aggiudicato, viene venduto libero e sgombro da persone cose ed ipoteche nello stato di fatto e di diritto in cui si trova. - Non rappresentiamo il Tribunale, ma lavoriamo nell'esclusivo interesse del potenziale acquirente per garantire un acquisto sicuro. - I consulenti di ASTE ITALIA ti assisteranno in tutte le attività dell'iter giudiziario dalla visita dell'immobile fino alla consegna chiavi. - Contatta il nostro Servizio Clienti , i nostri operatori sono a disposizione per chiarire i molteplici dubbi per partecipare alle ASTE



