Valutazione immobiliare indipendente, accurata e gratuita
Casa semindipendente in vendita a Castelnuovo Bormida a 20.000 € (cod.6525b150)
Caasa non ha sufficienti informazioni per commentare la casa semindipendente a Castelnuovo Bormida - 6525b150.
Analisi immobiliare
I dati in posseso di Caasa per quest'immobile sono insufficienti, inaffidabili o contraddittori per proporre un'analisi attendibile.
Mercato immobiliare a Castelnuovo Bormida
Per quanto riguarda più in generale il comune di Castelnuovo Bormida, sono presenti al momento più di trenta annunci per
case semindipendenti in vendita (meno dell'1% dell'intera provincia) .
Per quanto riguarda la dinamica dei prezzi, negli ultimi 6 mesi i prezzi medi in tutto il comune per case semindipendenti in vendita sono
in sostanziale aumento (+6,81%).
NOVITÀ Il risultato che vedi dipende dai dati che siamo riusciti ad estrarre dall'annuncio: ottieni una stima più accuranta di questo immobile, inserendo dati più precisi.
N.B. L'Opinione di Caasa® è un servizio sperimentale realizzato tramite tecniche di Intelligenza Artificiale, fornito senza alcuna garanzia di correttezza e completezza. Leggi il disclaimer o segnalaci un problema.
IMMAGINI
IN SINTESI
PROPOSTO DA:
Affiliato tecnocasa: studio monteverde s.a.s.
Via monteverde 26, Acqui Terme (AL)
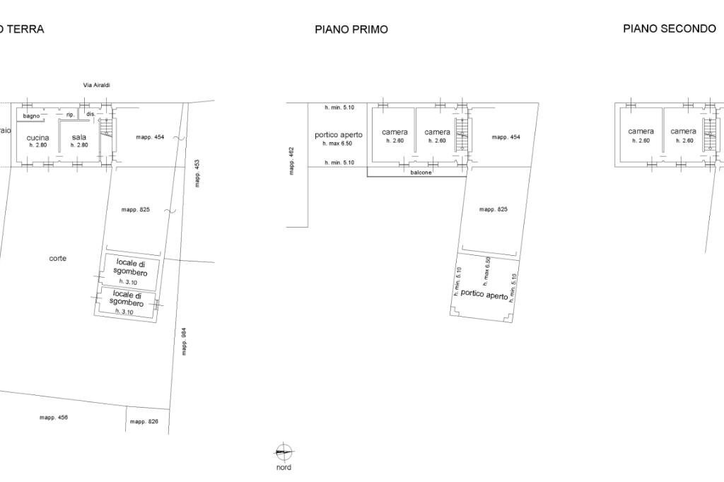
DESCRIZIONE
con giardino con cantina con terrazza con balcone
Castelnuovo Bormida. Proponiamo in vendita casa semindipente con giardino privato. La casa è disposta su tre livelli, al piano terra troviamo cucina, salotto, bagno, ripostiglio; primo piano troviamo due camere da letto con balcone e al terzo piano altre due camere. Completa la proprietà un locale di sgombero su due livelli



