Valutazione immobiliare indipendente, accurata e gratuita
Appartamento in vendita a Casale Monferrato a 91.050 € (cod.658ac5da)
Caasa non ha sufficienti informazioni per commentare l'appartamento in vendita a Casale Monferrato - 658ac5da.
Analisi immobiliare
I dati in posseso di Caasa per quest'immobile sono insufficienti, inaffidabili o contraddittori per proporre un'analisi attendibile.
Mercato immobiliare a Casale Monferrato
Per quanto riguarda più in generale la città di Casale Monferrato, sono presenti al momento oltre 500 annunci per
appartamenti in vendita (meno del 10% dell'intera provincia)
e il maggior numero di annunci per questa tipologia sono relativi alla zona di San Germano.
Possiamo inoltre considerare che in tutta la città negli ultimi 6 mesi, i prezzi per appartamenti in vendita sono
sostanzialmente stabili (+0,92%).
NOVITÀ Il risultato che vedi dipende dai dati che siamo riusciti ad estrarre dall'annuncio: ottieni una stima più accuranta di questo immobile, inserendo dati più precisi.
N.B. L'Opinione di Caasa® è un servizio sperimentale realizzato tramite tecniche di Intelligenza Artificiale, fornito senza alcuna garanzia di correttezza e completezza. Leggi il disclaimer o segnalaci un problema.
IMMAGINI
IN SINTESI
PROPOSTO DA:
Case all'Asta
DESCRIZIONE
di nuova costruzione con cantina con posto auto con terrazza in asta giudiziaria di nuova costruzione
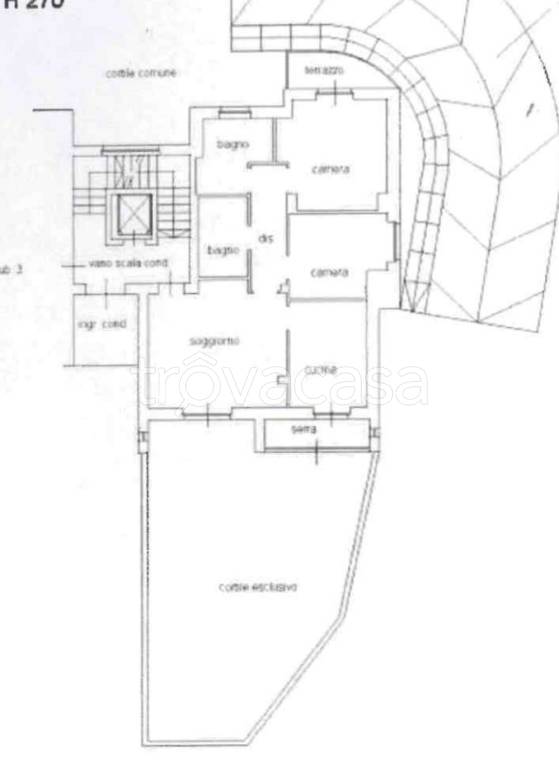
Appartamento al piano terra con corte esclusiva e terrazza. Soggiorno, cucina e disimpegno. Due camere e due bagni. Cantina e posto auto al piano interrato. Posto auto esterno e serra. Nessun costo di iscrizione con Case all'Asta - Acquista senza Ris […]
