Valutazione immobiliare indipendente, accurata e gratuita
Appartamento in vendita ad Arquata Scrivia a 37.575 € (cod.658a7709)
Caasa non ha sufficienti informazioni per commentare l'appartamento in vendita ad Arquata Scrivia - 658a7709.
Analisi immobiliare
I dati in posseso di Caasa per quest'immobile sono insufficienti, inaffidabili o contraddittori per proporre un'analisi attendibile.
Mercato immobiliare ad Arquata Scrivia
Per quanto riguarda più in generale il comune di Arquata Scrivia, sono presenti al momento più di 150 annunci per
appartamenti in vendita (meno del 5% dell'intera provincia)
e il maggior numero di annunci per questa tipologia sono relativi alla zona di Varinella.
Relativamente alla dinamica dei prezzi, possiamo dire che negli ultimi 6 mesi i prezzi medi in tutto il comune per appartamenti in vendita sono
in leggera diminuzione (-2,95%).
NOVITÀ Il risultato che vedi dipende dai dati che siamo riusciti ad estrarre dall'annuncio: ottieni una stima più accuranta di questo immobile, inserendo dati più precisi.
N.B. L'Opinione di Caasa® è un servizio sperimentale realizzato tramite tecniche di Intelligenza Artificiale, fornito senza alcuna garanzia di correttezza e completezza. Leggi il disclaimer o segnalaci un problema.
IMMAGINI
IN SINTESI
PROPOSTO DA:
Bc Consulting
DESCRIZIONE
con cantina con posto auto con terrazza con balcone in asta giudiziaria
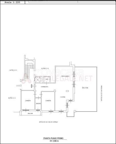
piena proprietà di unità immobiliare a destinazione residenziale, posta al 1°piano di un fabbricato plurifamiliare, con accesso dal vano scala condominiale. l’alloggio risulta composto da un corridoio di ingresso, un piccolo ripostiglio, un ampio sog […]
