Valutazione immobiliare indipendente, accurata e gratuita
L'Opinione di Caasa® per l'appartamento in vendita ad Alessandria in zona Il Cristo a 119.000 € (cod.6551cd7b)
Secondo Caasa, per l'appartamento ad Alessandria in zona Il Cristo, la richiesta di 119.000 € è leggermente svantaggiosa rispetto agli annunci simili.
Analisi immobiliare
L'appartamento è proposto in vendita a
119.000 € per una
superficie commerciale di
110 m² e quindi ad un prezzo per metro quadrato pari a
1081 €/m²
.
Tale valore
è un po' più alto di quello stimato da Caasa per immobili in vendita simili per tipologia, caratteristiche, classe energetica e zona, che è compreso tra
960 €/m² e
1.059 €/m².
Vista la posizione dell'appartamento si sono utilizzati in raffronto i valori medi nelle zone limitrofe e particolarmente le richieste in vendita per appartamenti in zona Il Cristo (da 650 €/m² a 1.240 €/m²) e per uffici in zona Il Cristo (da 525 €/m² a 1.050 €/m²). Ad affinare la stima ha contribuito anche la classe energetica (E) oltre alla conoscenza dello stato dell'immobile (di recente ristrutturazione che però è in parte contraddittorio con la classe energetica) e di alcune caratteristiche significative come la disponibilità di una cantina. In virtù di queste considerazioni i valori accettabili per l'offerta costituiscono un intervallo relativamente limitato.
Mercato immobiliare ad Alessandria
Per quanto riguarda più in generale la città di Alessandria, sono presenti al momento ben circa 2.000 annunci per
appartamenti in vendita (meno di un terzo dell'intera provincia)
e il maggior numero di annunci per questa tipologia sono relativi proprio alla zona di Il Cristo.
La richiesta media nella zona dove sorge l'appartamento (Il Cristo) è pari a
950 €/m², molto vicina ai valori della zona Centro Città che sono i più alti della città .
La dinamica dei prezzi in tutta la città mostra che negli ultimi 6 mesi, i prezzi per appartamenti in vendita sono
sostanzialmente stabili (+0,07%).
Invece i prezzi per la zona di sono in calo.
NOVITÀ Il risultato che vedi dipende dai dati che siamo riusciti ad estrarre dall'annuncio: ottieni una stima più accuranta di questo immobile, inserendo dati più precisi.
N.B. L'Opinione di Caasa® è un servizio sperimentale realizzato tramite tecniche di Intelligenza Artificiale, fornito senza alcuna garanzia di correttezza e completezza. Leggi il disclaimer o segnalaci un problema.
IMMAGINI
IN SINTESI
PROPOSTO DA:
GIERRE IMMOBILIARE S.A.S.
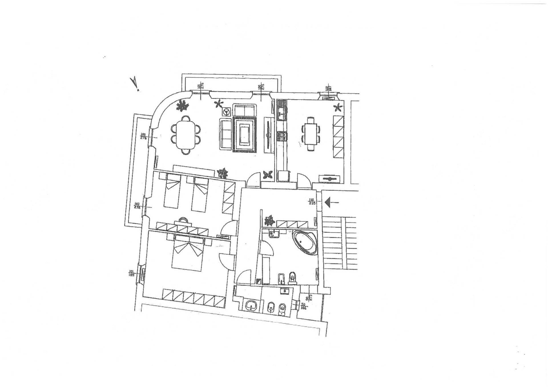
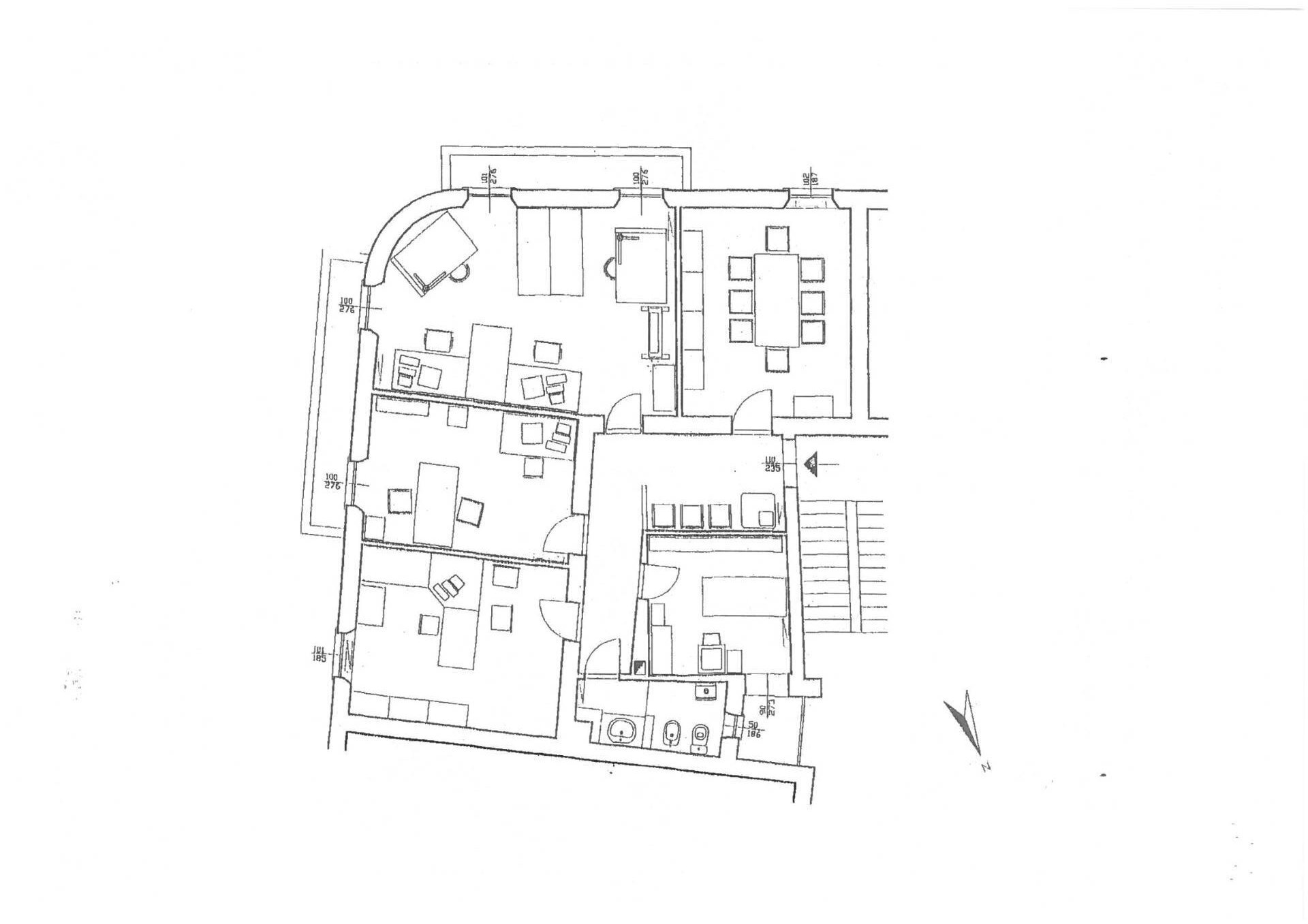
DESCRIZIONE
di recente ristrutturazione con cantina con balcone di recente ristrutturazione senza ascensore
ZONA PIAZZA GENOVA: a 100 metri da Piazza Genova proponiamo alloggio comodo a tutti i servizi RISTRUTTURATO con AUTONOMO sito al 1° piano senza ascensore composto da ampio ingresso, salone, cucina, 2 camere da letto matrimoniali, 2 bagni, 3 balconi, cantina; ARIA CONDIZIONATA; attualmente utilizzato uso ufficio; . 119mila Rif. C34 Classe E - 167 kWh/m2 Per informazioni e visite presso GIERRE IMMOBILIARE CRISTO 0131218521 - 3474254862





