N.B. Tutti le informazioni immobiliari sono fornite senza alcuna garanzia. Leggi il disclaimer.
Case semindipendenti in vendita a Pesaro in zona Centro Città
MODIFICA QUESTA RICERCAPesaro - ZONA PORTO VENDESI APPARTAMENTO PREMIUM
APPARTAMENTO RISTRUTTURATO A 100 METRI DAL MARE – ZONA PORTO, PESARO In posizione esclusiva, nel cuore della zona Porto di Pesaro e a soli 100 metri dalla spiaggia, proponiamo luminosissimo appartamento al secondo e ultimo piano di circa 80 […]
LEGGI ANCORA
- prezzo medio appartamento in zona OMI B3 : 3426 €/m²
- prezzo medio casa indipendente in zona OMI B3 : 3648 €/m²
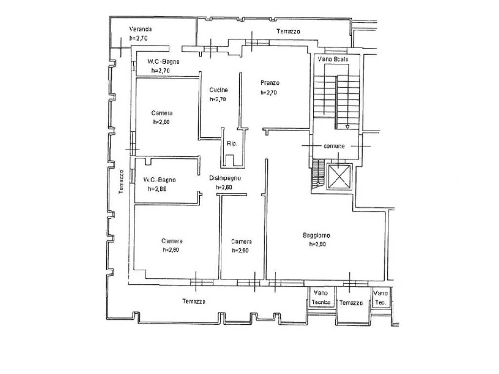
Vendita Casa singola, in zona SORIA, PESARO
casa semindipendente Soria Via Gaspare Fedeli 615.000 €
In vendita a Pesaro, nella tranquilla zona di Soria, proponiamo un'elegante casa singola di 140 mq al piano rialzato e 90 mq al piano terra, ideale per chi cerca spazio e comfort. L'immobile, disposto su due livelli, offre un'ottima distribuzione degli spazi . La cucina è abitabile e il soggiorno doppio […]
LEGGI ANCORA
- prezzo medio casa indipendente in zona OMI R1 : 1916 €/m²
- prezzo medio casa semindipendente in zona OMI R1 : 1681 €/m²
Vendesi appartamento a Pesaro viale Monfalcone, 47, Porto
casa semindipendente Porto Viale Monfalcone 395.000 €
Zona mare, in ottimo contesto residenziale nei pressi del Parco Molaroni, su villino bifamiliare proponiamo appartamento al piano terra con ingresso indipendente e giardinetto esclusivo. La residenza ha una superficie interna di circa 105 mq. ed è accessibile dallo scoperto privato antistante il fabbrica […]
LEGGI ANCORA
- prezzo medio appartamento in zona OMI B3 : 3426 €/m²
- prezzo medio casa indipendente in zona OMI B3 : 3648 €/m²
IMMOBILE INDIPENDENTE CENTRO MARE PESARO NO CONDOMINIO
casa semindipendente Centro Città
Da Privato. orto: vendesi ampia casa abbinata, con ingresso indipendente, libera su tre lati in posizione strategica con laboratorio/cantina al piano terra così composta: ingresso al piano primo, ampio soggiorno, cucina abitabile, due camere matrimoniali, bagno, veranda e terrazzo abitabile. Collegata co […]
LEGGI ANCORA
IMMOBILE INDIPENDENTE CENTRO MARE PESARO NO CONDOMINIO
casa semindipendente Centro Città
Da Privato. orto: vendesi ampia casa abbinata, con ingresso indipendente, libera su tre lati in posizione strategica con laboratorio/cantina al piano terra così composta: ingresso al piano primo, ampio soggiorno, cucina abitabile, due camere matrimoniali, bagno, veranda e terrazzo abitabile. Collegata co […]
LEGGI ANCORA
Vendita casa indipendente Via Monti Pesaro (PU
casa semindipendente Centro Città Via Vincenzo Monti 680.000 €
ZONA CARDUCCI , elegante ed esclusiva casa a schiera con ampio scoperto esclusivo e parcheggio privato, ristrutturata nel 2016 (struttura compresa) con ottimo gusto e materiali di pregio. La residenza si sviluppa su tre livelli per una superficie commerciale di circa 215 mq. ed interna di circa 185 mq., […]
LEGGI ANCORA
- prezzo medio casa indipendente in zona OMI B2 : 2750 €/m²
- prezzo medio casa semindipendente in zona OMI B2 : 2702 €/m²
Vendesi appartamento a Pesaro viale Monfalcone, 47, Porto PREMIUM
Zona mare, in ottimo contesto residenziale nei pressi del Parco Molaroni, su villino bifamiliare proponiamo appartamento al piano terra con ingresso indipendente e giardinetto esclusivo. La residenza ha una superficie interna di circa 105 m […]
LEGGI ANCORA
- prezzo medio appartamento in zona OMI B3 : 3426 €/m²
- prezzo medio casa indipendente in zona OMI B3 : 3648 €/m²
Vendita Casa semindipendente Pesaro
casa semindipendente Centro Città Via Porta Rimini 520.000 €
CENTRO: Casa a schiera con ingresso indipendente in via secondaria. Vicino a tutti i principali servizi, a pochi passi dal mare e dal centro storico comodamente raggiungibili sia a piedi che in bicicletta; proponiamo casa a schiera con scoperto esclusivo e ampio terrazzo. Con una superficie complessiva d […]
LEGGI ANCORA
- prezzo medio casa indipendente in zona OMI B2 : 2750 €/m²
- prezzo medio casa semindipendente in zona OMI B2 : 2702 €/m²
Appartamento in vendita a Pesaro(PU
casa semindipendente Pantano 340.000 €
PANTANO: vendesi porzione di bifamiliare al primo piano con ingresso indipendente composta da ampio ingresso, due spaziosissime camere da letto ( con possibilità di ricavarne una terza), sala, cucino
LEGGI ANCORA
- prezzo medio appartamento in zona OMI C1 : 2585 €/m²
- prezzo medio casa indipendente in zona OMI C1 : 2378 €/m²
esavano in vendita a Pesaro in zona Mare
casa semindipendente Mare 550.000 €
Pesaro Soria – Prestigiosa residenza indipendente con giardino a pochi passi dal mare Nel cuore di una delle aree residenziali più esclusive e ricercate di Pesaro, a breve distanza dalla costa, proponiamo in vendita un’elegante casa singola di assoluto pregio, impreziosita da un raffinato giardino priva […]
LEGGI ANCORA
- prezzo medio casa indipendente in zona OMI C1 : 2378 €/m²
- prezzo medio casa semindipendente in zona OMI C1 : 2414 €/m²
casa in vendita a Pesaro
casa semindipendente Centro Città 698.000 €
Nel cuore pulsante di Pesaro, in una posizione invidiabile tra il Centro Storico, il Porto e il Mare, proponiamo in vendita una casa a schiera indipendente di circa 227 mq, unica nel suo genere. L?immobile è stato oggetto di una ristrutturazione totale e profonda, con un focus estremo sulla sicurezza: a […]
LEGGI ANCORA
- prezzo medio casa indipendente in zona OMI B1 : 2548 €/m²
- prezzo medio casa semindipendente in zona OMI B1 : 2506 €/m²
appartamento in vendita a Pesaro in zona Mare
casa semindipendente Mare 242.000 €
In vendita: Appartamento 4 vani al secondo piano Proponiamo un luminoso appartamento situato al secondo piano di una palazzina di fine anni ’90, recentemente ristrutturata e con facciata come nuova. L’immobile, di moderna concezione, è ideale sia come abitazione principale che come casa al mare: si trov […]
LEGGI ANCORA
- prezzo medio appartamento in zona OMI B2 : 2750 €/m²
- prezzo medio quadrivano in zona OMI B2 : 2441 €/m²
Vendita casa indipendente Via Monti Pesaro (PU PREMIUM
ZONA CARDUCCI , elegante ed esclusiva casa a schiera con ampio scoperto esclusivo e parcheggio privato, ristrutturata nel 2016 (struttura compresa) con ottimo gusto e materiali di pregio. La residenza si sviluppa su tre livelli per una supe […]
LEGGI ANCORA
- prezzo medio casa indipendente in zona OMI B2 : 2750 €/m²
- prezzo medio casa semindipendente in zona OMI B2 : 2702 €/m²
Vendesi bilocale a Pesaro piazza Lazzarini, Centro Storico
casa semindipendente Centro Città Piazza Giovanni Lazzarini 129.000 €
PESARO CENTRO: Proponiamo in vendita appartamento di 44 mq con ingresso indipendente, situato al piano terra nelle vicinanze di Piazza Lazzarini, in zona ZTL. L’immobile, costruito nel 2004 e in buono stato manutentivo, è attualmente locato e sarà disponibile a partire dal 31/05/2027. L’abitazione è comp […]
LEGGI ANCORA
- prezzo medio appartamento in zona OMI B1 : 2885 €/m²
- prezzo medio bivano in zona OMI B1 : 3123 €/m²
villa in vendita a Pesaro in zona Mare
casa semindipendente Mare Viale 24 Maggio 460.000 €
MARINA DI RAVENNA- VIA 24 MAGGIO A pochi passi dal mare e immersa nella tranquillità di Marina di Ravenna, proponiamo villa indipendente con ampio giardino privato, ideale per famiglie numerose o come soluzione bifamiliare
LEGGI ANCORA
- prezzo medio casa indipendente in zona OMI B2 : 2750 €/m²
- prezzo medio villa in zona OMI B2 : 2837 €/m²
Appartamento in vendita a Pesaro, Centro Storico
casa semindipendente Centro Città Piazza del Popolo 700.000 €
PESARO - ZONA CENTRALISSIMA: Nel cuore del centro storico, a pochi passi da Piazza del Popolo e dai punti strategici della città, proponiamo in vendita una soluzione abitativa di prestigio, unica nel suo genere, finemente ed elegantemente ristrutturata. Trattasi di una porzione di palazzina a schiera, co […]
LEGGI ANCORA
- prezzo medio appartamento in zona OMI B1 : 2885 €/m²
- prezzo medio casa semindipendente in zona OMI B1 : 2506 €/m²
Vendita casa indipendente Via Fellini Pesaro (PU
casa semindipendente Centro Città 490.000 €
Zona Celletta piacevole e recente casa a schiera libera, con scoperto esclusivo sul fronte e sul retro e garage autonomo attualmente affitata. La residenza si sviluppa su quattro livelli per una superficie complessiva interna pari a circa 158 mq., con accesso alla proprietà tramite un giardinetto antist […]
LEGGI ANCORA
- prezzo medio casa indipendente in zona OMI D7 : 2164 €/m²
- prezzo medio casa semindipendente in zona OMI D7 : 2171 €/m²
Vendesi quadrilocale a Pesaro via gozze, Soria
casa semindipendente Soria Via Marcantonio Gozze 240.000 €
Crea la tua casa su misura a Soria: Indipendenza e spazi esterni! In una delle zone più servite e amate di Pesaro, nel quartiere Soria, proponiamo in vendita un luminoso appartamento in trifamiliare con ingresso indipendente. Se sogni una casa da personalizzare secondo i tuoi gusti, questa è l'occasione […]
LEGGI ANCORA
- prezzo medio appartamento in zona OMI C1 : 2585 €/m²
- prezzo medio quadrivano in zona OMI C1 : 2363 €/m²
Pesaro - ZONA PORTO VENDESI APPARTAMENTO PREMIUM
APPARTAMENTO RISTRUTTURATO A 100 METRI DAL MARE – ZONA PORTO, PESARO In posizione esclusiva, nel cuore della zona Porto di Pesaro e a soli 100 metri dalla spiaggia, proponiamo luminosissimo appartamento al secondo e ultimo piano di circa 80 […]
LEGGI ANCORA
- prezzo medio appartamento in zona OMI B3 : 3426 €/m²
- prezzo medio casa indipendente in zona OMI B3 : 3648 €/m²
Appartamento in vendita a Pesaro viale Trento, Mare
casa semindipendente Mare Viale Trento 870.000 €
ZONA MARE - VENDESI - su palazzina signorile , ottimo appartamento di ampia metratura tutto unico livello. L' appartamento dotato di ottime rifiniture si presenta luminoso , arioso , inserito iin prestigioso contesto abitativo , residenziale e tranquillo. Composto da ampio ingresso , che trasmette da sub […]
LEGGI ANCORA
- prezzo medio appartamento in zona OMI B3 : 3426 €/m²
- prezzo medio casa indipendente in zona OMI B3 : 3648 €/m²
appartamento in vendita a Pesaro in zona Soria
casa semindipendente Soria 240.000 €
Crea la tua casa su misura a Soria: Indipendenza e spazi esterni! In una delle zone più servite e amate di Pesaro, nel quartiere Soria, proponiamo in vendita un luminoso appartamento in trifamiliare con ingresso indipendente. Se sogni una casa da personalizzare secondo i tuoi gusti, questa è l'occasione […]
LEGGI ANCORA
- prezzo medio appartamento in zona OMI C1 : 2585 €/m²
- prezzo medio casa semindipendente in zona OMI C1 : 2414 €/m²
Casa indipendente in vendita a Pesaro
casa semindipendente Centro Città 870.000 €
Rif. 1450 - VILLA CECCOLINI (vicinanze) – In posizione dominante, tranquilla e riservata, ma al tempo stesso a pochi passi dal centro del paese e da tutti i principali servizi, a pochi chilometri dalla città di Pesaro e dal mare, proponiamo in vendita villa bifamiliare in ottimo stato di manutenzione, co […]
LEGGI ANCORA
- prezzo medio casa indipendente in zona OMI R1 : 1916 €/m²
- prezzo medio casa semindipendente in zona OMI R1 : 1681 €/m²
Non perdere gli altri 219 annunci!
















