N.B. Tutti le informazioni immobiliari sono fornite senza alcuna garanzia. Leggi il disclaimer.
Appartamenti o case indipendenti o casali o intera palazzina o trivani o villette a schiera in asta giudiziaria in vendita a Montemaggiore Belsito
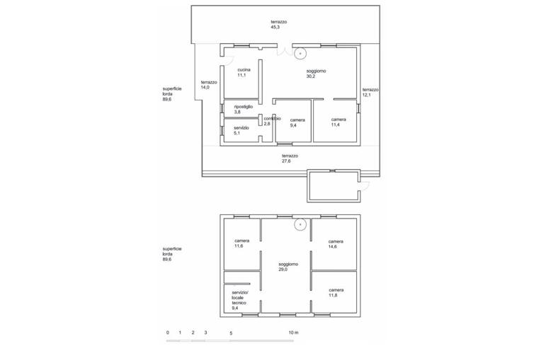
MODIFICA QUESTA RICERCAVilla - Montemaggiore Belsito
casa indipendente 80.000 €
Da Privato. Villa rustica con mansarda abitabile (tot. mq 190) ideale per soggiorno stagionale, discrete condizioni, in zona collinare a destinazione agricola. Collocazione amena e salubre e notevole dal punto di vista panoramico. Terreno (mq 5860) con alberi di ulivo, di pino, di fico, di gelsi, piante […]
LEGGI ANCORA
appartamento in vendita a Montemaggiore Belsito
appartamento 60.000 €
La casa è stata rinnovata nel 2010 tutta di sana pianta sia interna che esterna, con l'impianto di energia elettrica a Norme CEI. Impianto di riscaldamento di termosifoni su tutti i piani, con predisposizione di caldaia esterna. Il tetto è stato rifatto di sana pianta con travi nuovi. La casa è situata a […]
LEGGI ANCORA
- prezzo medio appartamento a Montemaggiore Belsito : 411 €/m²
Casa di Paese
casa indipendente 10.000 €
Da Privato. L ' immobile , da ristrutturare , si trova nel ridente paesino di Montemaggiore Belsito in provincia di Palermo . Si dispone su tre livelli e consta di cinque vani , oltre cucina e due bagni . Gli spazi esterni : un balconcino che si affaccia su corso Re Galantuomo e un terrazzino che fa ango […]
LEGGI ANCORA
appartamento in vendita a Montemaggiore Belsito
appartamento 50.000 €
Si propone la vendita di due unità immobiliari situate al primo e al secondo piano di un edificio di recente costruzione, ubicato tra via F. Teresi e via F. Arciprete Militello. L’edificio dispone di un doppio accesso con impianto citofonico su entrambe le vie. I prospetti, il corpo scala, i due ingres […]
LEGGI ANCORA
- prezzo medio appartamento a Montemaggiore Belsito : 411 €/m²
Palazzo / Stabile in vendita a Montemaggiore Belsito(PA
casale in vendita a Montemaggiore Belsito
appartamento 45.000 €
Si propone la vendita di un’unità immobiliare allo stato rustico situata al piano terra di un edificio di recente costruzione, ubicato tra via F. Teresi e via F. Arciprete Militello. L’edificio dispone di un doppio accesso con impianto citofonico su entrambe le vie. I prospetti, il corpo scala, i due i […]
LEGGI ANCORA
- prezzo medio appartamento a Montemaggiore Belsito : 411 €/m²
appartamento in vendita a Montemaggiore Belsito
appartamento 45.000 €
Si propone in vendita a Montemaggiore Belsito un'abitazione indipendente totalmente ristrutturata, climatizzata e arredata. L'immobile dispone di due ingressi, composto da piano terra più altri tre piani, quattro locali, due bagni con doccia e terrazzino. Condizioni pari al nuovo
LEGGI ANCORA
- prezzo medio appartamento a Montemaggiore Belsito : 411 €/m²
appartamento in vendita a Montemaggiore Belsito
appartamento 45.000 €
Si propone in vendita a Montemaggiore Belsito un'abitazione indipendente totalmente ristrutturata, climatizzata e arredata. L'immobile dispone di due ingressi, composto da piano terra più altri tre piani, quattro locali, due bagni con doccia e terrazzino. Condizioni pari al nuovo
LEGGI ANCORA
- prezzo medio appartamento a Montemaggiore Belsito : 411 €/m²
esavano in vendita a Montemaggiore Belsito
appartamento 45.000 €
Appartamento 145 mq circa, 3 piano e mansarda con terrazzo annesso. Nell' immobile e' presente il vano ascensore. Gli immobili si possono vendere anche separatamente. Prezzo interessante
LEGGI ANCORA
- prezzo medio appartamento a Montemaggiore Belsito : 411 €/m²
trivano in vendita a Montemaggiore Belsito
appartamento 65.000 €
RIF. 371011 - La vendita proposta riguarda un appartamento facente parte di un edificio sito in Montemaggiore Belsito tra la via Arciprete Militello e Piazza Comitato. L'edificio ingresso su via Arciprete Militello, con impianto citofonico I prospetti, il corpo scala, e l’ingresso sono completi in tutte […]
LEGGI ANCORA
- prezzo medio appartamento a Montemaggiore Belsito : 411 €/m²
Casa indipendente in vendita a Montemaggiore Belsito via Silvio Pellico, 35
casa indipendente 40.000 €
Chiama ora: 091 7482828 - Sicilia, Palermo, Montemaggiore Belsito - Riferimento: VRC18155 Proponiamo in vendita spaziosa Casa Indipendente di 189 mq, situata nel cuore del centro abitato. L’immobile si sviluppa su quattro livelli (terra, primo, secondo e terzo piano) e offre ambienti luminosi grazie alla […]
LEGGI ANCORA
Vendesi stabile/palazzo a Montemaggiore Belsito via Sant'Isidoro
appartamento 27.000 €
IL METROQUADRO IMMOBILIARE propone a Montemaggiore Belsito(PA)i n via Sant'Isodoro, palazzina indipendente su tre livelli . piano terra troviamo ingresso su camera , cucina ,bagno. Il primo piano accessibile tramite la scala interna è composto da: camera , ripostiglio,balcone . secondo piano si accede Tr […]
LEGGI ANCORA
- prezzo medio appartamento a Montemaggiore Belsito : 411 €/m²
appartamento in vendita a Montemaggiore Belsito
appartamento 60.000 €
La casa è stata rinnovata nel 2010 tutta di sana pianta sia interna che esterna, con l'impianto di energia elettrica a Norme CEI. Impianto di riscaldamento di termosifoni su tutti i piani, con predisposizione di caldaia esterna. Il tetto è stato rifatto di sana pianta con travi nuovi. La casa è situata a […]
LEGGI ANCORA
- prezzo medio appartamento a Montemaggiore Belsito : 411 €/m²
intera palazzina in vendita a Montemaggiore Belsito
intera palazzina 10.000 €
Proprietà indivisa, originariamente di 4600m, quella messa in vendita, di circa 1000 m (6/24)è in possesso della mia famiglia da più di un secolo e mi è stata trasmessa da testamento e acquisto. Vendendo la mia quota cedo la parte realmente in mio possesso e i diritti di edificabilità che l'intera propri […]
LEGGI ANCORA
casa semindipendente in vendita a Montemaggiore Belsito
casa indipendente 79.000 €
Escape to the serene landscapes of Sicily with this spacious and luminous townhouse in the picturesque village of Montemaggiore Belsito. Situated 500 meters above sea level, just a 30-minute drive from the stunning Costa d’Oro between Termini Imerese and Cefalù, this property offers a unique opportunity […]
LEGGI ANCORA
Stabile/palazzo in vendita a Montemaggiore Belsito
appartamento 36.000 €
Via Palermo,, 90020 Montemaggiore Belsito PA, Italia, Montemaggiore Belsito (Palermo) - LOTTO UNO Unità 3 in perizia: Diritto di piena ed intera proprietà di immobile sito in Montemaggiore Belsito PA, Via Palermo n. 1 e 3. - VUOI ACQUISTARE QUESTO IMMOBILE ALL'ASTA? PRENOTA ORA LA TUA CONSULENZA GRATUITA […]
LEGGI ANCORA
- prezzo medio appartamento a Montemaggiore Belsito : 411 €/m²
Abitazione di tipo rurale di 94 mq in vendita a Montemaggiore Belsito - Rif. 4530257
appartamento
ASTA GIUDIZIARIA per informazioni e visionare i documenti: GRUPPO EDICOM SPA - AC AuctionConsulting.it. - Cod. Inserzione: 4530257 da inserire sul portale www.asteannunci.it o contattaci al numero 041 2031704 TRIBUNALE DI TERMINI IMERESE Offerta minima Euro 6.255,60 Prezzo: Euro 8.340,81. Data asta: 23/0 […]
LEGGI ANCORA
Trilocale in vendita a Montemaggiore Belsito via Palermo
appartamento 36.000 €
OTTIMA OCCASIONE - ASTA IMMOBILIARE LOTTO UNO (Unità 3 in perizia): Diritto di piena ed intera proprietà di immobile sito in Montemaggiore Belsito (PA), Via Palermo n. 1 e 3. - Via Palermo ... GLI AVVOCATI SPECIALIZZATI IN ASTE IMMOBILIARI DI SIMPLEX DOMUS GARANTISCONO UN ACQUISTO FACILE, SICURO ED ECONO […]
LEGGI ANCORA
- prezzo medio appartamento a Montemaggiore Belsito : 411 €/m²
Non perdere gli altri 3 annunci!





