N.B. Tutti le informazioni immobiliari sono fornite senza alcuna garanzia. Leggi il disclaimer.
Terreni agricoli o terreni edificabili in vendita a Curtarolo
MODIFICA QUESTA RICERCAVendesi terreno agricolo a Curtarolo via Monte Nero, Santa Maria Di Non PREMIUM
Terreno Edificabile con giardino a Curtarolo
Proposto da:
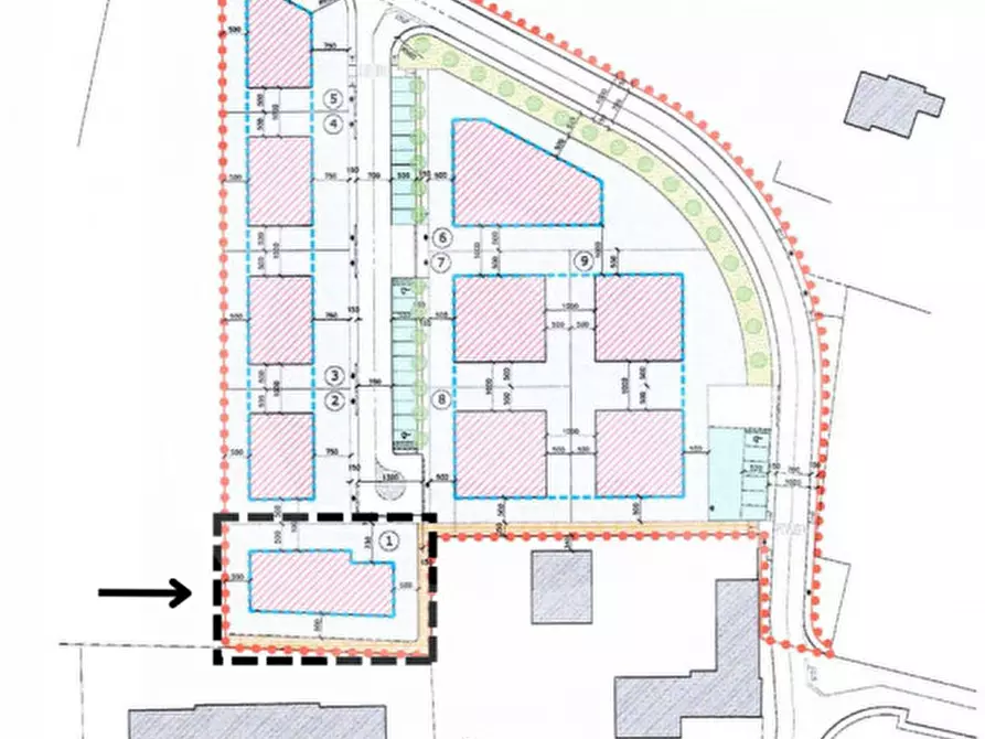
terreno edificabile Santa Maria di Non 500.000 €
Terreno Edificabile nella frazione di Santa Maria Di Non a Curtarolo. Progetto approvato per edificio di 10 appartamenti. - SC9546876
LEGGI ANCORA
capannone in vendita a Curtarolo
Immobile in vendita a Curtarolo(PD
Vendesi terreno agricolo a Curtarolo via Monte Nero, Santa Maria Di Non
terreno agricolo Santa Maria di Non 55.000 €
OTTIMA OPPORTUNITA'...VENDESI IN PROSSIMITA' DEL CENTRO PAESE VICINO A STRADA ASFALTATA - LOTTO DI TERRENO AGRICOLO DI MQ 5.894 - LOTTO DI TERRENO AGRICOLO DI MQ 2.493 CON BUONA POSSIBILITA' CHE IN FUTURO DIVENTI EDIFICABILE. Consegna immediata. RIF. 807 EURO 55.000
LEGGI ANCORA
Terreno in vendita a Curtarolo(PD
Terreno in vendita a Curtarolo PREMIUM
Proposto da:
- prezzo medio casa indipendente in zona OMI B1 : 1455 €/m²
- prezzo medio casa indipendente a Curtarolo : 1465 €/m²
Terreno agricolo in vendita a Curtarolo via Roma, Santa Maria Di Non
terreno agricolo Santa Maria di Non
L-CU562 I SANTA MARIA DI NON - CURTAROLO Proponiamo terreno agricolo di 43605 mq, perfetto anche per chi vuole avviare un’attività di campagna. Situato in zona residenziale tranquilla ed è accessibile facilmente da strade principali e servizi vari. Euro 250000 "L’Arte di Abitare, da più di 20 anni, offre […]
LEGGI ANCORA
Terreno agricolo in Vendita a Curtarolo Curtarolo - Centro
terreno agricolo
vendesi in centro paese 21.000 mq di terreno agricolo. Per ulteriori informazioni contattateci al 049 -700201 o sul sito www.fiorente.bizSul sito oltre alla proposta Rif 802 potete trovare altre foto, immagini e planimetrie di altre soluzioni abitative sia nella stessa zona che in altre zone.Nel caso il […]
LEGGI ANCORA
terreno residenziale in vendita a Curtarolo
terreno agricolo
Vendesi in centro paese 21.000 mq di terreno agricolo. Per ulteriori informazioni contattateci al 049 -700201 o sul sito www.fiorente.biz Sul sito oltre alla proposta Rif 802 potete trovare altre foto, immagini e planimetrie di altre soluzioni abitative sia nella stessa zona che in altre zone. Nel caso i […]
LEGGI ANCORA
Terreno agricolo in Vendita a Curtarolo Curtarolo
Vendita Terreno Agricolo Curtarolo
terreno agricolo
vendesi in centro paese 21.000 mq di terreno agricolo. Per ulteriori informazioni contattateci al 049 -700201 o sul sito www.fiorente.biz Sul sito oltre alla proposta Rif 802 potete trovare altre foto, immagini e planimetrie di altre soluzioni abitative sia nella stessa zona che in altre zone. Nel caso i […]
LEGGI ANCORA
Terreno residenziale in vendita a Curtarolo, Pieve PREMIUM
Vendita Terreno Agricolo Curtarolo
terreno agricolo 60.000 €
CURTAROLO: Immersi in mezzo alla campagna 3 campi padovani di terreno agricolo. Posizione immersa nella campagna e distante dai centri abitati. Proprietà non soggette ad obblighi di certificazione energetica. euro 60.000
LEGGI ANCORA
Palazzo in vendita a Curtarolo, Pieve
terreno edificabile Pieve di Curtarolo 220.000 €
CONTATTARE IL NUMERO 049.7437612 O RECARSI PRESSO LA NUOVA SEDE DI PIAZZOLA SUL BRENTA (PD) - VIA DEI CONTARINI, 28 In Vendita Prestigioso Palazzo Storico a Curtarolo – Frazione di Pieve Scopri questa splendida residenza nel cuore del centro di Pieve di Curtarolo: un'elegante palazzina storica che offre […]
LEGGI ANCORA
- prezzo medio casa indipendente in zona Pieve di Curtarolo : 1513 €/m²
- prezzo medio appartamento in zona Pieve di Curtarolo : 1453 €/m²
Vendesi terreno agricolo a Curtarolo, Santa Maria Di Non
terreno agricolo Santa Maria di Non 39.000 €
Terreno agricolo in vendita a Curtarolo (PD) 7.815 mq di terreno agricolo in posizione strategica nella frazione di Santa Maria di Non, a Curtarolo (PD). Il terreno: * Ampia superficie di 7.815 mq * Terreno fertile e ben drenato * Facilmente accessibile da strada comunale * Ideale per coltivazioni ortive […]
LEGGI ANCORA
Vendita Terreno Edificabile Curtarolo
terreno edificabile Pieve di Curtarolo 59.000 €
Pieve di Curtarolo: posizione lontana dai rumori del traffico, comoda al raggiungimento della SS47 Valsugana. Lotto di terreno edificabile di oltre 1300 metri quadri, con possibilità di sviluppare una cubatura di oltre 800 metri cubi. La cubatura disponibile e la conformazione del lotto, consentono la co […]
LEGGI ANCORA
Terreno in vendita a Curtarolo
Proposto da:
terreno edificabile 176.000 €
Scoprite un'opportunità unica per investire nel futuro! Vi proponiamo un lotto edificabile con superficie di mq 897 e mc edificabili 1600, già urbanizzato, situato nel comune di Curtarolo, una zona emergente e altamente desiderata. Questo terreno offre la possibilità di costruire un piccolo condominio, r […]
LEGGI ANCORA
Vendesi terreno agricolo a Curtarolo via Monte Nero, Santa Maria Di Non PREMIUM
Terreno residenziale in vendita a Curtarolo via dell' amicizia, Pieve
terreno edificabile 307.000 €
CURTAROLO - Terreno edificabile di 1505 e 1567mc in centro al paese, comodo a tutti i servizi che offre il paese, ma allo stesso tempo in zona tranquilla ed immersa nel verde. LAVORA CON NOI Fai della professione di agente immobiliare il tuo futuro. Inviaci il tuo curriculum
LEGGI ANCORA
Terreno in vendita a Curtarolo(PD
Terreno in vendita a Curtarolo
Proposto da:
terreno edificabile 110.000 €
Scoprite un'opportunità unica per investire nel futuro! Vi proponiamo un lotto edificabile con superficie di mq 716 e mc edificabili 1000, già urbanizzato, situato nel comune di Curtarolo, una zona emergente e altamente desiderata. Questo terreno offre la possibilità di costruire una bifamiliare o fino a […]
LEGGI ANCORA
- prezzo medio casa indipendente in zona OMI B1 : 1455 €/m²
- prezzo medio casa indipendente a Curtarolo : 1465 €/m²
Non perdere gli altri 10 annunci!











