N.B. Tutti le informazioni immobiliari sono fornite senza alcuna garanzia. Leggi il disclaimer.
Negozi con cantina, di recente costruzione in vendita a Novara in zona Via Verbano
MODIFICA QUESTA RICERCAAppartamento in vendita a Novara(NO PREMIUM
Residenza 'Veveri Verde' - Edificio A - Alloggio 2 Vani +S (mq 92) composto da: ampio soggiorno con balcone, ripostiglio, cucina abitabile, camera matrimoniale, bagno con vasca combinata vasca/doccia, videocitofono, zanzariere, predisposizi […]
LEGGI ANCORA
- prezzo medio appartamento in zona OMI D5 : 1365 €/m²
- prezzo medio appartamento in zona Veveri : 1316 €/m²
vendita STRADA VICINALE SANTA CATERINA trilocale 94mq
negozio Veveri 140.000 €
vendita STRADA VICINALE SANTA CATERINA trilocale 94mq Novara Novara Piemonte novara veveri interessante appartamento in contesto condominiale di sole quattro unita abitative ottimamente e totalmente ristrutturato sito al piano primo senza ascensore composto da ingresso soggiorno con cucina abitabile open […]
LEGGI ANCORA
- prezzo medio appartamento in zona OMI D5 : 1365 €/m²
- prezzo medio trivano in zona OMI D5 : 1255 €/m²
Garage - Posto auto in vendita a Novara
negozio Vignale 200.000 €
RIF. 373322 - Appartamento molto luminoso e silenzioso circondato da giardino privato immerso nel verde della campagna all'interno di una cascina finemente ristrutturata. Si trova vicino all' ingresso della tangenziale e alla fermata dell'autobus ed è ottimale per chiunque abbia desiderio di tranquillità […]
LEGGI ANCORA
Fabbricati costruiti per esigenze commerciali di 432.82 mq in vendita a Novara - Rif. 4524729
negozio Via Verbano 99.000 €
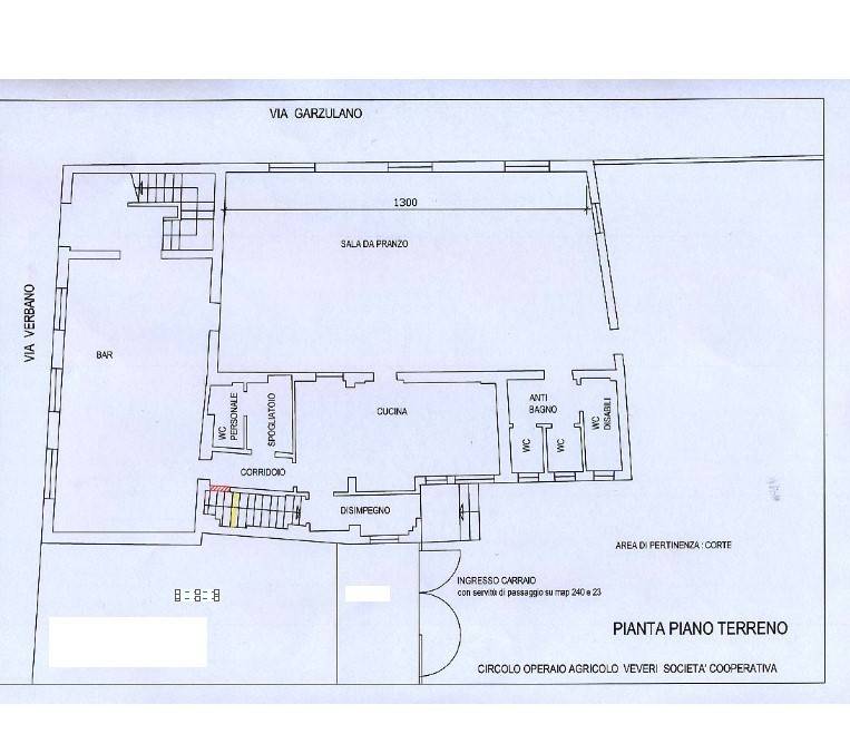
Tribunale di Novara RGE 81/2022 - Novara (NO) Via Verbano 16 - Lotto UNICO: Piena propriet per la quota di 1000/1000 di edificio commerciale sito in NOVARA (NO) in Via Verbano n.16. Il fabbricato a destinazione commerciale si articola su quattro livelli: al piano terreno presente un bar-ristorante in ese […]
LEGGI ANCORA
Immobile in vendita a Novara(NO
Vendesi negozio a Novara corso Risorgimento, 69, Sant'Andrea
negozio zona Sant'Andrea - San Rocco Corso Risorgimento 540.000 €
Vendiamo locale a reddito su Via di forte passaggio veicolare e pedonale . Locato a primario tenant , sempre lo stesso da circa 25 anni . Canone di locazione imporTante , SOPRA I 7000 EURO MENSILI . imu 7000,00 euro . 400 METRI 5 VETRINE. la proprietà in vendita è ubicata in corso Risorgimento a Novara, […]
LEGGI ANCORA
Bilocale in vendita a Novara via Tornielli, 13, Centro Storico PREMIUM
- prezzo medio appartamento in zona OMI B1 : 2204 €/m²
- prezzo medio bivano in zona OMI B1 : 2736 €/m²
Vendita locale commerciale Via Case Sparse 11 Novara (NO
negozio
LA POESIA E' CIBO PER LA MENTE ED IL CIBO DIVENTA POESIA . Questa meravigliosa proprietà commerciale a Novara , di circa mq 30.000 a destinazione alberghiera, che si estende in ventimila mq di parco con grandi aiuole di rododendri, camelie rose inglesi e con alberi come : salici, ciliegi, aceri e querce […]
LEGGI ANCORA
negozio in vendita a Novara
negozio 30.000 €
Novara in zona di forte passaggio, sulla provinciale che porta a Borgomanero. Vendesi negozi di mq 29, ideale per studio, ufficio e Negozio. Doppio ingresso, locale unico con bagno, . Riscaldamento autonomo. Libero subito da visionare bagno interno. Comodo per parcheggio per la sua posizione, Da visionar […]
LEGGI ANCORA
- prezzo medio ufficio in zona OMI D5 : 1181 €/m²
- prezzo medio ufficio a Novara : 1267 €/m²
Bar Ristorante a Novara
negozio Via Verbano 99.000 €
Piena proprietà per la quota di 1000/1000 di edificio commerciale sito in Novara, Via Verbano 16, al piano terreno bar ristorante in esercizio, al primo piano ampio salone con annessi tre locali, oltre a disimpegno e ripostiglio, al piano secondo due vani, bagno e corridoio di disimpegno, al piano interr […]
LEGGI ANCORA
Negozio in vendita a Novara via Verbano, 16, Veveri
negozio Veveri Via Verbano 99.000 €
IMMOBILE ALL'ASTA A NOVARA IN VIA VERBANO 16 Edificio commerciale su quattro livelli, composto da: -piano interrato: ampia cantina; -piano terra: un bar-ristorante in esercizio con annessa una sala di ristorazione, una cucina, un ripostiglio e servizi igienici; -piano primo: un ampio salone con annessi a […]
LEGGI ANCORA
Vendesi negozio a Novara via Verbano, 16, Veveri
negozio Veveri Via Verbano 99.000 €
PER INFORMAZIONI E PER FISSARE UN APPUNTAMENTO IN UFFICIO, CONTATTARCI AL NUMERO 02/97.48. 70.88 WWW. CONSULOVEST. IT Proponiamo in vendita OTTIMO FABBRICATO COMMERCIALE ALL'ASTA! Codice di riferimento: X26263 Proponiamo in vendita OTTIMO FABBRICATO COMMERCIALE ALL'ASTA, disposto su tre livelli, realizza […]
LEGGI ANCORA
Garage - Posto auto in vendita a Novara PREMIUM
Negozio in vendita a Novara via Verbano, 16, Veveri
negozio Veveri Via Verbano 98.990 €
RIFERIMENTO:4457484 Via Verbano, 16, Novara NO Piena proprietà per la quota 1000/1000 di edificio commerciale su quattro livelli. Al piano terra bar-ristorante in esercizio, al primo piano ampio salone con annessi tre vani, al piano secondo due vani con annesso bagno e corridoio di disimpegno, al piano i […]
LEGGI ANCORA
Negozio in vendita a Novara, Veveri
negozio Veveri Via Verbano 99.000 €
Via Verbano,, 28100 Novara NO, Italia, Novara (Novara) - Piena proprietà di edificio commerciale su quattro livelli. Al piano terra bar-ristorante in esercizio, al primo piano salone con annessi tre vani, al piano secondo due vani con annessi bagno e corridoio di disimpegno, al piano interrato cantina a […]
LEGGI ANCORA
Vendesi negozio a Novara, Veveri
negozio Veveri Via Verbano 99.000 €
Via Verbano,, 28100 Novara NO, Italia, Novara (Novara) - Piena proprietà di edificio commerciale su quattro livelli. Al piano terra bar-ristorante in esercizio, al primo piano ampio salone con annessi tre vani, al piano secondo due vani con annesso bagno e corridoio di disimpegno, al piano interrato cant […]
LEGGI ANCORA
Vendesi negozio a Novara corso Vittoria, 74C, San Rocco
negozio zona Sant'Andrea - San Rocco 6.000.000 €
Centro Commerciale, (LOTTO UI3), sito nel parco denominato “Parco Commerciale ed urbano attrezzato a Novara Veveri” insistente su area di mq 15.951, distinta al C.T. al fl. 21, n. 243, quale ente urbano, confinante con mappali n.ri 462,467, 321, altro foglio di mappa I beni di cui alla presente descrizio […]
LEGGI ANCORA
Immobile in asta di 15951 m con più di 5 locali in vendita a Novara
negozio Veveri 5.999.990 €
Riferimento , 4298445 Novara Via Carlo Schleifer n.8 Centro Commerciale sito nel parco denominato “Parco Commerciale ed urbano attrezzato a Novara Veveri” insistente su area di mq 15.951, distinta al C.T. al fl. 21, n. 243, quale ente urbano, confinante con mappali n.ri 462,467, 321, altro foglio di mapp […]
LEGGI ANCORA
Appartamento in vendita a Novara(NO PREMIUM
Residenza 'Veveri Verde' - Edificio A - Alloggio 2 Vani +S (mq 92) composto da: ampio soggiorno con balcone, ripostiglio, cucina abitabile, camera matrimoniale, bagno con vasca combinata vasca/doccia, videocitofono, zanzariere, predisposizi […]
LEGGI ANCORA
- prezzo medio appartamento in zona OMI D5 : 1365 €/m²
- prezzo medio appartamento in zona Veveri : 1316 €/m²
Negozio in vendita a Novara via Verbano 16
negozio Via Verbano
IMMOBILE ALL'ASTA A NOVARA IN VIA VERBANO 16 Edificio commerciale su quattro livelli, composto da: -piano interrato: ampia cantina; -piano terra: un bar-ristorante in esercizio con annessa una sala di ristorazione, una cucina, un ripostiglio e servizi igienici; -piano primo: un ampio salone con annessi a […]
LEGGI ANCORA
Stabile/palazzo in vendita a Novara via Verbano, 16, Veveri
negozio Veveri Via Verbano 99.000 €
Edificio commerciale su quattro livelli. - Piano terreno: bar ristorante in esercizio, con sala ristorazione, oltre servizi per la clientela, cucina, ripostiglio e servizi per il personale. - Piano primo: ampio salone con annessi altri tre vani, disimpegno e ripostiglio. - Piano secondo: due vani, bagno […]
LEGGI ANCORA
- prezzo medio ufficio in zona OMI D5 : 1181 €/m²
- prezzo medio ufficio in zona Veveri : 1213 €/m²
Immobile in asta di 432 m con più di 5 locali in vendita a Novara
negozio Via Verbano 98.990 €
RIFERIMENTO 4462159 Via Verbano, 16, 28100 Novara NO, Italia, 28100 Novara Novara Piena propriet di edificio commerciale su quattro livelli. Al piano terra bar-ristorante in esercizio, al primo piano salone con annessi tre vani, al piano secondo due vani con annessi bagno e corridoio di disimpegno, al pi […]
LEGGI ANCORA
- prezzo medio pentavano a Novara : 1825 €/m²
Non perdere gli altri annunci!










