N.B. Tutti le informazioni immobiliari sono fornite senza alcuna garanzia. Leggi il disclaimer.
Terreno edificabile in vendita a Nova Milanese
                                                terreno edificabile Via Silvio Pellico 80.000 €
                                                
                                                Rif: AA-VP - Molti dei nostri immobili vengono venduti prima di arrivare qui, per vederli in anteprima seguici su Instagram “tempocasanovamilanese”. Sei alla ricerca di un terreno da edificare? Questo è la soluzione che fa per te! La Tempocasa di Nova Milanese propone in vendita terreno ad uso residenzia […]
LEGGI ANCORA
                                            
- prezzo medio casa indipendente in zona OMI D1 : 2285 €/m²
- prezzo medio casa indipendente a Nova Milanese : 2312 €/m²
Villa singola in vendita a Nova Milanese via Montefiorino, 5
                                                terreno edificabile Via Montefiorino 395.000 €
                                                
                                                In via Montefiorino, proponiamo in vendita VILLA libera su quattro lati inserita all'interno di un giardino di circa 600 mq. La struttura si sviluppa sue due livelli di circa 100 mq ciascuno collegati tra loro sia da scala interne che esterna oltre al locale seminterrato. La soluzione si completa di una  […]
LEGGI ANCORA
                                            
- prezzo medio casa indipendente in zona OMI D1 : 2285 €/m²
- prezzo medio villa in zona OMI D1 : 2258 €/m²
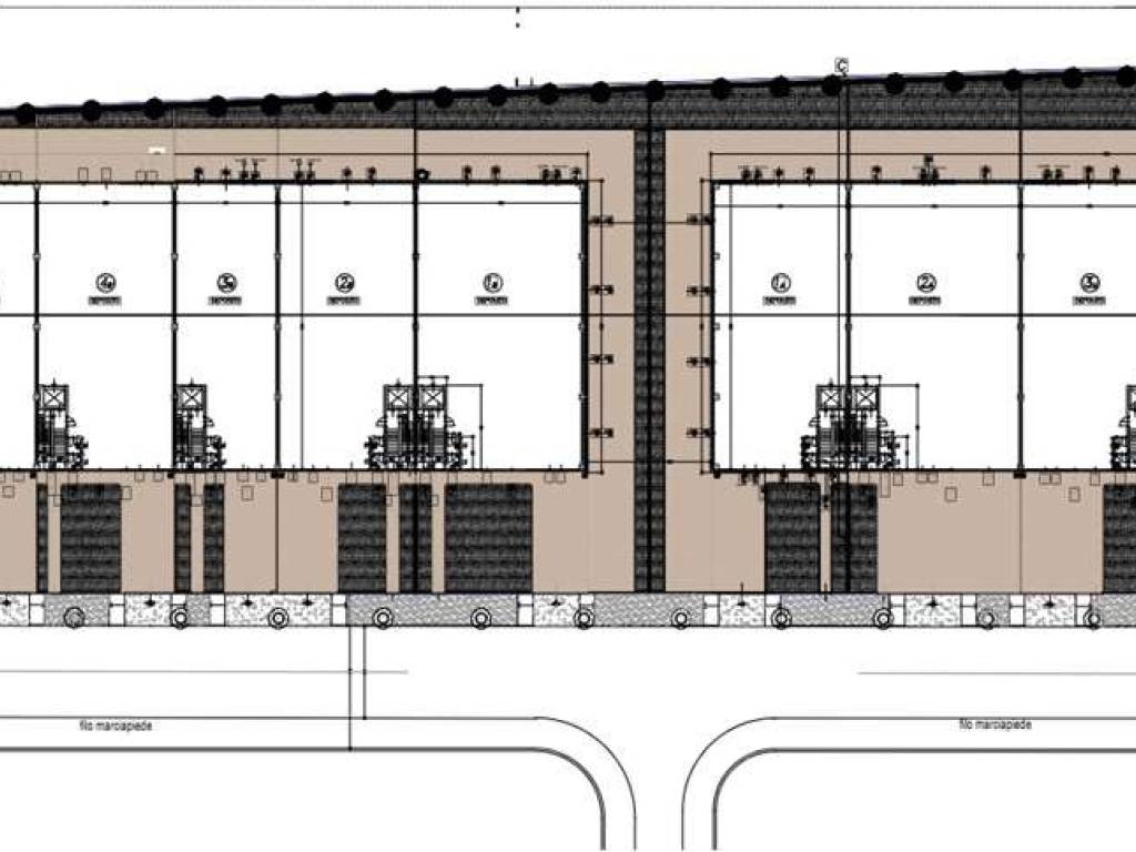
Capannone industriale in vendita a Nova Milanese via Ugo La Malfa, 1
                                                terreno edificabile Via Ugo La Malfa
                                                
                                                Capannoni in vendita di prossima costruzione ubicati nel Comune di Nova Milanese, nelle immediate vicinanze dell' uscita SS Milano-Meda. La realizzazione prevede N. 2 lotti con porzioni a partire da 145 mq, 290 mq, 385 mq e 480 mq e multipli sino ad un totale di mq. 2.400 circa per il lotto A e porzioni  […]
LEGGI ANCORA
                                            
terreno edificabile in vendita a Nova Milanese
                                                terreno edificabile 990.000 €
                                                
                                                Nova Milanese, a soli 2 km dalla A52 e da 1,4 km dalla SP 35 proponiamo intero complesso industriale attualmente in uso.  Lotto 3000 mq.  Fabbricato produttivo di 1.781 mq, suddiviso su due piani da 866 mq ciascuno, collegati internamente da scale per uscita di emergenza e montacarichi con capacità di 75 […]
LEGGI ANCORA
                                            
Terreno in vendita a Nova Milanese(MB
Capannone industriale in vendita a Nova Milanese via Ugo La Malfa, 1
                                                terreno edificabile Via Ugo La Malfa
                                                
                                                Capannoni in vendita di prossima costruzione ubicati nel Comune di Nova Milanese, nelle immediate vicinanze dell' uscita SS Milano-Meda. La realizzazione prevede N. 2 lotti con porzioni a partire da 145 mq, 290 mq, 385 mq e 480 mq e multipli sino ad un totale di mq. 2.400 circa per il lotto A e porzioni  […]
LEGGI ANCORA
                                            
Capannone industriale in vendita a Nova Milanese via Ugo La Malfa, 1
                                                terreno edificabile Via Ugo La Malfa
                                                
                                                Capannoni in vendita di prossima costruzione ubicati nel Comune di Nova Milanese, nelle immediate vicinanze dell' uscita SS Milano-Meda. La realizzazione prevede N. 2 lotti con porzioni a partire da 145 mq, 290 mq, 385 mq e 480 mq e multipli sino ad un totale di mq. 2.400 circa per il lotto A e porzioni  […]
LEGGI ANCORA
                                            
Capannone industriale in vendita a Nova Milanese via Ugo La Malfa, 1
                                                terreno edificabile Via Ugo La Malfa
                                                
                                                Capannoni in vendita di prossima costruzione ubicati nel Comune di Nova Milanese, nelle immediate vicinanze dell' uscita SS Milano-Meda. La realizzazione prevede N. 2 lotti con porzioni a partire da 145 mq, 290 mq, 385 mq e 480 mq e multipli sino ad un totale di mq. 2.400 circa per il lotto A e porzioni  […]
LEGGI ANCORA
                                            
Capannone industriale in vendita a Nova Milanese via Ugo La Malfa, 1
                                                terreno edificabile Via Ugo La Malfa
                                                
                                                Capannoni in vendita di prossima costruzione ubicati nel Comune di Nova Milanese, nelle immediate vicinanze dell' uscita SS Milano-Meda. La realizzazione prevede N. 2 lotti con porzioni a partire da 145 mq, 290 mq, 385 mq e 480 mq e multipli sino ad un totale di mq. 2.400 circa per il lotto A e porzioni  […]
LEGGI ANCORA
                                            
Capannone industriale in vendita a Nova Milanese via Ugo La Malfa, 1
                                                terreno edificabile Via Ugo La Malfa
                                                
                                                Capannoni in vendita di prossima costruzione ubicati nel Comune di Nova Milanese, nelle immediate vicinanze dell' uscita SS Milano-Meda. La realizzazione prevede N. 2 lotti con porzioni a partire da 145 mq, 290 mq, 385 mq e 480 mq e multipli sino ad un totale di mq. 2.400 circa per il lotto A e porzioni  […]
LEGGI ANCORA
                                            
Capannone industriale in vendita a Nova Milanese via Galileo Galilei
                                                terreno edificabile Via Galileo Galilei 990.000 €
                                                
                                                Nova Milanese, a soli 2 km dalla A52 e da 1,4 km dalla SP 35 proponiamo intero complesso industriale attualmente in uso. Lotto 3000 mq. Fabbricato produttivo di 1.781 mq, suddiviso su due piani da 866 mq ciascuno, collegati internamente da scale per uscita di emergenza e montacarichi con capacità di 750  […]
LEGGI ANCORA
                                            
Terreno residenziale in vendita a Nova Milanese via Caravaggio
                                                terreno edificabile Via Caravaggio 175.000 €
                                                
                                                Disponiamo lotto di terreno edificabile di mq 560 con possibilità di realizzare villa singola o bifamiliare. In alternativa possibilità di costruire mini palazzina di 5 appartamenti disposti tra piano terra, primo e secondo. Ulteriori informazioni in ufficio
LEGGI ANCORA
                                            
- prezzo medio casa indipendente in zona OMI D1 : 2285 €/m²
- prezzo medio villa in zona OMI D1 : 2258 €/m²
Vendesi ufficio a Nova Milanese
                                                terreno edificabile
                                                
                                                VENDESI COMPLESSO TERZIARIO/UFFICI DI COMPLESSIVI MQ 7000 CIRCA, COSI' SUDDIVISO: LOTTO A UFFICI MQ 5600 CIRCA SU DUE LIVELLI ; LOTTO B UFFICI DI MQ 1400 CIRCA SU TRE LIVELLI. AREA ESTERNA DI MQ 11.000 CIRCA. DAMA REAL ESTATE SRL è una società di intermediazione immobiliare nata per iniziativa di profess […]
LEGGI ANCORA
                                            
 
                                     
                                            
 
                                             
                                                    


 
                                             
                                                     
                                             
                                             
                                             
                                             
                                             
                                             
                                             
                                             
                                             
                                            