N.B. Tutti le informazioni immobiliari sono fornite senza alcuna garanzia. Leggi il disclaimer.
Locali commerciali o loft o negozi in vendita a Cornate d'Adda - pg. 4 di 4
MODIFICA QUESTA RICERCAImmobile in vendita a Cornate d'Adda(MB PREMIUM
- prezzo medio ufficio in zona OMI B2 : 1047 €/m²
- prezzo medio appartamento in zona OMI B2 : 1641 €/m²
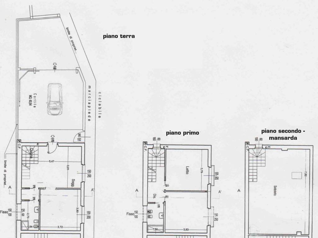
Bilocale in vendita a Cornate d'Adda via Achille Grandi, 16
negozio 72.000 €
Cornate d’Adda – Via Achille Grandi 16 Proponiamo in vendita bilocale mansardato posto al quarto ed ultimo piano di una palazzina ben tenuta. L’immobile è servito da ascensore fino al terzo piano e garantisce privacy, tranquillità e una buona luminosità grazie alla posizione elevata. La soluzione è compo […]
LEGGI ANCORA
- prezzo medio appartamento in zona OMI B2 : 1641 €/m²
- prezzo medio attico in zona OMI B2 : 1623 €/m²
negozio in vendita a Cornate d'Adda
negozio 79.000 €
Nel centro del Comune di Cornate d’Adda, a pochi passi dal centro cittadino, nel nuovo complesso residenziale 'Il 21 di Via Matteotti', si realizzano NEGOZI di varie metrature al piano terra. Il negozio in vendita è composto da una superficie commerciale di 43,9 mq. , cantina 7,3 mq e box a scelta. Il lo […]
LEGGI ANCORA
Ufficio in vendita a Cornate d'Adda via Pastore, 5
loft 90.000 €
COSA SAPERE DELL'IMMOBILE PER INFORMAZIONI ED APPUNTAMENTI CHIAMA 039 636 11 75 Proponiamo in vendita un ufficio che dispone di una superficie utile complessiva di circa 90 metri quadrati disposti al piano seminterrato di una struttura sviluppata su più livelli. POSSIBILITA' DI FARE UN AFFITTO CON RISCAT […]
LEGGI ANCORA
- prezzo medio appartamento in zona OMI B2 : 1641 €/m²
- prezzo medio ufficio in zona OMI B2 : 1047 €/m²
Negozio in vendita a Cornate d'Adda
negozio 72.500 €
LOTTO 9: Locale commerciale sito in Cornate d'Adda via Manzoni (ex via Dante 40) della superficie lorda complessiva di 173,20 mq per la quota di 1000/1000 di piena proprietà, posto al piano primo, composto da locale ad uso commerciale con terrazzo ad uso esclusivo e vano ripostiglio al piano interrato. L […]
LEGGI ANCORA
Locale commerciale in vendita a Cornate D'adda
locale commerciale 72.500 €
Asta Immobiliare Giudiziaria | Tribunale di Monza Locale commerciale Via Manzoni Cornate d'Adda di 559 mq. Oggetto della presente vendita sono i seguenti beni: Diritto di piena proprietà al 100% di immobile commerciale costituito da locale commerciale di 100,00 mq lordi, posto al primo piano, con terrazz […]
LEGGI ANCORA
Quadrilocale in vendita a Cornate d'Adda via luigi nono PREMIUM
8- QUADRILOCALE PRIMO PIANO CON GRANDE TERRAZZO !! In un elegante contesto di nuova realizzazione composto da sole 12 unità abitative, nasce una splendida soluzione al primo piano, dotata di un ampio terrazzo vivibile, ideale per chi cerca […]
LEGGI ANCORA
- prezzo medio appartamento in zona OMI B2 : 1641 €/m²
- prezzo medio quadrivano in zona OMI B2 : 1712 €/m²
Attività commerciale in vendita a Cornate d'Adda
negozio 17.000 €
Via Giacomo Matteotti,, 20872 Cornate d'Adda MB, Italia, Cornate d'Adda (Monza e della Brianza) - Lotto 2 - Cornate d'Adda via Matteotti 59 - Box singolo - VUOI ACQUISTARE QUESTO IMMOBILE ALL'ASTA? PRENOTA ORA LA TUA CONSULENZA GRATUITA! Rispondi subito a questo annuncio per ricevere il link e fissare la […]
LEGGI ANCORA
Non perdere gli altri 42 annunci!



