Valutazione immobiliare indipendente, accurata e gratuita
Appartamento in vendita a Ripalimosani a 34.000 € (cod.6517df7d)
Caasa non ha sufficienti informazioni per commentare l'appartamento in vendita a Ripalimosani - 6517df7d.
Analisi immobiliare
I dati in posseso di Caasa per quest'immobile sono insufficienti, inaffidabili o contraddittori per proporre un'analisi attendibile.
Mercato immobiliare a Ripalimosani
Per quanto riguarda più in generale il comune di Ripalimosani, sono presenti al momento più di trenta annunci per
appartamenti in vendita (meno del 5% dell'intera provincia) .
Relativamente alla dinamica dei prezzi, possiamo dire che negli ultimi 6 mesi i prezzi medi in tutto il comune per appartamenti in vendita sono
in deciso aumento (+8,32%).
NOVITÀ Il risultato che vedi dipende dai dati che siamo riusciti ad estrarre dall'annuncio: ottieni una stima più accuranta di questo immobile, inserendo dati più precisi.
N.B. L'Opinione di Caasa® è un servizio sperimentale realizzato tramite tecniche di Intelligenza Artificiale, fornito senza alcuna garanzia di correttezza e completezza. Leggi il disclaimer o segnalaci un problema.
IMMAGINI
IN SINTESI
PROPOSTO DA:
Affiliato Frimm - DI MARIO ALESSANDRO S.R.L.S.
DESCRIZIONE
di recente costruzione con termocondizionamento con caminetto con riscaldamento autonomo di recente costruzione con cucina abitabile
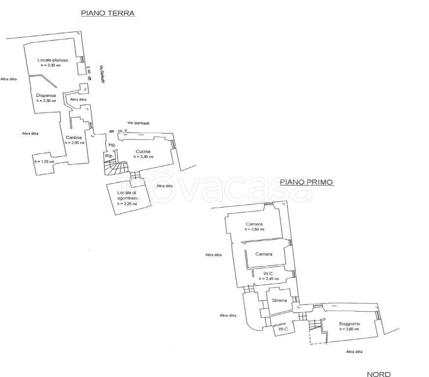
Appartamento su due livelli in vendita - Via Garibaldi, Ripalimosani In una delle zone più tranquille e panoramiche di Ripalimosani proponiamo in vendita un appartamento su due livelli di circa 170 m², in buono stato e subito abitabile. Al primo piano si trovano una luminosa zona giorno con soggiorno e una cucina abitabile dotata di camino, perfetta per creare un'atmosfera accogliente. Il secondo piano ospita quattro camere da letto ben distribuite e due bagni finestrati. L'immobile è dotato di infissi in doppio vetro, zanzariere su tutte le finestre, riscaldamento autonomo e muri in ottime condizioni, privi di umidità. A soli tre metri dalla casa è presente una pratica tavernetta indipendente, composta da un'ampia sala con camino, un bagno e due ripostigli capienti, ideale come spazio aggiuntivo per ospiti, svago o momenti di relax. La proprietà si trova in Via Garibaldi, facilmente raggiungibile anche con una piccola utilitaria, caratteristica molto comoda nel centro storico. Soluzione ideale per chi cerca ampi spazi, comfort e un ambiente sereno senza rinunciare al fascino del borgo. Contattaci subito per fissare un appuntamento



