N.B. Tutti le informazioni immobiliari sono fornite senza alcuna garanzia. Leggi il disclaimer.
Terreni agricoli, di recente ristrutturazione in vendita a Modena in zona Sant'Agnese
MODIFICA QUESTA RICERCATerreno agricolo in vendita a Modena
terreno agricolo Sant'Agnese
In vendita un terreno agricolo di prestigio situato in un contesto civile, ideale per chi desidera investire in un'area fertile e ricca di potenziale. Il lotto si estende per 13.000 mq, offrendo ampie possibilità di coltivazione e sviluppo. La posizione strategica permette un facile accesso ai principali […]
LEGGI ANCORA
Terreno agricolo in vendita a Modena
terreno agricolo San Faustino
Modena, 90,000 metri di terreno agricolo in una delle zone piu' belle di Modena, in zona Contrada. Terreno irrigato e con potenzialita' non soltanto agricole, visto il contesto circostante. Trattativa riservata, per informazioni in ufficio chiedere di Alessandro 3460749560
LEGGI ANCORA
Terreno agricolo in vendita in via marchiona a Modena
terreno agricolo Centro Storico
Terreno agricolo di 20 ettari coltivato a frutteto (pere IGP) – CarpiA soli 2,5 km dal centro storico di Carpi, in via Marchiona, proponiamo in vendita ampio terreno agricolo di circa 260.000 mq.Il terreno è attualmente coltivato a frutteto, con produzione di pere IGP, in un contesto pianeggiante e facil […]
LEGGI ANCORA
Terreno in vendita a Modena(MO
Terreno agricolo in vendita a Modena
terreno agricolo Buon Pastore
In vendita a Modena un prestigioso terreno agricolo di 25.000 mq, situato in un contesto civile che offre tranquillità e bellezza naturale. Questo terreno è ideale per chi desidera investire in attività agricole o per chi cerca uno spazio per realizzare il proprio sogno di vita all'aria aperta. L'area è […]
LEGGI ANCORA
Terreno residenziale in vendita a Modena strada Vignolese, Sant'Agnese - Universit PREMIUM
Terreno in vendita a Modena(MO
terreno agricolo Buon Pastore
Terreno - VENDESI terreno agricolo a prato di circa 2500 mq. Zona San Donnino
LEGGI ANCORA
Agricolo - Frutteto a Modena
terreno agricolo Centro Storico
Terreno agricolo di 20 ettari coltivato a frutteto (pere IGP) – Carpi A soli 2,5 km dal centro storico di Carpi, in via Marchiona, proponiamo in vendita ampio terreno agricolo di circa 260.000 mq. Il terreno è attualmente coltivato a frutteto, con produzione di pere IGP, in un contesto pianeggiante e fac […]
LEGGI ANCORA
Vendita Terreno agricolo via marchiona Modena (MO
terreno agricolo Centro Storico
Terreno agricolo di 20 ettari coltivato a frutteto (pere IGP) – Carpi A soli 2,5 km dal centro storico di Carpi, in via Marchiona, proponiamo in vendita ampio terreno agricolo di circa 260.000 mq. Il terreno è attualmente coltivato a frutteto, con produzione di pere IGP, in un contesto pianeggiante e fac […]
LEGGI ANCORA
Vendita Frutteto Modena
terreno agricolo Centro Storico
Terreno agricolo di 20 ettari coltivato a frutteto (pere IGP) - Carpi A soli 2,5 km dal centro storico di Carpi, in via Marchiona, proponiamo in vendita ampio terreno agricolo di circa 260.000 mq. Il terreno è attualmente coltivato a frutteto, con produzione di pere IGP, in un contesto pianeggiante e fac […]
LEGGI ANCORA
Terreno agricolo in vendita a Modena via marchiona
terreno agricolo Centro Storico
Terreno agricolo di 20 ettari coltivato a frutteto (pere IGP) – Carpi A soli 2,5 km dal centro storico di Carpi, in via Marchiona, proponiamo in vendita ampio terreno agricolo di circa 260.000 mq. Il terreno è attualmente coltivato a frutteto, con produzione di pere IGP, in un contesto pianeggiante e fac […]
LEGGI ANCORA
Terreno agricolo in vendita a Modena, Centro
terreno agricolo Centro Storico
Rif.T108) Modena Terreno agricolo adatto FOTOVOLTAICO lotto ca. 400.000.mq € 10al mq Trattativa riservata. COSA FARE SE LA BANCA VI NEGA IL MUTUO ? RENT TO BUY - AFFITTO CON RISCATTO POSSIBILITA' ACQUISTARE IN AFFITTO CON RISCATTO. QUALSIASI TIPO DI IMMOBILE RESIDENZIALE - COMMERCIALE - INDUSTRIALE - TER […]
LEGGI ANCORA
Vendita Terreno residenziale Modena
terreno agricolo Sant'Agnese Strada Vignolese 400.000 €
VC1867 Strada Vignolese, in zona verde e tranquilla, circondata da un ampio parco, vendiamo lotto di circa 700 mq di terreno edificabile con progetto già approvato con possibilità di realizzare fino a 3 unità abitative in un contesto di pregio a cui si aggiungono 5.000 mq di terreno agricolo. Maggiori in […]
LEGGI ANCORA
Agricolo - Frutteto a Modena
terreno agricolo Centro Storico 1.350.000 €
Terreno agricolo di 20 ettari coltivato a frutteto (pere IGP) - Carpi A soli 2,5 km dal centro storico di Carpi, in via Marchiona, proponiamo in vendita ampio terreno agricolo di circa 260.000 mq. Il terreno è attualmente coltivato a frutteto, con produzione di pere IGP, in un contesto pianeggiante e fac […]
LEGGI ANCORA
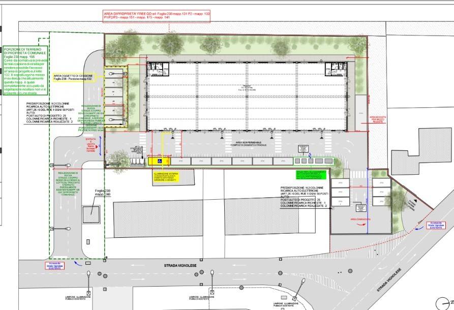
Terreno residenziale in vendita a Modena strada Vignolese, Sant'Agnese - Universit
terreno agricolo Sant'Agnese Strada Vignolese 330.000 €
Ascari Home Consulting Riferimento 100 C propone in vendita terreno edificabile commerciale in zona con altissimo passaggio automobilistico lotto di 2600 mq con progetto gia' approvato per costruzione capannone di mq 964 di superficie utile, internamente è possibile soppalcare fino al 50% della superfici […]
LEGGI ANCORA
Terreno in vendita a Modena(MO
Terreno residenziale in vendita a Modena strada Vignolese, 2, Sant'Agnese - Universit
Proposto da:
Palmieri Costruzioni Srl
terreno agricolo Sant'Agnese Strada Vignolese 610.000 €
In posizione strategica e centrale a Modena, proponiamo lotto edificabile di mq 753, completamente bonificato e pronto per l’avvio immediato dei lavori. Una soluzione ideale e una opportunità per chi desidera sviluppare rapidamente un progetto residenziale evitando le lunghe attese burocratiche, soluzion […]
LEGGI ANCORA
- prezzo medio casa indipendente in zona OMI R3 : 1961 €/m²
- prezzo medio villa in zona OMI R3 : 2107 €/m²









