N.B. Tutti le informazioni immobiliari sono fornite senza alcuna garanzia. Leggi il disclaimer.
Capannoni o locali commerciali con cortile, di nuova costruzione o di recente costruzione in vendita a Peschiera Borromeo in zona Canzo
MODIFICA QUESTA RICERCACapannone industriale in vendita a Peschiera, Peschiera Borromeo PREMIUM
Immobile in vendita a Peschiera Borromeo(MI
Terreno in vendita a Peschiera Borromeo(MI
Immobile in vendita a Peschiera Borromeo(MI
Immobile in vendita a Peschiera Borromeo(MI
Immobile in vendita a Peschiera Borromeo(MI
Capannone industriale in vendita a Peschiera, Peschiera Borromeo PREMIUM
Immobile in vendita a Peschiera Borromeo(MI
Capannone industriale in vendita a Linate, Peschiera Borromeo
capannone Linate
Se siete alla ricerca di un capannone per stoccaggio materiale e ricevere clienti e/o fornitori in una privilegiata posizione geografica, nelle immediate vicinanze dell'aeroporto di Linate, alla tangenziale est e all’ autostrada Milano-Bologna, vi proponiamo in vendita un capannone di ca. 1.150 MQ comple […]
LEGGI ANCORA
Stabile/palazzo in vendita a Peschiera, Peschiera Borromeo
capannone Linate 6.000.000 €
Sei alla ricerca di un importante asset immobiliare ? Ti proponiamo all'interno della più importante area industriale / commerciale del sud di Milano ( Peschiera Borromeo - Linate): - Palazzina a vetri direzionale - Capannone con uffici operativi - Piazzale di 5.000 mq - Area edificabile industriale - n. […]
LEGGI ANCORA
capannone in vendita a Peschiera Borromeo in zona Canzo
capannone Canzo 580.000 €
Nel comune di Peschiera Borromeo, fraz. Canzo, in un quartiere con vocazione industriale, BeCò Immobiliare propone in vendita un capannone di circa 600mq commerciali così composto: - capannone: 350mq - uffici: 95mq - area commerciale (negozio): 95mq - area di manovra (cortile): 460mq La superficie con de […]
LEGGI ANCORA
- prezzo medio ufficio a Peschiera Borromeo : 2621 €/m²
Capannone industriale in vendita a Peschiera, Peschiera Borromeo
capannone 3.200.000 €
PESCHIERA BORROMEO (MI) - Zona industriale nelle immediate vicinanze di Tangenziale Est e SS Paullese. Immobile industriale-artigianale di rappresentanza, caratterizzato da finiture di pregio, composto da capannone al piano terra di circa 850 mq. alto mt. 6.30 sotto-trave, e palazzina uffici di circa 1.0 […]
LEGGI ANCORA
Capannone industriale in vendita a Linate, Peschiera Borromeo PREMIUM
capannone industriale in vendita a Peschiera Borromeo
capannone Linate 485.000 €
Peschiera Borromeo, proponiamo in vendita Capannone ad uso Laboratorio di mq. 835 (categoria catastale C3). L'immobile si sviluppa su un unico piano terra suddiviso in 3 grandi locali openspace ed un giardino di ca. 1150 mq che funge da parcheggio. L'edificio ha una struttura in cemento armato e gode di […]
LEGGI ANCORA
Capannone industriale in vendita a Peschiera Borromeo via Canzo, 6
capannone Canzo 1.100.000 €
Immobile di recente costruzione, altezza 8 mt, dotato di cortile ad uso esclusivo in un contesto produttivo alle spalle dell’Aeroporto. La presente scheda non costituisce forma di contratto. Le informazioni qui contenute sono da ritenersi del tutto indicative e non potranno essere utilizzate come parte i […]
LEGGI ANCORA
Capannone industriale in vendita a Peschiera, Peschiera Borromeo
capannone Canzo 2.000.000 €
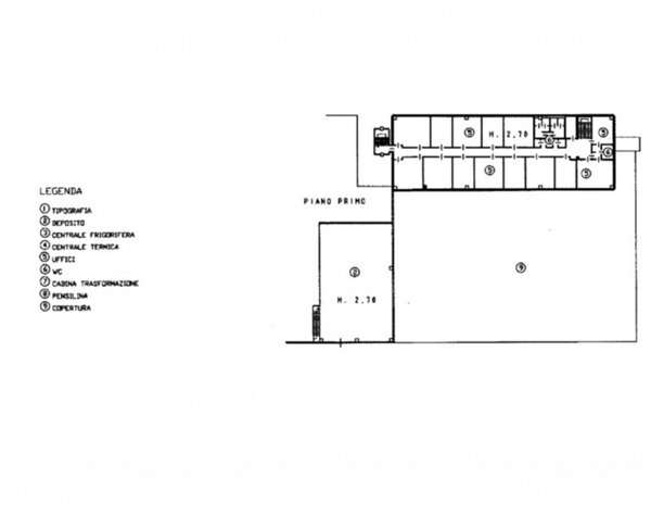
Nel cuore di Peschiera Borromeo, in via Canzo, si sviluppa un complesso immobiliare dal forte potenziale, proposto in vendita a € 2.000.000. La proprietà comprende un fabbricato ad uso industriale, che si distingue in due aree principali: la zona uffici, destinata ai reparti tecnici e dirigenziali, e la […]
LEGGI ANCORA
Capannone industriale in vendita a Peschiera, Peschiera Borromeo
capannone 2.000.000 €
Capannone in vendita a Peschiera Borromeo (MI) Capannone di c.a. 3000 mq in vendita a Peschiera Borromeo (MI) Proponiamo in vendita, nel comune di Peschiera Borromeo, un capannone industriale di circa 3.000 mq disposto su due livelli, con area esterna di pertinenza. L'immobile, ideale per attività produt […]
LEGGI ANCORA
Capannone industriale in vendita a Peschiera, Peschiera Borromeo
capannone Linate 580.000 €
Nel comune di Peschiera Borromeo, fraz. Canzo, in un quartiere con vocazione industriale, BeCò Immobiliare propone in vendita un capannone di circa 600mq commerciali così composto: - capannone: 350mq - uffici: 95mq - area commerciale (negozio): 95mq - area di manovra (cortile): 460mq La superficie con de […]
LEGGI ANCORA
- prezzo medio ufficio in zona Linate : 2756 €/m²
- prezzo medio locale commerciale a Peschiera Borromeo : 1128 €/m²
Capannone industriale in vendita a Peschiera, Peschiera Borromeo PREMIUM
Capannone industriale in vendita a Peschiera, Peschiera Borromeo
Proposto da:
G.I.B.A. SERVIZI IMMOBILIARI SRL
capannone Linate 311.000 €
Peschiera Borromeo è un punto strategico per le diverse attività che si insediano, grazie alla sua posizione privilegiata alle porte di Milano, per la vicinanza all'aeroporto di Linate e per i suoi collegamenti: Strada Statale Paullese nuova (SS 415), Strada Provinciale Paullese vecchia (SP 15bis), tange […]
LEGGI ANCORA
Capannone in Vendita a Peschiera Borromeo
capannone 510.000 €
Vende a PESCHIERA BORROMEO, Capannone con uffici, mq. 534 ca. Prezzo Euro. 510.000,00 Immobile formato da due unita ' adiacenti: UNITA ' A di mq. 310 ca. composto da mq. 240 ca. uso lavorazione con un 'altezza interna di mt 5,70 e mq. 70 ca. di uffici su due livelli; UNITA ' B di mq. 224 ca. composto da […]
LEGGI ANCORA
Capannone industriale in vendita a Peschiera Borromeo via Canzo
- prezzo medio appartamento in zona OMI D9 : 2774 €/m²
- prezzo medio appartamento in zona Canzo : 3045 €/m²
Non perdere gli altri 8 annunci!










