N.B. Tutti le informazioni immobiliari sono fornite senza alcuna garanzia. Leggi il disclaimer.
Negozi in asta giudiziaria e con cantina e con riscaldamento autonomo e con termocondizionamento in vendita a Milano in zona Via Vitruvio
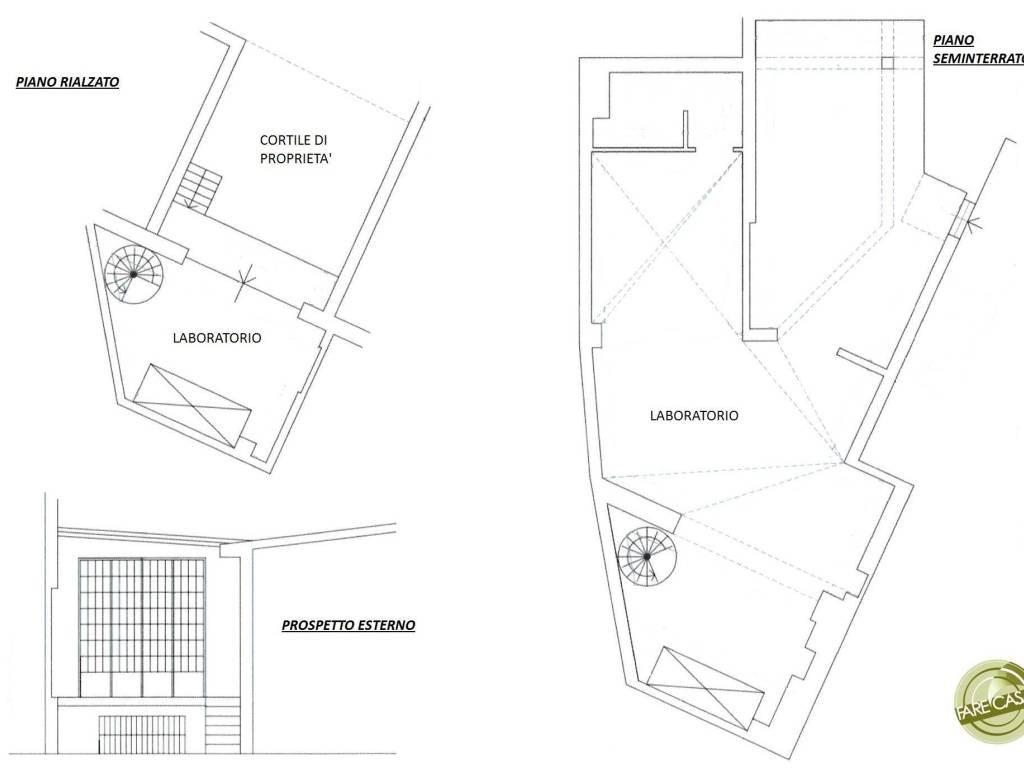
MODIFICA QUESTA RICERCANegozio in vendita a Milano via Vitruvio, Centrale
negozio Stazione Centrale Via Vitruvio 390.000 €
Via Vitruvio all'interno di uno stabile d'epoca in ottimo stato degli anni 1960 con servizio di portineria intera giornata, proponiamo in vendita un negozio con una vetrina su strada di 65 MQ completamente ristrutturato con canna fumaria con all'interno una attività di pizzeria. Attualmente l'immobile è […]
LEGGI ANCORA
- prezzo medio quadrivano in zona OMI C12 : 7323 €/m²
- prezzo medio quadrivano in zona Stazione Centrale : 6502 €/m²
Attività / Licenza in vendita a Milano(MI
negozio Porta Venezia Corso Buenos Aires 39.000 €
Attività commerciale - Milano – Corso Buenos Aires In vendita casa vacanza con contratto 4+4 a società stipulato a dicembre 2023, canone mensile € 1.550 (spese condominiali incluse). L’immobile si compone di: Ingresso Sogg
LEGGI ANCORA
Appartamento in vendita a Milano
negozio Stazione Centrale Via Vitruvio 245.000 €
Rif: DA245 - Milano, via Vitruvio 43. Proponiamo in vendita ampio monolocale di circa 38 mq sito al 4 piano con ascensore di uno stabile del 1960. La soluzione internamente presenta: ingresso, ampia zona giorno/notte con cucina e 3 grandi finestre che affacciano su via Vitruvio, e bagno. Tra i punti di f […]
LEGGI ANCORA
- prezzo medio appartamento in zona OMI C12 : 7578 €/m²
- prezzo medio monolocale in zona OMI C12 : 7816 €/m²
Appartamento in vendita a Milano
negozio Ponte Seveso 430.000 €
INTERNO: la soluzione proposta è un BILOCALE RISTRUTTURATO A NUOVO CON GIARDINO PRIVATO di 67 mq c. a. composto da: ingresso su soggiorno con cucina a vista con accesso al giardino privato, disimpegno, bagno finestrato, ripostiglio e camera da letto matrimoniale. Completa il tutto una cantina di pertinen […]
LEGGI ANCORA
- prezzo medio appartamento in zona OMI C15 : 6088 €/m²
- prezzo medio bivano in zona OMI C15 : 6328 €/m²
Attività / Licenza in vendita a Milano(MI
negozio Porta Venezia Via Lambro 35.000 €
Attività commerciale - Rif: M 12 - Open space in affitto – Zona Città Studi, Via Lambro In una delle zone più richieste e dinamiche di Milano, proponiamo in affitto un accogliente open space di circa 50 mq, situato al pian
LEGGI ANCORA
Negozio in vendita a Milano via Vitruvio, Centrale PREMIUM
- prezzo medio quadrivano in zona OMI C12 : 7323 €/m²
- prezzo medio quadrivano in zona Stazione Centrale : 6502 €/m²
Immobile in vendita a Milano(MI
negozio Centro Direzionale Via Vittor Pisani 1.700.000 €
Attività commerciale - NEGOZIO A REDDITO in Via Vittor Pisani 13 - MM2 e MM3, ottima opportunità di investimento. A pochi passi dalla fermata della metropolitana Repubblica e dall’omonimo passante ferroviario. Il negozio s
LEGGI ANCORA
Attività / Licenza in vendita a Milano(MI
negozio Centro Direzionale 100.000 €
Attività commerciale - Porta Venezia vendesi attivita ' di ristorazione con 20 posti a sedere interni e in estate almeno 40 esterni
LEGGI ANCORA
Attività / Licenza in vendita a Milano(MI
Attività / Licenza in vendita a Milano(MI
RIF P2450 BISTROT CON CUCINA IN ZONA B. AIRES
negozio Porta Venezia Corso Buenos Aires 150.000 €
RIF P2450 BISTROT CON CUCINA IN ZONA B. AIRES Descrizione: A pochi passi dal Corso Buenos Aires, in zona vivace e dinamica, proponiamo storico BISTROT CON CUCINA, locale di 200 posti a sedere con giardino interno e dehor esterno. La sua posizione centrale e la sua offerta gastronomica, garantiscono una c […]
LEGGI ANCORA
Attività / Licenza in vendita a Milano(MI
negozio Città Studi 230.000 €
Attività commerciale - il Locale commerciale di 180 mq è situato al piano terra con dehor esterno di 30 mq, presenta 5 ampie vetrine su strada, che garantiscono massima luminosità e ottima esposizione. L'immobile si trova
LEGGI ANCORA
Attività / Licenza in vendita a Milano(MI
Immobile in vendita a Milano(MI
negozio Stazione Centrale 139.000 €
Attività commerciale - LABORATORIO CON AREA DI 22 MQ NOLO A pochi minuti dalla Stazione centrale di Milano e a pochi passi dalla fermata della MM1 Pasteur, proponiamo particolare laboratorio di ca 140,00 mq con porzione di
LEGGI ANCORA
Appartamento in vendita a Milano
negozio Corso Buenos Aires 600.000 €
Rif: SBPLINIO - In una delle vie più apprezzate e centrali di Milano, a pochi passi da Corso Buenos Aires, proponiamo in vendita un affascinante bilocale situato in Via Plinio, all'interno di un edificio signorile ed elegante, curato nelle parti comuni e ben abitato. La posizione è strategica: a breve di […]
LEGGI ANCORA
- prezzo medio appartamento in zona OMI C12 : 7578 €/m²
- prezzo medio casa indipendente in zona OMI C12 : 7347 €/m²
Appartamento in vendita a Milano
negozio Città Studi via Benvenuto Garofalo 490.000 €
Rif: SGGARO - In una delle zone più servite e strategiche di Milano, proponiamo in vendita un elegante appartamento situato in Via Garofalo, a pochi passi da tutto ciò che rende la vita quotidiana comoda e piacevole. La posizione è ideale: nelle immediate vicinanze troviamo bar, ristoranti, farmacie, sup […]
LEGGI ANCORA
- prezzo medio appartamento in zona OMI D12 : 5789 €/m²
- prezzo medio appartamento in zona Città Studi : 5814 €/m²
Attività / Licenza in vendita a Milano(MI
negozio Città Studi Piazzale Loreto 120.000 €
Attività commerciale - Vendesi pizzeria con cucina . Punto vendita di intenso passaggio con la presenza di scuole, stabili residenziali ed uffici. 500 mt da Piazzale Loreto. Contratto di locazione di sicuro interesse a 1.3
LEGGI ANCORA
BAR TAVOLA FREDDA CON GRATTA E VINCI E SLOT
negozio Stazione Centrale 70.000 €
IMMOBILIA REAL ESTATE propone in vendita bar tavola fredda con gratta e vinci e slot, zona STAZIONE CENTRALE, con incassi banco medi € 350, Slot nel 2023 utile di € 50.000 circa, gratta e vinci € 20.000 nel 2023, nel 2024 slot 35 mila, gratta e vinci 20 mila, banco € 300 giornalieri,orari dal LUNEDI' ALL […]
LEGGI ANCORA
Appartamento in vendita a Milano
negozio Loreto Via Pietro Marocco 209.000 €
Rif. DV-10568] In Via Pietro Marocco 14, proponiamo in vendita un monolocale di 28 mq completamente ristrutturato a febbraio 2025. L'immobile è situato al secondo piano di uno stabile edificato a metà del '900, dotato di ascensore ed in ottimo stato di conservazione, con facciata storica recentemente rif […]
LEGGI ANCORA
- prezzo medio appartamento in zona OMI D36 : 4946 €/m²
- prezzo medio monolocale in zona OMI D36 : 5207 €/m²
Non perdere gli altri centinaia di annunci!