N.B. Tutti le informazioni immobiliari sono fornite senza alcuna garanzia. Leggi il disclaimer.
Capannoni o locali commerciali o terreni edificabili in vendita a Massa
MODIFICA QUESTA RICERCACasa indipendente in vendita a Massa(MS PREMIUM
- prezzo medio casa indipendente in zona OMI B3 : 2249 €/m²
- prezzo medio casa semindipendente in zona OMI B3 : 2183 €/m²
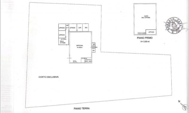
Locale commerciale in Vendita a Massa Via Aurelia Ovest
locale commerciale Via Aurelia Ovest 630.000 €
Massa Capannone di Mq 500 suddiviso in Mq 135 adibito a showroom, uffici con servizi e spazio riservato ad uso magazzino CATEGORIA D/8 Euro 630.000
LEGGI ANCORA
- prezzo medio locale commerciale in zona OMI D8 : 1371 €/m²
- prezzo medio locale commerciale a Massa : 1405 €/m²
Locale comm.le/Fondo in vendita a Massa
locale commerciale Romagnano 190.000 €
Massa, Locale Commerciale situato sull'Aurelia in Zona Trafficata, completamente ristrutturato a nuovo (infissi, pavimenti e impianti), con 3 vetrine e 3 bagni di cui uno per disabili. Parcheggio gratuito nelle vicinanze
LEGGI ANCORA
- prezzo medio locale commerciale in zona OMI D8 : 1371 €/m²
- prezzo medio locale commerciale in zona Romagnano : 1400 €/m²
Immobile in vendita a Massa(MS
locale commerciale Castagnola 1.500.000 €
Locale commerciale - Proponiamo in vendita ESCLUSIVA Rif. 294 capannone industriale, CATEGORIA CATASTALE D/7, massa in zona Romagnano superficie coperta 1600 Mq compresivi di uffici, bagni e spogliatoi con altezza massim
LEGGI ANCORA
- prezzo medio locale commerciale in zona OMI D4 : 1321 €/m²
- prezzo medio locale commerciale in zona Castagnola : 1290 €/m²
Vendita Locale commerciale Massa
locale commerciale 120.000 €
ImmobilGroup Rif 3677 Fondo Commerciale, affacciato su strada di forte passaggio, vicino a tutti i servizi, scuole e supermercati. Si sviluppa, al momento, su un unico vano con antibagno e bagno. Si presta anche ad essere diviso in più ambienti. Sono necessari alcuni lavori di rifacimento interni. Non es […]
LEGGI ANCORA
- prezzo medio locale commerciale in zona OMI C2 : 1628 €/m²
- prezzo medio locale commerciale a Massa : 1405 €/m²
Vendita Locale commerciale Massa
locale commerciale Marina di Massa Via San Leonardo
ImmobilGroup Rif. 2635 Marina di Massa. In Via San Leonardo, Viale Molto Trafficato, Vendesi Fondo Commerciale di 17mq con Parcheggio Fronte Negozio. Il Fondo Commerciale è Composto da un Unico Vano per la Rivendita oltre al Bagno. NB: Alcune informazioni come per esempio l'indirizzo dell'immobile, non s […]
LEGGI ANCORA
Immobile in vendita a Massa(MS PREMIUM
- prezzo medio locale commerciale in zona OMI D4 : 1321 €/m²
- prezzo medio locale commerciale in zona Castagnola : 1290 €/m²
Capannone in vendita in via frassina 65, Massa
capannone 1.300.000 €
ImmobilGroup Rif. 3334 Capannone Commerciale (D8) a Massa, in zona di grande passaggio, con entrata indipendente, ampio parcheggio privato e pronto all'uso.L'immobile si compone di 750 mq di superficie coperta di al piano terra diviso tra ingresso, cella frigorifera, zona stoccaggio, locali uso promiscuo […]
LEGGI ANCORA
capannone in vendita a Massa
capannone 450.000 €
Un'opportunità imperdibile per gli artigiani e le piccole imprese! Questo capannone artigianale di 630 mq, ubicato nel cuore della provincia di Massa-Carrara, è pronto per accogliere le vostre attività. L'immobile si trova al piano terra, offrendo un'accessibilità immediata e una grandiosa superficie che […]
LEGGI ANCORA
Locale commerciale in buono stato di 20 mq. a Marina Di Massa
locale commerciale Marina di Massa Via San Leonardo
Marina di Massa. In Via San Leonardo, Viale Molto Trafficato, Vendesi Fondo Commerciale di 20mq con Parcheggio Fronte Negozio. Il Fondo Commerciale è Composto da un Unico Vano per la Rivendita oltre al Bagno. Tipo di contratto: vendita Categoria: commerciale Tipologia immobile: locale commerciale Frazion […]
LEGGI ANCORA
Locale commerciale in buono stato di 20 mq. a Marina Di Massa
locale commerciale Marina di Massa Via San Leonardo
Marina di Massa. In Via San Leonardo, Viale Molto Trafficato, Vendesi Fondo Commerciale di 20mq con Parcheggio Fronte Negozio. Il Fondo Commerciale è Composto da un Unico Vano per la Rivendita oltre al Bagno. Tipo di contratto: vendita Categoria: commerciale Tipologia immobile: locale commerciale Frazion […]
LEGGI ANCORA
Locale commerciale in buono stato di 17 mq. a Marina Di Massa
locale commerciale Marina di Massa Via San Leonardo
Marina di Massa. In Via San Leonardo, Viale Molto Trafficato, Vendesi Fondo Commerciale di 17mq con Parcheggio Fronte Negozio. Il Fondo Commerciale è Composto da un Unico Vano per la Rivendita oltre al Bagno. Tipo di contratto: vendita Categoria: commerciale Tipologia immobile: locale commerciale Frazion […]
LEGGI ANCORA
Capannone in vendita a Massa PREMIUM
Proposto da:
Capannone industriale in vendita in Via Armando Angelini 27 a Massa
capannone Centro Storico Via Armando Angelini
ImmobilGroup Rif. 2823Massa Centro, Fondo Commerciale in Ottime condizioni, composto da: Unico Vano Openspace, Bagno e Antibagno. L'oggetto, ubicato in strada di forte passaggio, è attualmente locato (il contratto avrà termine nel Maggio del 2026). Contattaci per Maggiori Informazioni o per Fissare un So […]
LEGGI ANCORA
Immobile in vendita a Massa(MS
Immobile in vendita a Massa(MS
Terreno Edificabile in vendita a Massa
terreno edificabile Candia Viale Amerigo Vespucci
Rif.Ag. A450 - Massa - ad inizio colline del Candia con splendida vista panoramica su 360 gradi, proponiamo la vendita di un terreno collinare di mq. 5.300 coltivato a vigneto ed uliveto. Nella parte alta è possibile la costruzione di una casa di mq. 177. L'indirizzo è puramente indicativo è puramente in […]
LEGGI ANCORA
Capannone in vendita a Massa
locale commerciale Marina di Massa Viale Amerigo Vespucci 630.000 €
Rif.Ag. A462 - Massa, capannone artigianale-commerciale di recente costruzione. Un bellissimo show-room di mq. 135 a piano terreno, collegato alla zona uffici di mq. 135 divisa in cinque stanze più bagno al piano primo. il capannone misura mq. 285, ha un'altezza di mt. 7,00 ed una parte soppalcata di mq. […]
LEGGI ANCORA
- prezzo medio locale commerciale in zona OMI E3 : 1600 €/m²
- prezzo medio locale commerciale in zona Marina di Massa : 1475 €/m²
Casa indipendente in vendita a Massa(MS PREMIUM
- prezzo medio casa indipendente in zona OMI B3 : 2249 €/m²
- prezzo medio casa semindipendente in zona OMI B3 : 2183 €/m²
Immobile in vendita a Massa(MS
locale commerciale Castagnola 1.400.000 €
Locale commerciale - IN ZONA INDUSTRIALE VENDESI COMPENDIO IMMOBILIARE, attualmente dedicato alla lavorazione/commercializzazione di marmo e affini, COSTITUITO DA 2 CAPANNONI (UNO DI 600MQ E L'ALTRO DI 500 MQ) CON PIAZZA
LEGGI ANCORA
- prezzo medio locale commerciale in zona OMI D4 : 1321 €/m²
- prezzo medio locale commerciale in zona Castagnola : 1290 €/m²
capannone in vendita a Massa
capannone Centro Storico
ImmobilGroup Rif. 2823 Massa Centro, Fondo Commerciale in Ottime condizioni, composto da: Unico Vano Openspace, Bagno e Antibagno. L'oggetto, ubicato in strada di forte passaggio, è attualmente locato (il contratto avrà termine nel Maggio del 2026). Contattaci per Maggiori Informazioni o per Fissare un […]
LEGGI ANCORA
Vendita villa singola via dei saraceni Massa (MS
terreno edificabile Centro Storico Via dei Saraceni 109.800 €
A A adatto a veri intenditori..! "OASI" cittadina..occasione da acquistare..! Massa zona centrale, su lotto di circa 200 mq, privato causa trasferimento nella capitale...vende villetta singola da ristrutturare con possibilità lieve di aumento voulmetrico, attualmente sono tre locali, più servizi, ampio […]
LEGGI ANCORA
- prezzo medio casa indipendente in zona OMI C2 : 2360 €/m²
- prezzo medio villa in zona OMI C2 : 2496 €/m²
Non perdere gli altri 386 annunci!














