N.B. Tutti le informazioni immobiliari sono fornite senza alcuna garanzia. Leggi il disclaimer.
Negozi, di recente costruzione o di recente ristrutturazione in vendita a Carrara - pg. 6 di 23
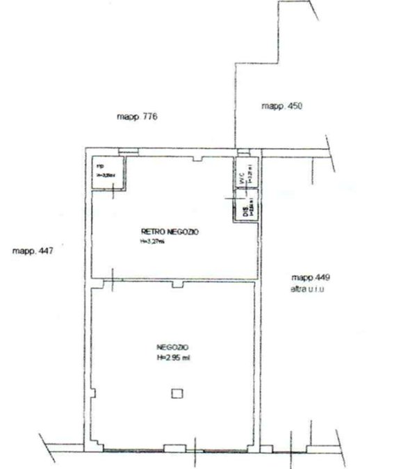
MODIFICA QUESTA RICERCANegozio da ristrutturare, Carrara centro PREMIUM
Proposto da:
Negozio in vendita, Carrara marina di
Proposto da:
negozio Marina di Carrara 220.000 €
Rif.Ag. 134V - ?Marina di Carrara In prossimità della piazza principale, proponiamo in vendita fondo commerciale di 96 mq attualmente adibito a negozio di alimentari. Limmobile è suddiviso in due vani: - un locale anteriore destinato allesposizione dei prodotti e al servizio al bancone; - un locale poste […]
LEGGI ANCORA
Bar/Ristorante in Vendita a Carrara
negozio Avenza 65.000 €
AVVIATISSIMO BAR Carrara. CARRARA località AVENZA in zona di forte passaggio,vicino a scuole,banca,supermercato,poste,Asl,Bar avviatissimo per colazioni,aperitivi,pausa pranzo veloce ,dotato di saletta interna con tavoli e dehor esterno .\nideale per conduzione familiare . - - IPE kWh/m2
LEGGI ANCORA
Bar in buono stato di 70 mq
Proposto da:
negozio 38.000 €
OTTIMO INVESTIMENTO !!!! Vendesi attività BAR !!! Locale ben tenuto con attrezzature nuove di proprietà. Il locale si trova nel centro di Massa in zona pedonale di grande passaggio, vicino a banche, caserme, uffici e al famosissimo museo Diocesano. Il locale è pronto all'uso!!!! Completo di tutte le attr […]
LEGGI ANCORA
bar in vendita a Carrara
Proposto da:
negozio 70.000 €
A CARRARA, IN OTTIMA POSIZIONE SU STRADA TRAFFICATA, VICINO AI SERVIZI, ATTIVITA' DI BAR - GELATERIA BEN AVVIATA DA 17 ANNI, COMPOSTA DA: ZONA BAR-COLAZIONE-PRANZO-APERITIVI DI CIRCA 50 MQ, BANCO GELATI ARTIGIANALI, 2 FRIGORIFERI PER TORTE GELATO, 1 FRIGORIFERO BIBITE, ZONA RETROSTANTE DI CIRCA 80 MQ CON […]
LEGGI ANCORA
Ristorante in buono stato di 40 mq
negozio Centro Città 40.000 €
In pieno centro di Massa, in una zona strategica e facilmente raggiungibile, si vende attività di pizzeria al taglio con consegna a domicilio, friggitoria e possibilità di somministrazione Kebab L'immobile è situato in una zona commerciale, ricca di negozi e servizi, che garantisce un'elevata visibilità […]
LEGGI ANCORA
Immobile in vendita a Carrara(MS PREMIUM
Proposto da:
Vendita negozio via sforza Carrara (MS
negozio Avenza 110.000 €
Fondo commerciale in vendita ad Avenza, via Sforza. Dotato di un'ampia vetrina si compone di due vani oltre servizio per una superficie commerciale di 80mq. Disponibile da subito! Richiesta pari ad euro 110.000 - Possibilità di cederlo anche in locazione con canone mensile di euro 800,00 o acquisto a ris […]
LEGGI ANCORA
Immobile in vendita a Carrara(MS
Porzione di casa in vendita a Carrara
negozio Avenza 140.000 €
Cod.11595 Rif.Ag. 32179 - Avenza, zona periferica, semindipendente terratetto di mq 90ca libero su tre lati in fase di ristrutturazione: al piano terra ingresso, cottura/soggiorno con camino, bagno di servizio, da comoda scala si accede al piano primo dove troviamo due grandi camere matrimoniali, disimpe […]
LEGGI ANCORA
- prezzo medio casa indipendente in zona OMI D5 : 2069 €/m²
- prezzo medio casa semindipendente in zona OMI D5 : 2034 €/m²
Villa bifamiliare in vendita a Carrara
negozio Avenza 290.000 €
Cod.01618 Rif.Ag. A263 - In Avenza storica in posizione tranquilla presentiamo una porzione di bifamiliare terratetto di 200 mq in ottime condizioni. La casa è dotata di tutti i confort e può ospitare tranquillamente 5 persone. Si entra nel disimpegno giorno ,da qui si passa nella cucina abitabile ed in […]
LEGGI ANCORA
- prezzo medio casa indipendente in zona OMI D5 : 2069 €/m²
- prezzo medio villa in zona OMI D5 : 2144 €/m²
Porzione di casa in vendita a Carrara
negozio Nazzano 180.000 €
Cod.11693 Rif.Ag. 349 - **Casa SEMINDIPENDENTE - Un'Occasione da Non Perdere! ** Scopri questa casa semindipendente di 250 mq, situata in una zona tranquilla e ben collegata. L'immobile, da ristrutturare, offre un grande potenziale per chi desidera personalizzarlo secondo i propri gusti. Con ingresso ind […]
LEGGI ANCORA
- prezzo medio casa indipendente in zona OMI D4 : 1950 €/m²
- prezzo medio casa semindipendente in zona OMI D4 : 1959 €/m²
Villa quadrifamiliare in vendita a Carrara PREMIUM
Cod.11579 Rif.Ag. 5258 - CARRARA Loc. FOSSONE (Rif. 5258) - Quartiere residenziale tranquillo e defilato dal traffico, in piccolo complesso di sole 4 unità abitative, proponiamo la vendita "IN ESCLUSIVA" di questa bella VILLETTA ANGOLARE DI […]
LEGGI ANCORA
- prezzo medio casa indipendente in zona OMI D2 : 2077 €/m²
- prezzo medio villa in zona OMI D2 : 2262 €/m²
Villa trifamiliare in vendita a Carrara
negozio Avenza 360.000 €
Cod.11466 Rif.Ag. M 98 - Rif. M 98 In zona semicentrale di Avenza a 2 km da Marina di Carrara e relative spiagge, trifamiliare di testa di 150 mq commerciali disposti su 2 livelli. La villetta si trova immersa in ampia area verde e in posizione molto soleggiata. L'immobile è di nuova costruzione costruzi […]
LEGGI ANCORA
- prezzo medio casa indipendente in zona Avenza : 2067 €/m²
- prezzo medio villa in zona Avenza : 2126 €/m²
Negozio in vendita a Carrara via Roma, Centro citt
negozio Centro Città Via Roma 280.000 €
Ampio locale commerciale a Carrara in Via Roma, di circa 120m^2 di superficie con accesso per il pubblico in Via Roma ed accesso privato nell’attivo del condominio, un bagno e un altro predisposto, locale seminterrato di 2,25 m^2 (ottimo come magazzino, spogliatoio, piccolo caveat), ampio cortile ad uso […]
LEGGI ANCORA
Immobile residenziale in vendita a Carrara
negozio Marasio 590.000 €
Descrizione A poche centinaia di metri dal mare, nel centro di Marina di Carrara vicino a tutti i servizi, in posizione riservata, vendiamo villetta con corte-giardino di circa 600 mq. suddivisa in due unità abitative catastalmente distinte. Unità 1: appartamento di circa 50 mq. calpestabili composto da: […]
LEGGI ANCORA
Vendita Locale commerciale Carrara
negozio Centro Città Piazza delle Erbe 75.000 €
ImmobilGroup Rif. 3237 Vendesi Ristorante nel Centro Storico di Carrara, Vicino al Duomo di Carrara, Zona ZTL. Tutto su un Piano, di circa 70mq, con Cappa per Cucina, Ampia Sala Pranzo. Pronto all'uso per Ristorazione ma ideale anche per Pub o Bar con Zona Ristoro. Contattaci per maggiori informazioni o […]
LEGGI ANCORA
- prezzo medio locale commerciale in zona OMI B4 : 1103 €/m²
- prezzo medio locale commerciale in zona Centro Città : 1178 €/m²
Attività commerciale in vendita a Carrara, Avenza
negozio Avenza 90.000 €
Ad AVENZA CENTRO CEDESI ATTIVITA' DI GELATERIA BEN AVVIATA dal 2012. OTTIMI FATTURATI. Zona centralissima, ottimo passaggio. Fondo di 40 mq in perfetto stato, composto di due vani, bagno, spogliatoio. Spazio esterno con ombrellone, 5 tavoli e 15 sedie. Il prezzo è comprensivo di tutto il lascito dell'arr […]
LEGGI ANCORA
Negozio da ristrutturare, Carrara centro PREMIUM
Proposto da:
stabile intero in vendita a Carrara
negozio 1.450.000 €
Proponiamo in vendita un affascinante complesso situato nel cuore di Carrara (MS). Questo palazzo storico è distribuito su 5 piani di cui quattro sono oggetto di vendita, per una una superficie totale di 1813 mq. Il primo e il secondo piano ospitano uffici con bagni e balconi, mentre il terzo piano è c […]
LEGGI ANCORA
Negozio in buono stato di 52 mq
negozio Centro Città 70.000 €
MASSA - CENTRO STORICO - FUORI DALLA ZONA A TRAFFICO LIMITATO Si propone in vendita, locale commerciale della Categoria C1, posto al piano stradale e in posizione d'angolo, di piccola palazzina appena rinnovata nelle facciate. Il negozio si dispone su unico livello, con due vetrine su strada, e si compon […]
LEGGI ANCORA
Negozio in buono stato di 80 mq
negozio Marina di Carrara 290.000 €
Marina di Carrara: in posizione ambita e di grande passaggio, vendesi attivita' di ricevitoria e tabacchi. Il negozio misura 80 mq interni a cui si devono aggiungere ca. 28 mq di pertinenza esterna di proprieta'. L'attivita' e' molto redditizia e sarebbe ottimale se fosse gestita a livello familiare. Il […]
LEGGI ANCORA
Non perdere gli altri 390 annunci!

















