Valutazione immobiliare indipendente, accurata e gratuita
Appartamento in vendita a Serra Sant'Abbondio a 21.150 € (cod.6589f964)
Caasa non ha sufficienti informazioni per commentare l'appartamento in vendita a Serra Sant'Abbondio - 6589f964.
Analisi immobiliare
I dati in posseso di Caasa per quest'immobile sono insufficienti, inaffidabili o contraddittori per proporre un'analisi attendibile.
Mercato immobiliare a Serra Sant'Abbondio
Per quanto riguarda più in generale il comune di Serra Sant'Abbondio, sono presenti al momento più di trenta annunci per
appartamenti in vendita (meno dell'1% dell'intera provincia) .
NOVITÀ Il risultato che vedi dipende dai dati che siamo riusciti ad estrarre dall'annuncio: ottieni una stima più accuranta di questo immobile, inserendo dati più precisi.
N.B. L'Opinione di Caasa® è un servizio sperimentale realizzato tramite tecniche di Intelligenza Artificiale, fornito senza alcuna garanzia di correttezza e completezza. Leggi il disclaimer o segnalaci un problema.
IMMAGINI
IN SINTESI
PROPOSTO DA:
Multiservice Broker
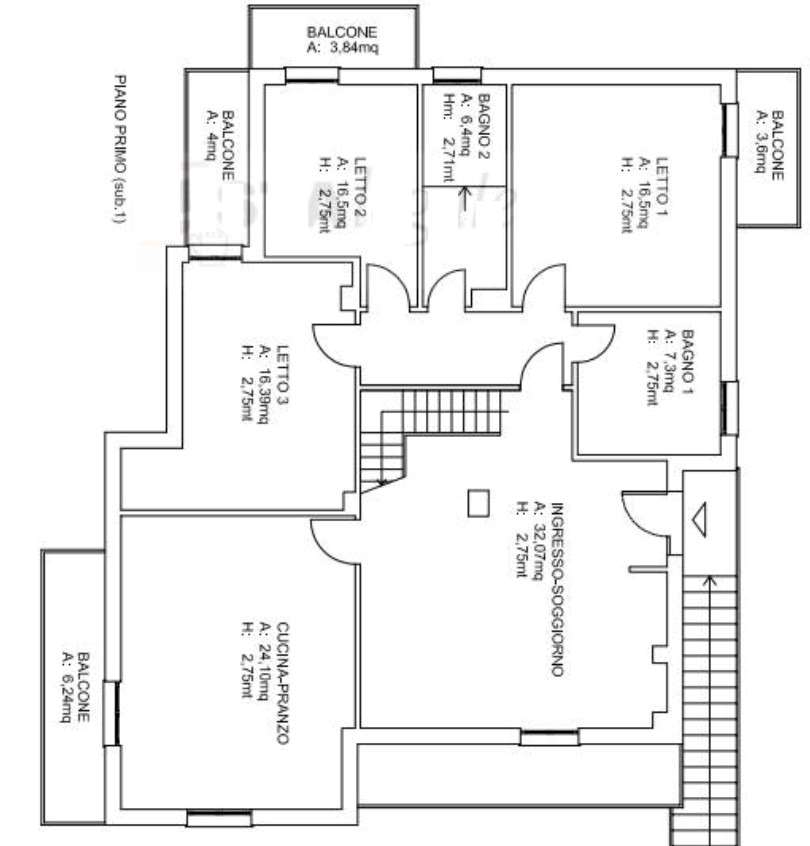
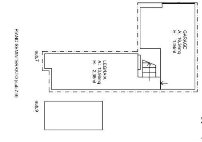
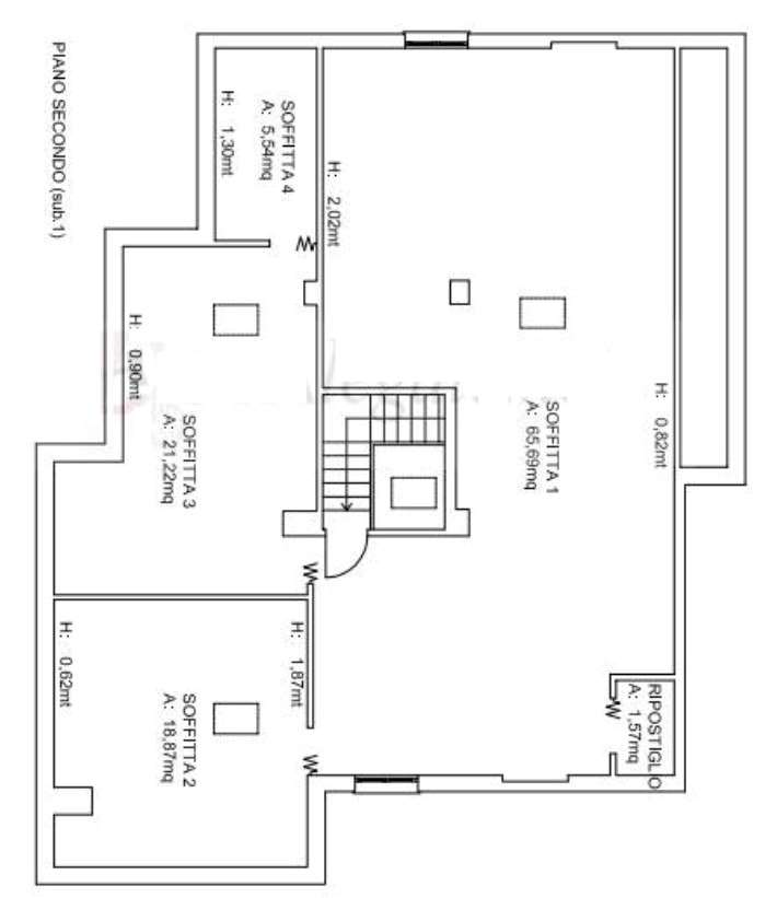
DESCRIZIONE
con cantina in asta giudiziaria con posto auto con garage con balcone
Appartamento composto, al primo piano, da ingresso-soggiorno, cucina-pranzo, disimpegno, 2 bagni, 3 camere, 4 balconi e scala di collegamento al piano secondo ove si trovano 4 ambienti e un ripostiglio; al piano seminterrato vi è un garage, una legnaia e la scala di collegamento al piano terra. L'immobile viene venduto dal tribunale tramite asta giudiziaria e il prezzo indicato si riferisce all'offerta minima. Per chi acquista come prima casa, sono previste agevolazioni. Per maggiori informazioni puoi contattarci al numero 392 42 27 462 o allo 0721 47 28 74 MULTISERVICE BROKER Via Nazionale, 2 61022 Vallefoglia (PU) CLASSE ENERGETICA: In fase di valutazione (Classe Energetica in fase di richiesta



