Valutazione immobiliare indipendente, accurata e gratuita
Appartamento in vendita a Pesaro in zona Porto a 399.000 € (cod.6550aa4b)
Caasa non ha sufficienti informazioni per commentare l'appartamento in vendita a Pesaro in zona Porto - 6550aa4b.
Analisi immobiliare
I dati in posseso di Caasa per quest'immobile sono insufficienti, inaffidabili o contraddittori per proporre un'analisi attendibile.
Mercato immobiliare a Pesaro
Per quanto riguarda più in generale la città di Pesaro, sono presenti al momento ben oltre 2.000 annunci per
appartamenti in vendita (meno di un terzo dell'intera provincia)
e il maggior numero di annunci per questa tipologia sono relativi alla zona di Centro Città, mentre la zona di Porto risulta molto meno attiva considerando il numero di annunci presenti.
La richiesta media nella zona dove sorge l'appartamento (Porto) è pari a
2.920 €/m², molto vicina ai valori della zona Mare che sono i più alti della città .
La dinamica dei prezzi in tutta la città mostra che negli ultimi 6 mesi, i prezzi per appartamenti in vendita sono
in aumento (+3,32%).
NOVITÀ Il risultato che vedi dipende dai dati che siamo riusciti ad estrarre dall'annuncio: ottieni una stima più accuranta di questo immobile, inserendo dati più precisi.
N.B. L'Opinione di Caasa® è un servizio sperimentale realizzato tramite tecniche di Intelligenza Artificiale, fornito senza alcuna garanzia di correttezza e completezza. Leggi il disclaimer o segnalaci un problema.
IMMAGINI
IN SINTESI
PROPOSTO DA:
Palmieri Casa servizi immobiliare di Luca Palmier
DESCRIZIONE
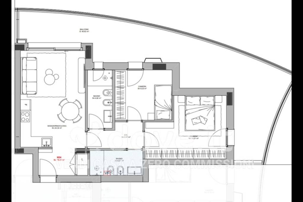
di nuova costruzione con posto auto con terrazza con garage con cantina con angolo cottura di nuova costruzione
Rif. DV-11788] In zona mare, all'interno di un condominio di nuova costruzione dal carattere signorile, proponiamo in vendita un trilocale di circa 75 mq commerciali, progettato secondo criteri moderni di funzionalità ed efficienza abitativa. L'immobile è pensato per offrire spazi ben distribuiti e un elevato livello di comfort, ideale sia come abitazione principale sia come soluzione residenziale di pregio. L'ingresso conduce direttamente all'ampia zona living con angolo cottura, un ambiente luminoso e accogliente, concepito come cuore della casa e perfetto per la vita quotidiana e per momenti conviviali. La disposizione open space valorizza la metratura disponibile e crea una continuità armoniosa tra interno ed esterno. La zona notte è composta da due camere da letto di buone dimensioni, studiate per garantire comfort e privacy. I due bagni, elemento distintivo dell'abitazione, assicurano praticità e funzionalità, rispondendo alle esigenze di una famiglia moderna o di chi desidera spazi ben organizzati. Il grande terrazzo di circa 40 mq rappresenta un vero valore aggiunto, offrendo uno spazio esterno ampio e vivibile, ideale per pranzi e cene all'aperto, momenti di relax o per vivere appieno la vicinanza al mare. È inoltre prevista la possibilità di abbinare un posto auto coperto e/o una cantina, oltre alla facoltà di personalizzare le finiture interne, per rendere l'abitazione pienamente aderente ai propri gusti ed esigenze. Con consegna prevista per luglio 2026, questa soluzione di nuova costruzione rappresenta un'opportunità interessante per chi cerca un appartamento moderno, signorile e dotato di ampi spazi esterni, in una posizione privilegiata a pochi passi dal mare

