Valutazione immobiliare indipendente, accurata e gratuita
Casa indipendente in vendita a Pesaro in zona Villa Fastiggi a 297.378 € (cod.654cecfa)
Caasa non ha sufficienti informazioni per commentare la casa indipendente a Pesaro in zona Villa Fastiggi - 654cecfa.
Analisi immobiliare
I dati in posseso di Caasa per quest'immobile sono insufficienti, inaffidabili o contraddittori per proporre un'analisi attendibile.
Mercato immobiliare a Pesaro
Per quanto riguarda più in generale la città di Pesaro, sono presenti al momento ben oltre mille annunci per
case indipendenti in vendita (quasi il 20% dell'intera provincia)
e il maggior numero di annunci per questa tipologia sono relativi alla zona di Mare, mentre nella zona di Villa Fastiggi è presente un numero significativamente inferiore di annunci.
La richiesta media nella zona dove sorge la casa indipendente (Villa Fastiggi) è pari a
2.030 €/m², molto vicina ai valori della zona Porto che sono i più alti della città .
Possiamo inoltre considerare che in tutta la città negli ultimi 6 mesi, i prezzi per case indipendenti in vendita sono
in debole aumento (+2,14%).
NOVITÀ Il risultato che vedi dipende dai dati che siamo riusciti ad estrarre dall'annuncio: ottieni una stima più accuranta di questo immobile, inserendo dati più precisi.
N.B. L'Opinione di Caasa® è un servizio sperimentale realizzato tramite tecniche di Intelligenza Artificiale, fornito senza alcuna garanzia di correttezza e completezza. Leggi il disclaimer o segnalaci un problema.
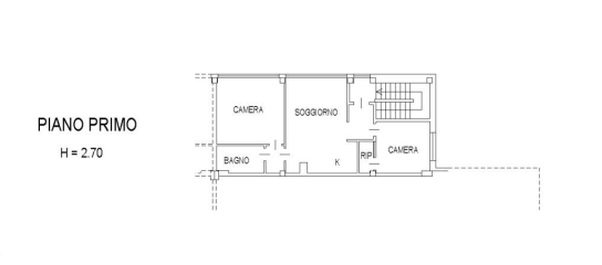
IMMAGINI
IN SINTESI
PROPOSTO DA:
STUDIO CANOVA immobili & crediti
DESCRIZIONE
di recente costruzione con balcone con termocondizionamento di recente costruzione con riscaldamento autonomo in asta giudiziaria
NUOVA PROPOSTA Capannone a Pesaro (PU), in Via Divisione Tridentina, Quartiere Villa Fastiggi, con ampi spazi per lavorazioni, servizi al piano terra per gli addetti e uffici per l'amministrazione. Una scala interna collega gli uffici a ulteriori locali al piano primo adibiti ad abitazione del custode. Completa la proprietà uno scoperto esclusivo sul fronte strada e un ulteriore scoperto sul fianco. Per te la possibilità di avere un preventivo per il mutuo a condizioni vantaggiose con i nostri partner. Ulteriori dettagli, foto degli interni, planimetrie e altre info, se disponibili, saranno consultabili previo appuntamento nella sede di PESARO con PIETRO che inoltre ti informerà sulle possibilità di aggiudicarti questo affare. L'immobile pubblicato al momento è sottoposto a procedura di vendita legale; Gescom srl è specializzata nella ricerca e pianificazione di investimenti immobiliari secondo innovative strategie di acquisto. Contattaci subito potrai valutare assieme a un nostro tecnico canali distinti di acquisto dell'immobile, procedura di vendita diretta senza ricorrere all'asta (d.lgs. 149/2022) e ancora stralcio immobiliare. Le informazioni sopra riportate non sostituiscono l'avviso pubblicato dal Tribunale competente ne' l'integrale gestione da parte del delegato designato. Il testo e le specifiche indicate nella presente pagina sono generate automaticamente attraverso l'utilizzo di software e/o da A. I., Gescom srl invita a verificare le formazioni e i materiali multimediali sui canali ufficiali, declinando fin d'ora ogni responsabilità su eventuali errori o incongruenze. Gescom Italia srl leader negli stralci immobiliari e nella consulenza tecnico legale, non si occupa di attività di intermediazione imm. di cui alla legge 39/89. Cl. energ. da verificare. Le foto pubblicate nel presente annuncio sono indicative e non esaustive della tipologia, qualità, consistenza e indicazione geografica dell'immobile. CLASSE ENERGETICA: A


