Valutazione immobiliare indipendente, accurata e gratuita
L'Opinione di Caasa® per l'appartamento in vendita a Pesaro in zona Montegranaro a 289.000 € (cod.652fdb65)
Secondo Caasa, per l'appartamento a Pesaro in zona Montegranaro, la richiesta di 289.000 € è significativamente svantaggiosa rispetto agli annunci simili.
Analisi immobiliare
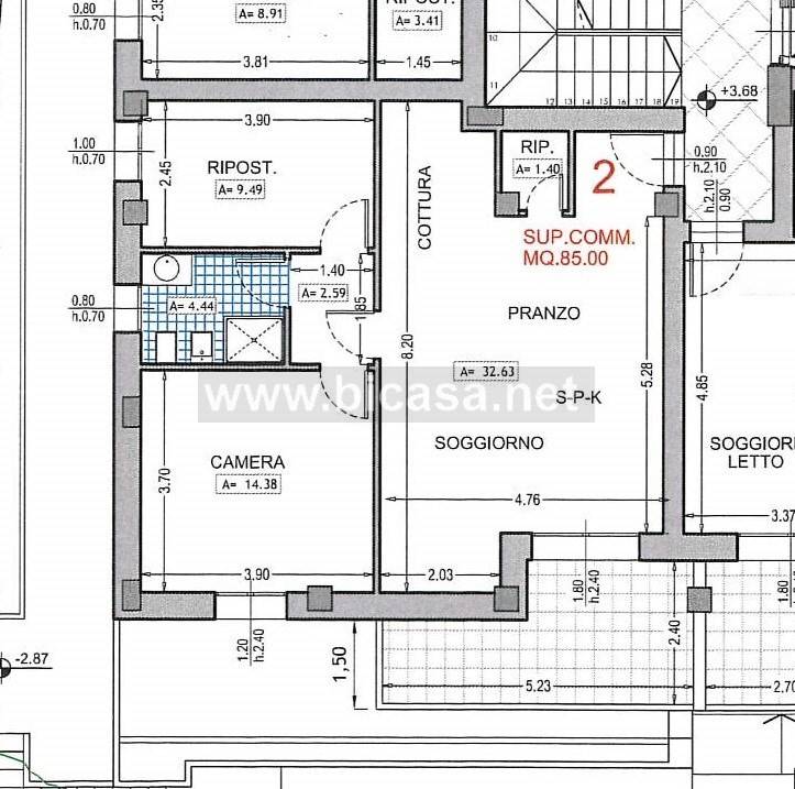
L'appartamento, situato vicino a Via Goffredo Venanzini nella zona OMI C1, è proposto in vendita a
289.000 € per una
superficie commerciale di
85 m² e quindi ad un prezzo per metro quadrato pari a
3400 €/m²
.
Tale prezzo
è meno conveniente di quello stimato da Caasa per immobili in vendita simili per tipologia e caratteristiche e localizzati nella stessa zona OMI, che è compreso tra
2.682 €/m² e
2.920 €/m².
Grazie alla conoscenza con buona approssimazione della localizzazione dell'immobile, è stato possibile utilizzare come raffronto i dati medi elaborati esattamente nella zona OMI di appertenenza (LORETO - SORIA - PANTANO BASSSA - MONTEGRANARO) per appartamenti (da 1.675 €/m² a 3.535 €/m²) e per trivani (da 1.680 €/m² a 3.570 €/m²). Anche se Caasa non è riuscita a determinare la classe energetica, ad affinare la stima hanno contribuito anche lo stato dell'immobile (di nuova costruzione) e la presenza di alcune caratteristiche significative come il garage o la disponibilità di una cantina. Per i motivi esposti i valori accettabili per l'offerta costituiscono un intervallo relativamente limitato.
Mercato immobiliare a Pesaro
Per quanto riguarda più in generale la città di Pesaro, sono presenti al momento ben oltre 2.000 annunci per
appartamenti in vendita (meno di un terzo dell'intera provincia)
e il maggior numero di annunci per questa tipologia sono relativi alla zona di Centro Città, mentre la zona di Montegranaro risulta molto meno attiva considerando il numero di annunci presenti.
La richiesta media nella zona dove sorge l'appartamento (Montegranaro pressi Via Goffredo Venanzini) è pari a
2.370 €/m², molto vicina ai valori della zona Mare che sono i più alti della città .
Relativamente alla dinamica dei prezzi, possiamo dire che negli ultimi 6 mesi i prezzi medi in tutta la città per appartamenti in vendita sono
sostanzialmente stabili (+0,46%).
NOVITÀ Il risultato che vedi dipende dai dati che siamo riusciti ad estrarre dall'annuncio: ottieni una stima più accuranta di questo immobile, inserendo dati più precisi.
N.B. L'Opinione di Caasa® è un servizio sperimentale realizzato tramite tecniche di Intelligenza Artificiale, fornito senza alcuna garanzia di correttezza e completezza. Leggi il disclaimer o segnalaci un problema.
IMMAGINI
IN SINTESI
PROPOSTO DA:
bicasa immobiliare
DESCRIZIONE
di nuova costruzione con posto auto con terrazza con garage con cantina con balcone di nuova costruzione
MARE: a pochi passi dalla spiaggia, con vista sul mare in direzione levante e a cinque minuti a piedi dal centro, vendesi appartamento di nuova costruzione in categoria energetica n-ZEB, caratteristica che permette all'immobile di avere un'efficienza energetica superiore alla classe A4, utenze prive di gas, pannelli fotovoltaici per le parti condominiali. Ampio trilocale di ca. 80 mq con 1 balcone di 11 mq. Composto da ingresso su ampio soggiorno di ca 32 mq con cucina a vista e affaccio su balcone, ripostiglio, disimpegno che conduce alla zona notte, con una camera matrimoniale, cameretta/studio di oltre 9 mq e bagno finestrato. Disponibile un garage da acquistare a parte. Rif. 7503


