Valutazione immobiliare indipendente, accurata e gratuita
L'Opinione di Caasa® per l'appartamento in vendita a Pesaro in zona Mare a 240.000 € (cod.65185962)
Secondo Caasa, per l'appartamento in vendita a Pesaro in zona Mare, la richiesta di 240.000 € è leggermente vantaggiosa rispetto agli annunci simili.
Analisi immobiliare
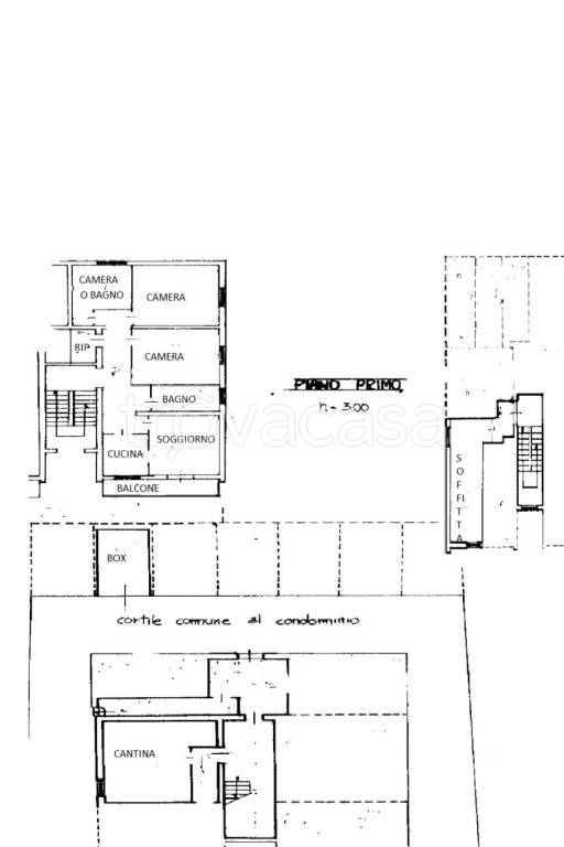
L'appartamento, situato nella zona OMI E11, è proposto in vendita a
240.000 € per una
superficie commerciale di
123 m² e quindi ad un prezzo per metro quadrato pari a
1951 €/m²
.
Questo prezzo
è un po' più basso di quello stimato da Caasa per immobili in vendita simili per tipologia e caratteristiche e localizzati nella stessa zona OMI, che è compreso tra
2.114 €/m² e
2.320 €/m².
Grazie alla conoscenza con buona approssimazione della localizzazione dell'immobile, è stato possibile utilizzare come raffronto i dati medi elaborati esattamente nella zona OMI di appertenenza (MONTECICCARDO) per appartamenti (da 2.100 €/m² a 3.660 €/m²) e per quadrivani (da 1.995 €/m² a 3.500 €/m²). Caasa non è riuscita però a determinare in modo affidabile la classe energetica, che non è stata quindi utilizzata per affinare la stima proposta. Per queste ragioni l'intervallo dei valori accettabili per l'offerta è relativamente limitato.
Mercato immobiliare a Pesaro
Per quanto riguarda più in generale la città di Pesaro, sono presenti al momento ben oltre 2.000 annunci per
appartamenti in vendita (meno di un terzo dell'intera provincia)
e il maggior numero di annunci per questa tipologia sono relativi proprio alla zona di Mare.
La richiesta media nella zona dove sorge l'appartamento (Mare) è pari a
2.955 €/m² e ne fa la più pregiata della città .
Possiamo inoltre considerare che in tutta la città negli ultimi 6 mesi, i prezzi per appartamenti in vendita sono
sostanzialmente stabili (+0,46%).
NOVITÀ Il risultato che vedi dipende dai dati che siamo riusciti ad estrarre dall'annuncio: ottieni una stima più accuranta di questo immobile, inserendo dati più precisi.
N.B. L'Opinione di Caasa® è un servizio sperimentale realizzato tramite tecniche di Intelligenza Artificiale, fornito senza alcuna garanzia di correttezza e completezza. Leggi il disclaimer o segnalaci un problema.
IMMAGINI
IN SINTESI
PROPOSTO DA:
baffioni immobiliare


