Valutazione immobiliare indipendente, accurata e gratuita
Ufficio in affitto a Pesaro in zona Pantano a 750 € mese (cod.6536948c)
Caasa non ha sufficienti informazioni per commentare l'ufficio in affitto a Pesaro in zona Pantano - 6536948c.
Analisi immobiliare
I dati in posseso di Caasa per quest'immobile sono insufficienti, inaffidabili o contraddittori per proporre un'analisi attendibile.
Mercato immobiliare a Pesaro
Per quanto riguarda più in generale la città di Pesaro, sono presenti al momento più di cento annunci per
uffici in affitto (più della metà dell'intera provincia)
e il maggior numero di annunci per questa tipologia sono relativi alla zona di Centro Città, mentre la zona di Pantano risulta molto meno attiva considerando il numero di annunci presenti.
Per quanto riguarda la richiesta media in zona Pantano, dove sorge l'ufficio, essa è pari a circa
9,3 €/m² mese per uffici in affitto.
Per quanto riguarda la dinamica dei prezzi, negli ultimi 6 mesi i prezzi medi in tutta la città per uffici in affitto sono
in debole diminuzione (-2,20%).
NOVITÀ Il risultato che vedi dipende dai dati che siamo riusciti ad estrarre dall'annuncio: ottieni una stima più accuranta di questo immobile, inserendo dati più precisi.
N.B. L'Opinione di Caasa® è un servizio sperimentale realizzato tramite tecniche di Intelligenza Artificiale, fornito senza alcuna garanzia di correttezza e completezza. Leggi il disclaimer o segnalaci un problema.
IMMAGINI
IN SINTESI
PROPOSTO DA:
Zampetti Francesco
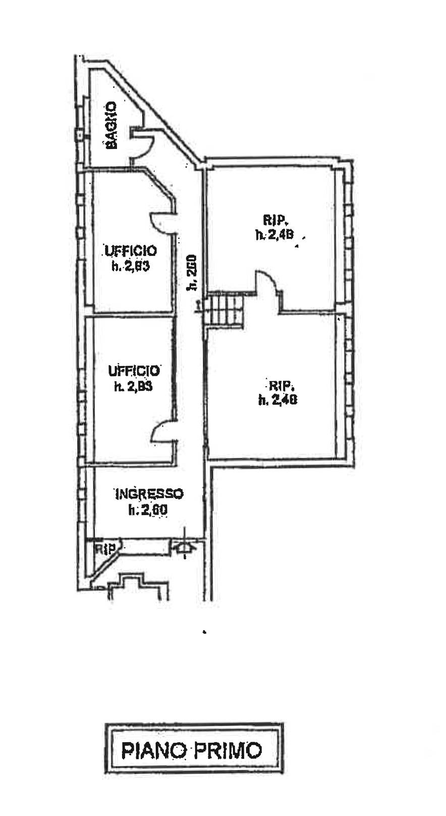
DESCRIZIONE
con termocondizionamento con ascensore
Pesaro - zona semicentrale, ottimamente servita da parcheggio e tutti i maggiori servizi, proponiamo posto al piano 1° servito da ascensore, ampio e luminoso ufficio con nr. 2 stanze operative e due stanze accessorie ottimamente sfruttabili. Buone finiture, qualit pari la nuovo. Canone + iva + spese condominiali. Maggiori informazioni, visite su appuntamento, scrivere a info@lapesarese.it - whts 346/7480725. - SC9565498





