Valutazione immobiliare indipendente, accurata e gratuita

Ufficio in affitto a Pesaro in zona Pantano a 750 € mese (cod.64e52ea8)

Caasa non ha sufficienti informazioni per commentare l'ufficio in affitto a Pesaro in zona Pantano - 64e52ea8.

Analisi immobiliare
I dati in posseso di Caasa per quest'immobile sono insufficienti, inaffidabili o contraddittori per proporre un'analisi attendibile.
Mercato immobiliare a Pesaro
Per quanto riguarda più in generale la città di Pesaro, sono presenti al momento circa cento annunci per uffici in affitto (quasi due terzi dell'intera provincia) e il maggior numero di annunci per questa tipologia sono relativi proprio alla zona di Pantano.
Per quanto riguarda la richiesta media in zona Pantano, dove sorge l'ufficio, essa è pari a circa 8,8 €/m² mese per uffici in affitto.
Per quanto riguarda la dinamica dei prezzi, negli ultimi 6 mesi i prezzi medi in tutta la città per uffici in affitto sono in debole diminuzione (-2,20%).

NOVITÀ Il risultato che vedi dipende dai dati che siamo riusciti ad estrarre dall'annuncio: ottieni una stima più accuranta di questo immobile, inserendo dati più precisi.

N.B. L'Opinione di Caasa® è un servizio sperimentale realizzato tramite tecniche di Intelligenza Artificiale, fornito senza alcuna garanzia di correttezza e completezza. Leggi il disclaimer o segnalaci un problema.

IMMAGINI

IN SINTESI

Prezzo:
750 € mese
Superficie:
120 m²
Prezzo al m²:
6,2/mese €/m²
Piano:
(con ascensore)
Bagni:
1
Classe energetica:
n.d.
Città:
Pesaro (PU)
Zona OMI:
C3 (MURAGLIA-TOMBACCIA-PANTANO ALTA)
Indirizzo:
Pubblicato:
gio 6 marzo 2025

PROPOSTO DA:

logo La Pesarese

La Pesarese

VIA XII SETTEMBRE, 44, Fano (PU)

Vai ai contatti

DESCRIZIONE

con termocondizionamento con ascensore

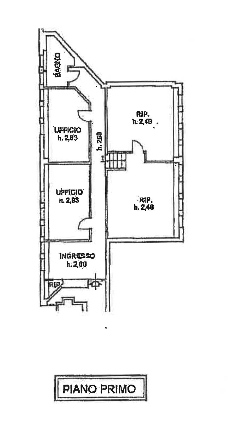
Pesaro - zona semicentrale, ottimamente servita da parcheggio e tutti i maggiori servizi, proponiamo posto al piano 1° servito da ascensore, ampio e luminoso ufficio con nr. 2 stanze operative e due stanze accessorie ottimamente sfruttabili. Buone finiture, qualità pari la nuovo. Canone + iva + spese condominiali. Maggiori informazioni, visite su appuntamento, scrivere a info@lapesarese.it - whts 346/7480725

  • immobiliare.it
  • fiaip
  • pcase.it
  • annuncio-casa.it
  • ioaffitto.it
  • trovacasa.net